セントラルガーデン月島ザタワー、第1期1次の販売戸数161戸については最高倍率38倍、平均倍率4.5倍ほど、全戸登録申込(契約ベースではなく申し込みが入らなかった部屋はないという意味です)になったとのことです。
事前審査にクリアするか現金一括ならその分の証明が必要であったなど申し込める人のハードルを上げたことはとても良いことだと思うのですが、もう少し供給戸数を増やして平均倍率3倍程度に抑えてくれると嬉しかったところではありますね…
落選者の救済措置販売はなく第1期2次(同期の2次ですが救済販売ではありません)へと進んでいきます。
第1期2次は年明けの1月10日(土)より案内開始、3月中旬の販売を予定しています。
その第1期2次の予定価格と間取りの一部を共有いたします!
[スタンダード]
※100万円単位
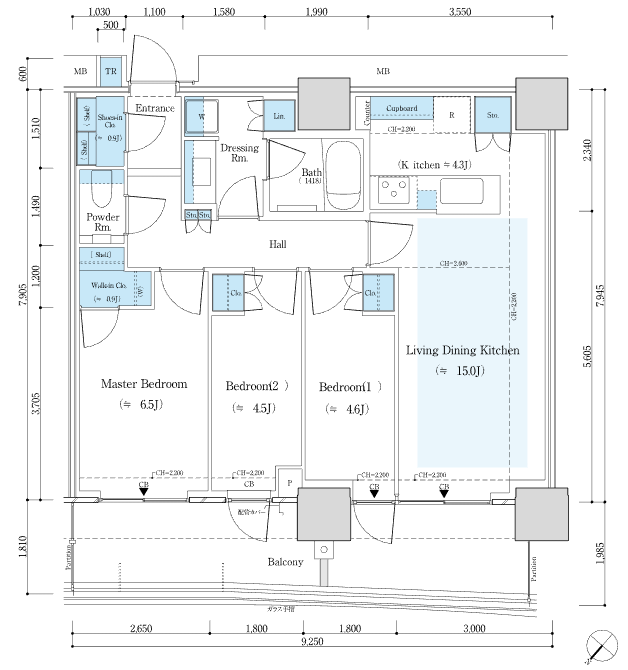
52Asw 2LDK 52.63㎡
61Bnw 2LDK 61.76㎡
73Bnw 3LDK 73.59㎡
73Cse 3LDK 73.70㎡
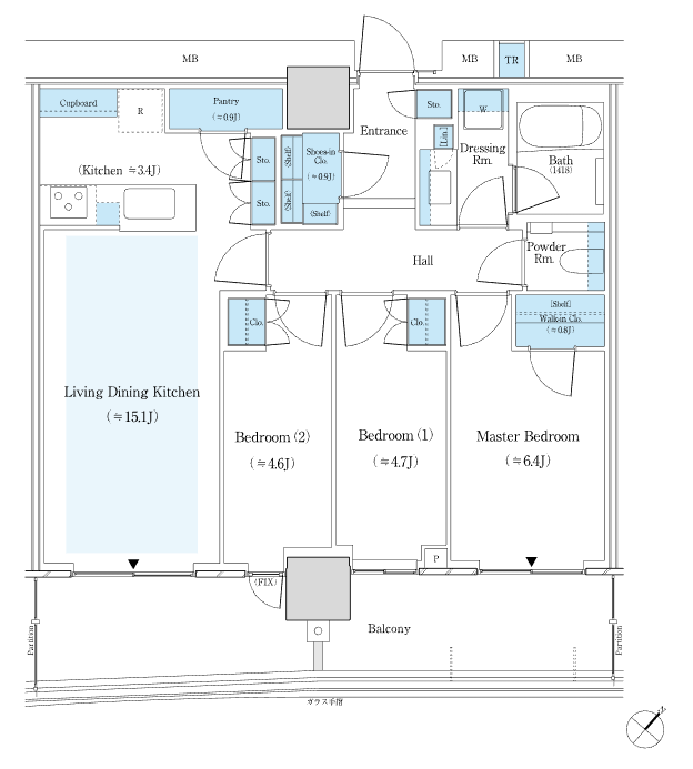
73Ese 3LDK 73.99㎡
40階 24400万円 坪単価1090万円
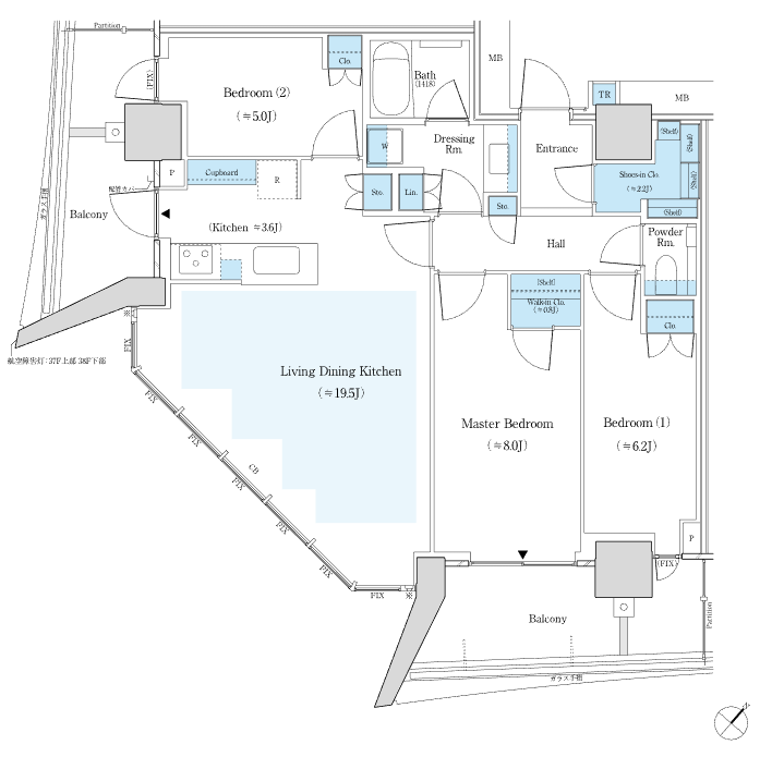
85As 3LDK 85.70㎡
40階 32900万円 坪単価1269万円
86Ae 3LDK 86.86㎡
[プレミアム]
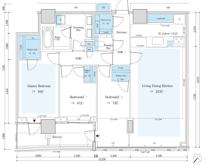
105Ane 3LDK 105.13㎡
106Anw 3LDK 106.89㎡
115Bse 3LDK 115.75㎡
おおよそ5%の値上げで販売を目指しているようです。
~第1期1次と第1期2次の比較~
※太字が今期販売住戸でその下の細字が販売済みの類似住戸
[今期販売住戸]
52Asw 2LDK 52.63㎡
26階 14300万円台 坪単価898万円
57Cswタイプ 2LDK 57.41㎡
26階 14510万円 坪単価835万円
73Bnw 3LDK 73.59㎡
35階 22400万円台 坪単価1006万円
74Anwタイプ 3LDK 74.12㎡
35階 21990万円 坪単価980万円
73Cse 3LDK 73.70㎡
26階 22200万円 坪単価985万円
74Anwタイプ 3LDK 74.12㎡
35階 21990万円 坪単価980万円
86Ae 3LDK 86.86㎡
26階 31000万円 坪単価1179万円
91Aeタイプ 3LDK 91.56㎡
36階 31990万円 坪単価1155万円
115Bse 3LDK 115.75㎡
46階 49900万円 坪単価1425万円
115Aseタイプ 3LDK 115.75㎡
46階 47990万円 坪単価1370万円
この単価帯での5%はなかなか重たいもののパークタワー勝どきと比べた際にも『中古より安い』は変わらずですから待ち時間が呑めて運に自信がある方はチャレンジしたほうが良いと思います。(もちろん一次取得者層はポジションセットを優先すべきですが新築にこだわる方も一定数いる)
パークタワー勝どきは駅直結(ミッド)ですし規模感の暴力があるため比較相手には強すぎるかもしれませんが、実際に勝どき駅まで歩く時間はほぼ同じですし、そこに月島駅も利用しやすいロケーションとなれば竣工した後の評価としては十分戦えるはずです。
パークタワー勝どきミッド/サウス
2023年築 勝どき駅徒歩1分(直結)〜2分
新築時の坪単価約440万円
現在の坪単価約1080万円動き一例
約57㎡
新築時8700万円台
中古時18500万円台約75㎡
新築時9400万円台
中古時24900万円台 pic.twitter.com/BSep78DViH— マンションマニア (@mansionmania) December 9, 2025
ちなみにようやく湾岸エリアの中古相場が踊り場となっている印象を受けます。(数ヵ月前と比べて値上がり幅が限定的)
このまま踊り場が続いてくれると買い手にとっては嬉しい時代(値上がり目的の人を除く)へと突入することになりますね。(来年どうなるのかは分かりませんが…)
中古検討者は年末は指値も通りやすいため『もう来年でいいや』ではなく『年内に決めるぞ!!』という気持ちで動くことをおすすめいたします!!
中古マンション検討の方はガチのガチで年内決着へ向けて動いたほうが良いと思います!
人気エリアでもやや停滞気味のため年内に決めたい売主さんは価格交渉を受け入れてくれやすいものです!
来年どうなるかは分かりませんが現状ではちょいと動きが鈍い印象のため買い手にとってはチャンスかと!
— マンションマニア (@mansionmania) December 8, 2025
関連記事
セントラルガーデン月島ザタワー 予定価格と間取り③ もちろんおすすめです!!
セントラルガーデン月島ザタワー 予定価格と間取り② 勝どき駅徒歩3分×月島駅徒歩4分
セントラルガーデン月島ザタワー 予定価格と間取り① 周辺中古とほとんど変わらぬ価格設定
セントラルガーデン月島ザタワーを待たずにグランドシティタワー月島の先着順住戸でポジションセットも◎
グランドシティタワー月島 予定価格と間取り モデルルーム訪問
記事が参考になったら資料請求は下記からお願いします!
資料請求はこちらから-
気になったらすぐに資料請求するのがおすすめ!ライバルは多いものです!

Powerd by LIFULL HOME’S


















コメントを残す