今回ご紹介するのはオハナ松戸ガーデニアです!
[物件概要]先着順販売中
売主:野村不動産 JR東海不動産
施工:長谷工コーポレーション
価格:3698万円~5898万円円
専有面積:62.98㎡~84.60㎡
総戸数:144戸
規模:10階建て
交通:
JR常磐線快速線・緩行線・京成松戸線「松戸」駅徒歩25分、または松戸駅バス約12分、二十世紀が丘市民センターバス停下車徒歩5分
北総線「北国分」駅徒歩19分、または北国分駅バス約5分、二十世紀が丘市民センターバス停下車徒歩5分
所在地:千葉県松戸市二十世紀が丘中松町
竣工予定:2026年1月下旬
引き渡し予定:2026年3月下旬
管理費:月額10140円~13620円
修繕積立金:月額14230円~19120円
インターネット使用料:968円
管理者業務委託費:月額1650円
駐車場:144台 自走式143台、身障者用平置き1台 月額12000円~17000円
駐輪場:245台 大型スライドラック式119台、2段ラック式126台 月額200円~600円
ミニバイク置場:7台 月額2000円
地図はこちらです↓
駅舎大改造中の松戸駅から高台側(松戸の内陸部)へ上り歩くこと25分、かなりの駅遠立地ではありますがいわゆるブランド住宅地の二十世紀が丘に位置しています。
最寄り駅は北総鉄道の北国分駅で徒歩19分です。
アドレスに関してもしっかりと二十世紀が丘のガチガチの二十世紀が丘物件です。(非二十世紀が丘アドレスで二十世紀が丘を物件名にしている分譲マンションもあります)
二十世紀が丘アドレスの中でも中松町は中心に位置しており、二十世紀が丘の冷蔵庫的存在であるライフが徒歩2分というのは便利ですね。
とはいえ駅まで起伏が伴いつつの徒歩20分前後ですから駅まで歩くのはけっこうな労力を伴います。
それに対してのカバー材料としては路線バスとなるわけですが徒歩5分前後のところにある3つの停留所を合わせるとそれなりに本数があるためバス利用に抵抗がない方であれば不便はないでしょう。
ただ、起伏があるとはいえ自転車を利用される方も多いでしょうから『全戸分のサイクルポート』みたいな特徴があると嬉しかったところではありますね。設置率約170%のため2台目も約束されていません。
とはいえ当然ながら駐車場は全戸分確保、しかもすべて自走式立体駐車場ですから便利ですね。
日常の買い物はライフの他に生鮮市場TOP(旧マミーマート)が徒歩9分のところにありますから駅前に頼らずとも済ますことができますし、ロードサイド店が充実したエリアですから車があると楽しさが大きく増しますね。
通学校は大橋小学校で徒歩5分、和名ヶ谷中学校で徒歩9分と近いですし、美野里公園や二十世紀公園など『駅遠だけども徒歩圏内で生活ができる街づくり』がなされています。
建設地は南、東、北が接道した角地で従前が売主にも名を連ねるJR東海の社宅(しばらくは更地)であったためマンションお誂え向きの整った土地形状です。
今作の用途地域は第一種中高層住居専用地域ですが周辺は低層系の用途地域ばかりになるため10階建てとはいえけっこうな存在感となります。
主開口部は西南西向きと南南東向き、条件が良いのは接道しており向かいが戸建てとなる南南東向きです。
その戸建てが立っている部分も今作と同じく東海の社宅跡地ですから用途地域は第一種中高層住居専用地域ではあるものの、ここ数年で建設された戸建群ですから普通に考えれば早々に建て替わることはないでしょう。日当たりはもちろんカーテンいらずのパノラマビューですから戸建も選べるエリアでマンションを選んだメリットを感じやすいですね。
西南西向きは向かいに東海の社宅、松戸フラット(2013年築、総戸数91戸、7階建て)があるためそちらを超える階までは視界抜けしません。
ただ、青空駐車場を挟むため低層階でも日当たりは良いですし、上層階ならスカイツリーを望むこともできそうです。
エントランスアプローチは北側のうれいら通り沿いに配しておりオハナらしく両サイドの植栽が豊かとなっています。
エントランスホールも奥行きがあり一体となったラウンジの大窓からは敷地内の植栽を自然と望むことができるのも気持ちよいでしょう。
共用施設は集会室兼のマルチラウンジと1部屋のみですが個室のテレワークブースを設けています。
外観デザインはぱっと見でオハナブランドと分かる色合いに加えて上層二層の軒裏を木調として庇をせり出させていたり、妻側のダイレクトウィンドウとその庇もせり出させるなど拘りを感じることができますね。
シンボルツリーを配した車寄せを設けるなど全体的に見て単価帯以上のカッコよさと言えるでしょう。隣戸境の隔て板もしっかりとスラブtoスラブです。
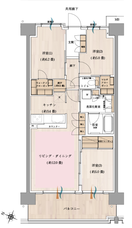
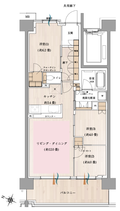
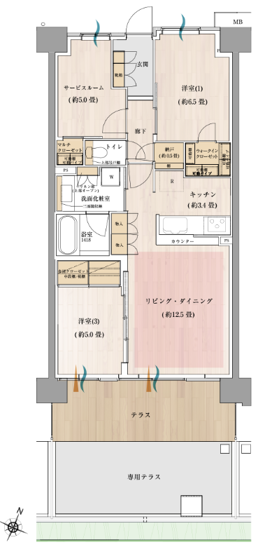
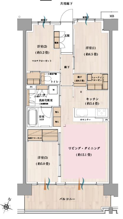
価格と間取りの一部を共有いたします!
[カームサイト 西南西向き]
A 3LDK 75.56㎡
3階 4898万円 坪単価214万円
4階 4948万円 坪単価216万円
7階 5098万円 坪単価223万円
8階 5198万円 坪単価227万円
Br 4LDK 84.6㎡
C 3LDK 72.74㎡
D 3LDK 66.23㎡
3階 3848万円 坪単価192万円
8階 4148万円 坪単価207万円
F 3LDK 72.74㎡
G 2LDK 62.98㎡
7階 3898万円 坪単価204万円
8階 3998万円 坪単価209万円
[エアリーサイト 南南東向き]
I 3LDK 78.54㎡
3階 5198万円 坪単価218万円
4階 5298万円 坪単価223万円
L 3LDK 72.99㎡
8階 4648万円 坪単価210万円
Ot 3LDK 73.65㎡
O 3LDK 73.65㎡
3階 4448万円 坪単価199万円
4階 4548万円 坪単価204万円
P 4LDK 81.35㎡
平均坪単価は約205万円です。
連窓サッシが採用されていないのは惜しいところですが平均専有面積約71㎡と今の時代の新築マンションにしては頑張ってくれていますね。
外観デザインとしても際立つAタイプの洋室せり出しダイレクトウィンドウは最高の寝室として活躍しそうですね。コーナー部分も窓のため程よく朝陽を取り込むことができるでしょう。
余談ではあるのですが私は家選びをする際、めちゃ寝室にこだわります。(他にこだわるのはキッチンなど水回り)
これまでも約9畳の寝室、ベッドで寝たまま横を向くとスカイツリーや川が見える寝室などなど、売る時はそれを高評価してくれる人が少ないのは分かりつつもこだわりを持って選んでいます。次の新居の寝室も10畳超えです。(笑)
何にこだわるかは人ぞれぞれですが自分に合ったこだわりを叶えてくれるマイホームというのは本当に素晴らしいものだと思います。
話はそれましたが、設備仕様としてはディスポーザーがないのは惜しいですね…戸建が売れ線のエリアですからなくても売れるとはいえ差別化してほしかったところではあります。浴室ブラケットライト、トイレは古めかしいタンク式です。もちろん単価帯的に致し方ないことではありますが目が肥えた方には厳しいラインかと思います。
食洗機は標準、ウルトラファインバブル給湯器を採用しているのは嬉しいですね。キッチンのシンク下を可変ニースペースとして大きめのごみ箱を置けるようになっているのも好印象でした。
構造は直床(床スラブ厚200mm~)・二重天井、基本天井高は2500mm~2600mmです。
周辺相場を確認しましょう!
■ダイアパレス松戸二十世紀が丘
1996年築 松戸駅徒歩24分
新築時の坪単価約160万円
現在の坪単価約65万円(リフォームなし)
■ファミール松戸二十世紀が丘
1996年築 松戸駅徒歩20分
新築時の坪単価約155万円
現在の坪単価約100万円(リフォームあり)
動き一例
約58㎡(リフォームあり)
新築時2600万円台
中古時1600万円台
■ゼファーヒルズ松戸フィオリーナ
2006年築 松戸駅徒歩22分
新築時の坪単価約105万円
現在の坪単価約125万円(リフォームなし)
動き一例
約82㎡(リフォームなし)
新築時2700万円台
中古時3100万円台
上記相場からオハナ松戸ガーデニアが今時点で築10年だった場合の価値を算出すると
L 3LDK 72.99㎡ 4階 4448万円 → 3580万円(築10年と想定)
となります。
あくまで今の相場での算出のため参考までにお願いいたします。
駐車場は自走式立体駐車場で設置率100%なのは素晴らしいのですがエレベーターがないことと総重量制限が厳しい区画が多いのは注意が必要です。
全長5000mm×全幅2500mm×全高2100mm(3区画のみ1700mm)×車両総重量2000kg/2500kg(今の時代の車は重たいので2000kg制限は選べる車が減りますね…)
駐輪場は屋外で設置率約170%です。
管理費は㎡単価月額約161円、ディスポーザーなしも影響してか今の時代にしては抑え目ですね。当然ながらエレベーターは2基(分速105m)あります。
別途月額1650円が発生しますが第三者管理を採用しています。
オハナブランドのため30年間修繕積立金が変わらない(当然強烈なインフレなどは除く)均等積立方式が採用されています。(プラウドでも採用してくれぇ~)
そのため当初から㎡単価月額約226円と重ためですが安心ではありますし、自走式立体駐車場の収入が活きた水準となっていますね。(空きが多すぎると困りますがそうはなりにくいロケーションでしょう)
周辺分譲マンションの維持費を確認しましょう!
■ダイアパレス松戸二十世紀が丘 総戸数32戸 管理費㎡単価月額約285円
■ファミール松戸二十世紀が丘 総戸数77戸 管理費㎡単価月額約199円
■ゼファーヒルズ松戸フィオリーナ 総戸数340戸 管理費㎡単価月額約160円
【住むレーション】
[路線バス]
二十世紀が丘市民センター 7:07発
~中略~
松戸駅 7:18着
分実 7:10発
~中略~
松戸駅東口 7:19着
二十世紀ヶ丘 7:10発
~中略~
松戸駅東口 7:31着
二十世紀が丘市民センター 7:06発
~中略~
北国分駅 7:11着
分実 7:01発
~中略~
東松戸駅 7:20着
[常磐快速線(上野東京ライン)]
松戸 7:28発
北千住 7:36着
南千住 7:39着
三河島 7:43着
日暮里 7:45着
上野 7:50着
東京 7:56着
[北総線]
北国分 7:18発
矢切 7:20着
新柴又 7:23着
京成高砂 7:25着
青砥 7:29着
京成立石 7:32着
四ツ木 7:34着
八広 7:35着
京成曳舟 7:39着
押上 7:41着
本所吾妻橋 7:43着
浅草 7:45着
蔵前 7:47着
浅草橋 7:49着
東日本橋 7:50着
人形町 7:52着
日本橋 7:54着
外環自動車道が延伸したことで車での遠出も便利になりました。
松戸で物件調査です!!
大改良工事で迷路のようになっている松戸駅!!
完成したら雰囲気ガラッと変わりますね! pic.twitter.com/CQx3RMIcXd
— マンションマニア (@mansionmania) October 17, 2025
ランチは水戸街道沿いのステーキのあさくま松戸店!!
ランチステーキにサラダバーのカレーと濃厚コーンスープも美味です!! pic.twitter.com/SQ0eNkJ0V0
— マンションマニア (@mansionmania) October 17, 2025
【総評】
駅からは離れますが1970年に土地区画整理事業が開始され1981年に完了した成熟した住宅地の二十世紀が丘に位置していますし、そこに総戸数144戸の規模感あるマンションとなれば駅から離れた価値があると言えるでしょう。
日常の買い物も便利ですし学校も公園も近く、ロードサイド店も充実したエリアですから車ありきであれば生活満足度の高さに期待できることでしょう。
マンション自体に関しても豊かな植栽などランドスケープのゆとり、拘りある外観デザインなどオハナらしさをしっかりと感じることができました。
戸建てと比較してしまう方には合わないのですが『マンションしか検討していない』、さらに『新築マンションじゃなきゃダメなんです』という方にとってはスケールメリットを活かしたマンションらしいエッセンスがあるため選びやすいことでしょう。眺望に優れた部屋も多いですから尚更!
建築費高騰の影響もあり価格に関してはオハナらしさを出しにくい時代(地所レジのオイコスも見かけなくなりましたね…)ではありますが、そんな中でも頑張ってくれている単価設定であるという印象を受けました。(部屋が広い分『戸建買えちゃうじゃん』になってしまいがちなグロスのため戸建を検討していない方でないと響きにくいでしょうけども)
関連記事
ルネモア市川北国分 価格と間取り お久しぶりのルネモアブランド
オハナ東鷲宮フロント 価格と間取り 駅徒歩3分×ヤオコー直結
オハナ高尾 価格と間取り 高尾駅徒歩12分ながらイーアスへ徒歩3分
オハナ 蘇我ガーデニア 価格と間取り 地元評価が高い立地に規模感あるマンション
記事が参考になったら資料請求は下記からお願いします!
資料請求はこちらから-
気になったらすぐに資料請求するのがおすすめ!ライバルは多いものです!

Powerd by LIFULL HOME’S




















コメントを残す