人気の新築マンション、ザ・パークハウス武蔵小杉タワーズですが第三期の案内がスタートしています。
私はこれまで落選、同士の読者様も多いのではないでしょうか。(お刺身おじさんは第一期でget済み)
ご当選済みの方はおめでとうございます!!
引き渡しまでの待ち時間は長いですが楽しみが大きいですね!!
ロケーションが良いことはもちろんのこと竣工したら…(;゚д゚)ゴクリ…そのカッコよさに心躍ること間違いなしでしょう。
ただ、個別相談会においては現実を見ていただくことも多いです。
当たらぬ新築マンションを追いかけ続けるよりも周辺でポジションセットしたほうが確実にハッピーになれるとなれば新築に拘り過ぎるのは良くありません。
とくに子育てファミリーからすれば『ザ・パークハウス武蔵小杉タワーズは魅力だったけど中古にしたことで学校も近くなるし良い選択だ!』と割り切りやすいことでしょう。
第一期販売前、第一期~第二期にて落選した直後に周辺中古マンションでポジションセットしていただいたご相談者様も多かったです。
もちろんこればかりはケースバイケースです。
その方の背景によりアドバイスは大きく異なるためぜひ個別相談会へご参加いただければと思います!
さて、まずは周辺中古マンション相場から。
当然ではありますが値上がり傾向にあります。
早めに中古マンションでポジションセットされた方も大正解でしたね…
■ザ・コスギタワー
2008年築 中丸子
新築時の坪単価約210万円
2021年末の坪単価約305万円
2025年4月の坪単価約450万円
現在の坪単価約500万円
■リエトコート武蔵小杉ザクラッシィタワー・イーストタワー
2008年築 中丸子
新築時の坪単価約245万円
2021年末の坪単価約305万円
2025年4月の坪単価約440万円
現在の坪単価約490万円
■パークシティ武蔵小杉ミッドスカイタワー
2008年築 新丸子東3
新築時の坪単価約260万円
2021年末の坪単価約320万円
2025年4月の坪単価約480万円
現在の坪単価約520万円
■パークシティ武蔵小杉ステーションフォレストタワー
2008年築 新丸子東3
新築時の坪単価約240万円
2021年末の坪単価約320万円
2025年4月の坪単価約480万円
現在の坪単価約520万円
■パークシティ武蔵小杉ザグランドウイングタワー
2014年築 新丸子東3
新築時の坪単価約290万円
2021年末の坪単価約360万円
2025年4月の坪単価約530万円
現在の坪単価約570万円
■エクラスタワー武蔵小杉
2013年築 小杉町3
新築時の坪単価約290万円
2021年末の坪単価約355万円
2025年4月の坪単価約570万円
現在の坪単価約640万円
■プラウドタワー武蔵小杉
2015年築 小杉町3
新築時の坪単価約280万円
2021年末の坪単価約355万円
2025年4月の坪単価約540万円
現在の坪単価約590万円
■シティタワー武蔵小杉
2016年築 市ノ坪
新築時の坪単価約370万円
2021年末の坪単価約390万円
2025年4月の坪単価約610万円
現在の坪単価約700万円
■パークシティ武蔵小杉ザガーデンタワーズイースト
2017年築 小杉町2
新築時の坪単価約335万円
2021年末の坪単価約370万円
2025年4月の坪単価約530万円
現在の坪単価約600万円
■パークシティ武蔵小杉ザガーデンタワーズウエスト
2018年築 小杉町2
新築時の坪単価約325万円
2021年末の坪単価約350万円
2025年4月の坪単価約530万円
現在の坪単価約590万円
■コスギ サードアヴェニュー ザ・レジデンス
2020年築 小杉町3
新築時の坪単価約365万円
2021年末の坪単価約385万円
2025年4月の坪単価約570万円
現在の坪単価約650万円
■ドレッセタワー武蔵小杉
2024年築 小杉町3
新築時の坪単価約420万円
2025年4月の坪単価約560万円
現在の坪単価約580万円
~武蔵小杉分譲タワマン中古相場推移~
2025年4月 平均坪単価約530万円
2026年3月 平均坪単価約580万円
物件にもよりますが全体で見ると1年で1割ほど価格が上昇しています。
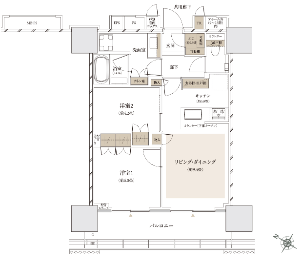
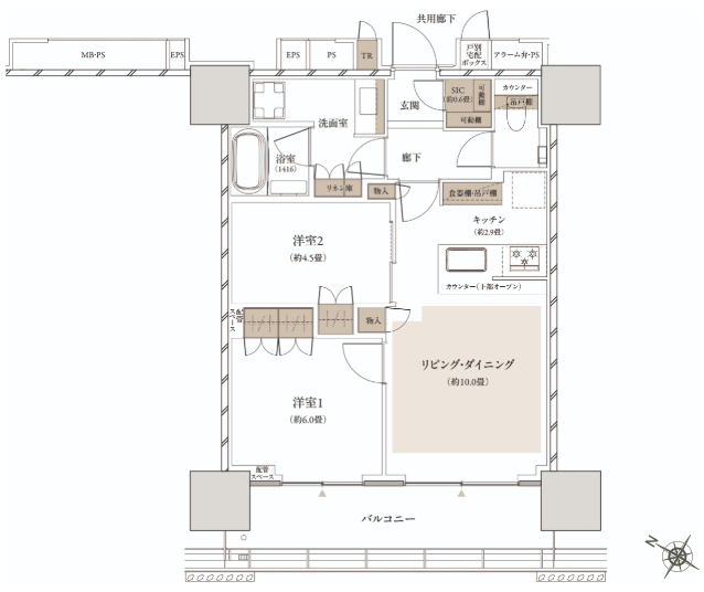
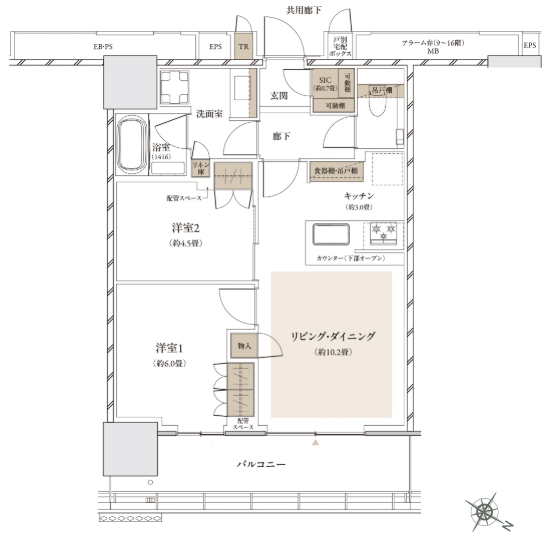
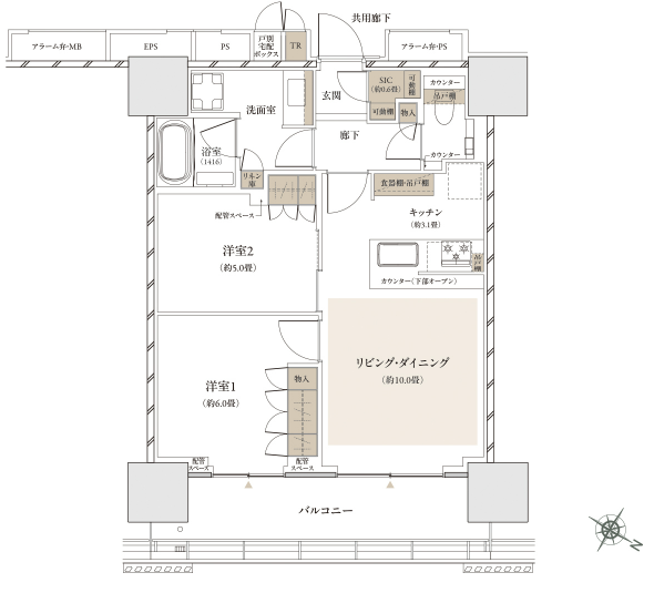
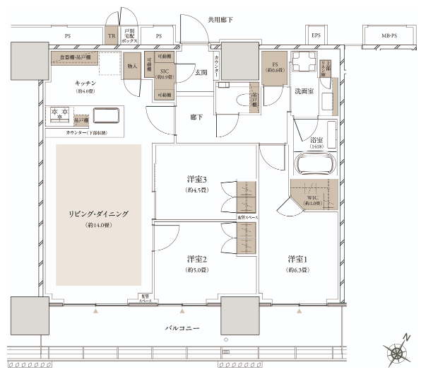
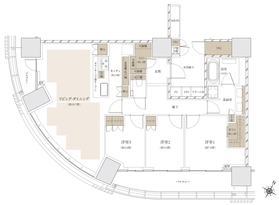
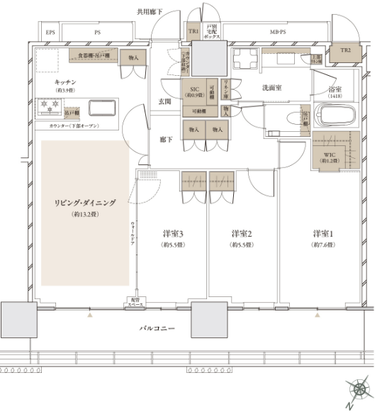
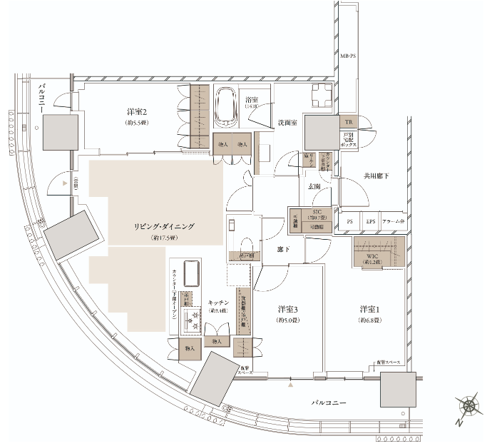
ザ・パークハウス武蔵小杉タワーズサウス、第三期の予定価格と間取りを共有いたします!
[スーペリア・セミデラックス]
S-55A 2LDK 55.01㎡
5階 9270万円台 坪単価557万円
6階 9310万円台 坪単価559万円
7階 9350万円台 坪単価561万円
8階 9390万円台 坪単価564万円
9階 9430万円台 坪単価566万円
10階 9470万円台 坪単価569万円
11階 9510万円台 坪単価571万円
12階 9550万円台 坪単価573万円
13階 9590万円台 坪単価576万円
14階 9630万円台 坪単価578万円
15階 9670万円台 坪単価581万円
16階 9710万円台 坪単価583万円
17階 9750万円台 坪単価585万円
18階 9790万円台 坪単価588万円
19階 9830万円台 坪単価590万円
20階 9870万円台 坪単価593万円
21階 9910万円台 坪単価595万円
22階 9950万円台 坪単価597万円
23階 9990万円台 坪単価600万円
S-56A 2LDK 56.68㎡
25階 10100万円台 坪単価589万円
26階 10140万円台 坪単価591万円
27階 10180万円台 坪単価593万円
28階 10220万円台 坪単価596万円
29階 10260万円台 坪単価598万円
30階 10300万円台 坪単価600万円
31階 10340万円台 坪単価603万円
32階 10840万円台 坪単価632万円
S-57A 2LDK 57.10㎡
5階 10000万円台 坪単価578万円
6階 10040万円台 坪単価581万円
7階 10080万円台 坪単価583万円
8階 10120万円台 坪単価585万円
9階 10160万円台 坪単価588万円
10階 10200万円台 坪単価590万円
11階 10240万円台 坪単価592万円
12階 10280万円台 坪単価595万円
13階 10320万円台 坪単価597万円
14階 10360万円台 坪単価599万円
15階 10400万円台 坪単価602万円
16階 10440万円台 坪単価604万円
S-58B 2LDK 58.35㎡
18階 10520万円台 坪単価596万円
19階 10560万円台 坪単価598万円
20階 10600万円台 坪単価600万円
21階 10640万円台 坪単価602万円
22階 10680万円台 坪単価605万円
23階 10720万円台 坪単価607万円
24階 10760万円台 坪単価609万円
25階 10800万円台 坪単価611万円
26階 10840万円台 坪単価614万円
27階 10880万円台 坪単価616万円
28階 10920万円台 坪単価618万円
29階 10960万円台 坪単価620万円
30階 11000万円台 坪単価623万円
31階 11040万円台 坪単価625万円
32階 11540万円台 坪単価653万円
S-60A 2LDK 60.44㎡
5階 10550万円台 坪単価577万円
6階 10590万円台 坪単価579万円
7階 10630万円台 坪単価581万円
8階 10670万円台 坪単価583万円
9階 10710万円台 坪単価585万円
10階 10750万円台 坪単価588万円
11階 10790万円台 坪単価590万円
12階 10830万円台 坪単価592万円
13階 10870万円台 坪単価594万円
14階 10910万円台 坪単価596万円
15階 10950万円台 坪単価598万円
16階 10990万円台 坪単価601万円
S-62B 2LDK 62.33㎡
5階 9860万円台 坪単価522万円
6階 9900万円台 坪単価525万円
7階 9940万円台 坪単価527万円
8階 9980万円台 坪単価529万円
9階 10020万円台 坪単価531万円
10階 10060万円台 坪単価533万円
11階 10100万円台 坪単価535万円
12階 10140万円台 坪単価537万円
13階 10180万円台 坪単価539万円
14階 10220万円台 坪単価542万円
15階 10260万円台 坪単価544万円
16階 10300万円台 坪単価546万円
17階 10340万円台 坪単価548万円
18階 10380万円台 坪単価550万円
19階 10420万円台 坪単価552万円
20階 10460万円台 坪単価554万円
21階 10500万円台 坪単価556万円
22階 10540万円台 坪単価559万円
23階 10580万円台 坪単価561万円
24階 10620万円台 坪単価563万円
25階 10660万円台 坪単価565万円
26階 10700万円台 坪単価567万円
27階 10740万円台 坪単価569万円
28階 10780万円台 坪単価571万円
29階 10820万円台 坪単価573万円
30階 10860万円台 坪単価576万円
31階 10900万円台 坪単価578万円
32階 11400万円台 坪単価604万円
S-70B 3LDK 70.88㎡
34階 13620万円台 坪単価635万円
35階 13670万円台 坪単価637万円
36階 13710万円台 坪単価639万円
37階 13750万円台 坪単価641万円
38階 13790万円台 坪単価643万円
39階 13830万円台 坪単価645万円
40階 13870万円台 坪単価646万円
41階 13910万円台 坪単価648万円
42階 13950万円台 坪単価650万円
43階 13990万円台 坪単価652万円
S-75B 3LDK 75.47㎡
18階 14470万円台 坪単価633万円
19階 14510万円台 坪単価635万円
20階 14550万円台 坪単価637万円
21階 14590万円台 坪単価639万円
22階 14630万円台 坪単価640万円
23階 14670万円台 坪単価642万円
24階 14710万円台 坪単価644万円
25階 14750万円台 坪単価646万円
26階 14790万円台 坪単価647万円
27階 14830万円台 坪単価649万円
28階 14870万円台 坪単価651万円
29階 14910万円台 坪単価653万円
30階 14950万円台 坪単価654万円
31階 14990万円台 坪単価656万円
32階 15490万円台 坪単価678万円
S-79A 3LDK 79.46㎡
34階 14790万円台 坪単価615万円
35階 14820万円台 坪単価616万円
36階 14850万円台 坪単価617万円
37階 14880万円台 坪単価619万円
38階 14910万円台 坪単価620万円
39階 14940万円台 坪単価621万円
40階 14970万円台 坪単価622万円
41階 15000万円台 坪単価624万円
42階 15030万円台 坪単価625万円
43階 15060万円台 坪単価626万円
S-97A 3LDK 97.84㎡
34階 20590万円台 坪単価695万円
35階 20650万円台 坪単価697万円
36階 20710万円台 坪単価699万円
37階 20770万円台 坪単価701万円
38階 20830万円台 坪単価703万円
39階 20890万円台 坪単価705万円
40階 20950万円台 坪単価707万円
41階 21010万円台 坪単価709万円
42階 21070万円台 坪単価711万円
43階 21130万円台 坪単価713万円
[デラックス]
S-85A 3LDK 85.61㎡
45階 16990万円台 坪単価656万円
46階 17030万円台 坪単価657万円
47階 17070万円台 坪単価659万円
48階 17110万円台 坪単価660万円
49階 17150万円台 坪単価662万円
S-87C 3LDK 87.46㎡
45階 17820万円台 坪単価673万円
46階 17860万円台 坪単価675万円
47階 17900万円台 坪単価676万円
48階 17940万円台 坪単価678万円
49階 17980万円台 坪単価679万円
平均坪単価は約610万円です。
平均値としては大きく変わらないですが個別で見ると1期→2期→3期と徐々に実質値上げがなされていますね。
面積帯にもよりますが第一期で購入済みの方は1割ほどお安く買えているイメージです。
中古市場が先の通りですからこれでもまだお安く感じてしまいます。
ただ、待ち時間ネック(2028年2月中旬を予定)、当たるかどうかも分からない(さすがに第一期ほどの高倍率にはならないでしょうけども)リスクもあるわけですから『周辺中古マンションでポジションセット』という手堅い選択(負けない戦い方)もおすすめしたいところです。
第三期は2026年5月下旬の販売開始を予定しています。
関連記事
ザ・パークハウス 武蔵小杉タワーズ 予定価格と間取り② シングル層にもおすすめしやすい住戸あり!
ザ・パークハウス 武蔵小杉タワーズ 予定価格と間取り 東京都民にも好印象の商品力と価格
ザ・パークハウス武蔵小杉タワーズの物件詳細・資料請求はコチラ
記事が参考になったら資料請求は下記からお願いします!
資料請求はこちらから-
気になったらすぐに資料請求するのがおすすめ!ライバルは多いものです!

Powerd by LIFULL HOME’S




















コメントを残す