今回ご紹介するのはブリリア西新宿です!
[物件概要]一般定期借地権2024年3月28日~2097年5月31日
売主:東京建物
デザイン監修:南條設計室
施工:木内建設
価格:未定
専有面積:31.02㎡~93.09㎡
総戸数:71戸(販売戸数54戸、地権者住戸17戸)
規模:14階建て
交通:東京メトロ丸ノ内線「西新宿」駅徒歩5分 JR各線「新宿」駅徒歩13分
所在地:東京都新宿区西新宿八丁目
竣工予定:2027年9月下旬
引き渡し予定:2027年11月下旬
駐車場:12台(機械式駐車場:10台、平置き駐車場(身障者優先):1台、地権者用平置き駐車場:1台)
駐輪場:71台(ラック式:48台、2段式スライドラック:19台、平置式:4台)
地図はこちらです↓
東京メトロ丸ノ内線の西新宿駅から信号なしの一本道で徒歩5分、新宿税務署通り沿いに位置しています。
パークリュクス西新宿やジオ西新宿と異なり税務署通りの南側に位置しているため徒歩分数表記以上に近く感じます。
日常の買い物はオリンピックとまいばすけっとが徒歩3分、もとまちユニオンが徒歩7分、新宿駅へも徒歩13分ですから駅ビルや百貨店の利用も大変便利ですね。
ディナーは新宿京王百貨店で開催中の大北海道展で仕入れたこうふくの豚丼!
美味です!! pic.twitter.com/cSVQ5MzRaz
— マンションマニア (@mansionmania) March 24, 2026
新宿駅から大久保側へかけて飲食店が点在しているため外食も迷ってしまうレベルで選択肢が充実しています。
今作にはあまり関係ないですが通学校は柏木小学校で徒歩10分、西新宿中学校で徒歩5分です。
税務署通りと言えば飛鳥ホテル跡地に高層賃貸マンションが計画された時期もありましたが現在は白紙となったようで砂利敷きの時間貸し駐車場が広がっています。(いつかは開発されそう)
今作の隣接地に賃貸マンションができたように賃貸は多いですが分譲としてはお久しぶりですね。
ただ、今作は最近流行の(?)定期借地権となります。(地主さんは個人)
解体期間含む居住期間約69年です。(せめて『住める年数が70年』だと嬉しいのですが…)
建設地は縦に長い土地形状で地図だけを見ると囲まれ感強い印象を受けますが現地へ訪れると東側の接道も相まってそれほど窮屈感はありません。
主開口部も南と北に振っており南側は4階くらいから視界抜け、北側は歩道が広く電線も地中化された税務署通り、さらに現状では向かいの建物の背が低いためこちらも開放感があります。
地図で見た印象と現地で見た印象が良い意味で大きく異なるという方が多いことでしょう。
敷地面積約793㎡、建築面積約426㎡と小さめのマンションではありますがデザイナーにモリモト物件でお馴染み南條設計室の山形氏を起用、エッジを効かせた外観デザインや足元のゲートデザインなどかなりカッコいい建物となりそうです。
エントランスホールもアプローチと同様に高低差を活かした階段とスロープを設け、そのスロープを曲線とすることで立体感を演出、組子細工のアートを設置した優雅な空間とするなどこちらもカッコいいですね。
西新宿駅との行き来に便利なサブエントランス側も金属製の素材ラインウォールの照明計画で高級感がありますし、冷暖房完備の内廊下に関しても総戸数の割には広々としていて良い雰囲気です。
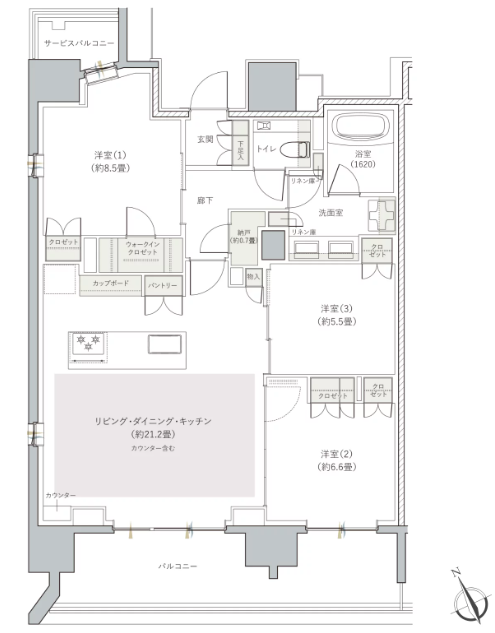
予定価格と間取りの一部を共有いたします!
B 2LDK 53.90㎡
10階 13600万円台 坪単価834万円
C 3LDK 63.00㎡
10階 15100万円台 坪単価792万円
E 1LDK 31.02㎡
F 2LDK 62.11㎡
10階 14500万円台 坪単価771万円
G 3LDK 93.09㎡ ※プレミアムタイプ
平均坪単価は770万円ほどになりそうでしょうか。
1LDKは31㎡台と狭く窓面も今一つではあるものの本来窓となる部分をカウンターとしているのは良いですね。デスクを買う必要がなさそうです。
それでいて平均坪単価より安い単価でグロス6000万円台とするなど『投資家も意識した値付け』と言えるでしょう。
とはいえ食洗機も完備するなど住み心地も意識してくれているためマイホーム検討のシングル層も面積さえ呑めればとっつきやすいことでしょう。
専有面積調整している63㎡の3LDKに関してはシンプルに狭いものの限られた予算で間数が欲しい方には合ってきそうですね。
設備仕様としてはディスポーザー、食洗機、水回り天板シーザーストーン、手洗いカウンター&ローシルエットトイレ、ウルトラファインバブル給湯器、ゼッチ基準、住戸玄関前含む顔認証システムなど単価帯なりに充実しています。
1階共用部の宅配ロッカーが冷凍対応なのも今どきで良いですね。
Gタイプは食洗機ミーレ、浴室オーバーヘッドシャワー、リビング天カセなどプレミアム仕様となります。
構造は二重床・二重天井、基本天井高のボリュームゾーンは2500mmです。
周辺相場を確認しましょう!
■セントラルレジデンス新宿シティタワー
2002年築 新宿駅徒歩9分
新築時の坪単価約300万円
現在の坪単価約800万円
動き一例
約78㎡
新築時7800万円台
中古時18800万円台
約108㎡
新築時12300万円台
中古時28800万円台
■ジオ西新宿ツインレジデンスイースト棟
2012年築 西新宿駅徒歩6分
新築時の坪単価約265万円
現在の坪単価約540万円
動き一例
約58㎡
新築時4800万円台
中古時9500万円台
■パークリュクス西新宿
2012年築 西新宿駅徒歩6分
新築時の坪単価約265万円
現在の坪単価約540万円
動き一例
約41㎡
新築時3300万円台
中古時7100万円台
上記相場からブリリア西新宿が今時点で築10年だった場合の価値を算出すると
C 3LDK 63.00㎡ 3階 13800万円台 → 11300万円(築10年と想定)
となります。
あくまで今の相場での算出のため参考までにお願いいたします。
駐車場は屋内平置き1台、屋外平置き1台(身障者優先)、屋外機械式10台で設置率約17%です。
出入口は東側の細い道ですから一通ではないため税務署通りからの出入りが可能です。
~機械式駐車場サイズ~
全長5300mm×全幅1950mm×全高2100mm×重量2300kg
プレミアム住戸は新築時の優先権が付いています。
駐輪場は便利な1階屋内で1世帯1台は確保できます。
管理費や地代などランニングコストは未定でした。
周辺分譲マンションの維持費を確認しましょう!
■セントラルレジデンス新宿シティタワー 総戸数316戸 管理費㎡単価月額約353円
■ジオ西新宿ツインレジデンスイースト棟 総戸数72戸 管理費㎡単価月額約294円
■パークリュクス西新宿 総戸数71戸 管理費㎡単価月額約345円
【住むレーション】
[丸ノ内線]
西新宿 8:01発
新宿 8:02着
新宿三丁目 8:04着
新宿御苑前 8:06着
四谷三丁目 8:08着
四ツ谷 8:11着
赤坂見附 8:14着
国会議事堂前 8:16着
霞ヶ関 8:18着
銀座 8:20着
東京 8:23着
[山手線]
新宿 8:01発
新大久保 8:04着
高田馬場 8:06着
目白 8:08着
池袋 8:11着
新宿 8:02発
代々木 8:04着
原宿 8:06着
渋谷 8:09着
[中央快速線]
新宿 8:00発
四ツ谷 8:04着
御茶ノ水 8:09着
神田 8:12着
東京 8:14着
[都営大江戸線]
新宿 8:01発
代々木 8:02着
国立競技場 8:05着
青山一丁目 8:08着
六本木 8:11着
[都営新宿線]
新宿 8:03発
新宿三丁目 8:04着
曙橋 8:07着
市ヶ谷 8:09着
九段下 8:12着
神保町 8:14着
[成田エクスプレス]
新宿 5:55発
渋谷 6:00着
東京 6:16着
千葉 6:43着
空港第2ビル(成田第2・第3ターミナル) 7:15着
成田空港(成田第1ターミナル) 7:19着
[空港リムジンバス]
ヒルトン東京 5:45発
新宿駅西口[京王百貨店前] 6:00発
バスタ新宿 6:10発
成田空港第3旅客ターミナル 7:32着
成田空港第2旅客ターミナル 7:35着
成田空港第1旅客ターミナル 7:40着
バスタ新宿 4:40発
羽田空港第2ターミナル 5:05着
羽田空港第1ターミナル 5:10着
羽田空港第3ターミナル 5:20着
[山梨交通]
新宿 7:55発
~中略~
甲府駅 9:54着
鉄道利用はもちろんバスタもありますから高速バスの利用も大変便利です。
首都高の出入口も近いですからマイカー派も行動範囲が広がることでしょう。
【総評】
とても便利なロケーションですね…これはいいです。
長い時間はかかりますが新宿駅の大改造も楽しみが大きいところです。
子育てファミリーウケはあまりよくないかとは思いますがシングル~ディンクスからしたらかなり楽しい生活が送れるでしょう。(そもそもほとんどが1~2人世帯向けの面積)
西新宿駅へ徒歩5分となれば新宿エリア勤務のみならず大手町など山手線内側の都心勤務者にも合ってきますね。
新宿駅へサクッと歩けることから『徒歩で新宿を庭にできる』ということに価値を感じる方からすれば替えが効きにくく定借ではあるものの選びたくなるでしょう。
規模感はないもののコストをかけたカッコいい建物、先進の設備仕様などスペック面でも心躍らせてくれます。
そんじょそこらの賃貸と似たような箱ではないという主張はシングル・ディンクス層の心を掴むパワーがあること間違いなしです。
価格に関しては安くはないですね…(正式価格ではもう少し優しくなると嬉しいですが総戸数も少なく弱気になる理由もなさそう)
地代も全込ではなく月払いもあるためランニングコストも気になるところです。
言わずもがなですがリセールに対しての優先順位が高い方が選ぶ物件ではないでしょう。
とはいえ希少性あるロケーションですから新宿至近の駅近に住みたいという方からすれば良い意味で『買うしかない』ですから気持ちよくGOできることでしょう。(今後出てくる物件にも負けないロケーション)
ただ、新宿を庭にすることに対して『徒歩で』にこだわらなければ同じ定借でも強キャラすぎるパークタワー渋谷笹塚があります。
パークタワー渋谷笹塚、定借らしい価格で買いやすいですね~しかも下記住戸は先着順!!
58Bb1 2LDK 58.70㎡
11階 11350万円 坪単価639万円65C 3LDK 65.35㎡
4階 11590万円 坪単価586万円65G1 3LDK 65.61㎡
10階 12290万円 坪単価619万円 pic.twitter.com/g5rqMHwqAr— マンションマニア (@mansionmania) March 24, 2026
新宿を庭にすることに対して徒歩にこだわらないのであれば現状ではパークタワー渋谷笹塚が強すぎるというのが正直なところです。
ブリリア西新宿が魅力あるロケーションであることは確かですが、パークタワー渋谷笹塚は笹塚駅から雨に濡れない実質直結のようなもっとスペシャルロケーションで規模感もありますからね…
もちろん繰り返しになりますが新宿駅徒歩圏にこだわる方にとってパークタワー渋谷笹塚はライバルにならないわけですが。(ブリリア西新宿は新宿駅至近というロケーションを買う物件)
きっと『いやいや、それなら新宿駅からちょっと離れるけど所有権のパークタワー西新宿買えばいいじゃん』と思われる読者様も多いかと思いますが、そのパークタワー西新宿の取引平均値は坪単価1000万円ですから価格が異なりすぎます…
関連記事
パークタワー西新宿 最終期の価格と間取り 平均坪単価約595万円













コメントを残す