今回ご紹介するのはザ・パークハウス 吉祥寺プレイスです!
[物件概要]
売主:三菱地所レジデンス
施工:森本組
価格:未定
専有面積:63.61㎡~104.82㎡(408号室のみトランクルーム面積0.77㎡を含む)
総戸数:35戸
規模:4階建て
交通:JR中央快速線・総武緩行線・京王井の頭線「吉祥寺」駅徒歩12分
所在地:東京都武蔵野市吉祥寺北町1丁目
竣工:2026年1月
引き渡し予定:2026年9月下旬
駐車場:17台(機械式16台、身障者用平置1台※優先権付き住戸対象8台含む)
自転車置場:63台〔2段ラック式52台(上段ラック式18台、下段スライド式34台)平置式9台、平置式(子供用)2台〕
バイク置場:2台(大型1台、中型1台)
地図はこちらです↓
吉祥寺駅北口から五日市街道方面へ進み月見小路へ入って数十m進んだ先の住宅街に位置しています。
用途地域は第一種低層住居専用地域、従前は複数の戸建て(日銀の社宅)があった閑静な住環境でありながらも駅から離れすぎず、アーケード街や東急百貨店を経由できる楽しく便利な動線です。
通り道で武蔵野八幡宮を自然と望めるのも武蔵野らしさを感じられて良いですね。ついつい挨拶したくなりそうです。(私も物件調査で通るたび挨拶しています)
小路沿いゆえに道は狭いですが、だからこそ隠れ家的なロケーションとも言えるでしょう。(なんと相互通行です…)
これまで数多くの吉祥寺物件をウォッチしてきていますが今作のことを知った際には『えっ?あの辺りにマンション建設できる土地あったっけ?!』と驚いたくらいです。
吉祥寺は分譲マンションの数が多いため歩きに歩いた街の一つではありますが月見小路はおそらく今作をきっかけに初めて歩いた道だと思います。
あれだけマンションが点在する街なのに歩いたことがないくらいマンションが建設されてこなかったということです。(パークハウス吉祥寺北町も2つ横の道のため月見小路は通らない)
一般的に駅徒歩12分は駅から遠い印象になるかと思いますが吉祥寺で探されている方からするとむしろ近いと感じる方も少なくないはずです。
ましてや今作は第一種低層住居専用地域ですから既存のマンションと比べても希少性があります。(キャラクターが似たマンションが少ない)
徒歩3分~5分のところにある武蔵野八幡宮停留所から路線バスにて吉祥寺駅と行き来することもできます。(他系統のバス停留所も徒歩4分前後に点在しています)
駅付近の渋滞に巻き込まれがちではありますが運行本数は充実していますので時間短縮というより雨の日などの濡れ回避として利用されるのであれば便利でしょう。(そういった雨の日は車内もより混雑するため歩いてしまった方が現実的ではあります)
日常の買い物は五日市街道沿いのまいばすけっとが徒歩3分、八幡宮前交差点のマルエツが徒歩5分、東急百貨店が徒歩7分、コピス吉祥寺(三浦屋等)と西友が徒歩8分であるなどその日の気分やお財布事情によって選ぶことができます。
通学校は第四小学校で徒歩6分、第四中学校で徒歩21分です。私立中学も選択肢が多い路線ですから受験派にとってもとっつきやすいことでしょう。
井の頭公園までは約1キロほどです。
現地は南北に長い土地形状で東側の月見小路のみ接道しています。
2026年1月に竣工済み、実際の建物内を見学しつつ購入判断することができますし年内入居というスピード感も魅力の一つとなります。
主開口部は東南東、接道幅が短いこともあり向かいの戸建はそれなりに見えてはきますが将来的に条件が変わりにくいという安心感があります。(前の建物との距離や電線の位置など現物を確認できるので尚更)
高さ制限が厳しい中で総戸数を増やすべく地下住戸の設定があります。
表記上は地下住戸が1階、エントランス階が2階、最上階が4階です。
その地下住戸はスロップシンク付の大型テラスがあり植栽を目隠しとしているなど閉鎖的にならない工夫がなされています。壁面のタイル貼りなど『むしろ選びたくなる地下住戸』と言えるでしょう。
もちろん積極的に地下住戸をおすすめするわけではありません。
ただ、私自身も実物を見てテンションが上がり、もしも私が当マンションを買うのであれば地下住戸を候補に入れることは確かです。
それくらいスペシャルな地下住戸でしたので気になる方は見学してみることをおすすめいたします。
最上階はプレミアム住戸設定で視界抜けもしてきます。向かいもしばらく低層住居専用地域のため空の広がり方もスペシャルですね。(電線は視界に入ります)
外観デザインは軒裏を木調、それを妻側で横に突き抜けるなど小路から見上げられることを意識したものとなっています。(今作に関しては遠くから見られることはあまりなく、小路を歩く中でふと目に入るロケーション)
バルコニーの隣戸境もコンクリートもしくはスラブtoスラブの隔て板です。
半円形の車寄せ中央には景石&植栽、小路を暖かく照らす階段部分のライティング(横にスロープもあります)、ブラックの大庇(助手席側はぎりぎり濡れない程度のため完全なる庇ではない)を設けるなどアプローチ部分も心躍るものとしてくれています。館銘板の雰囲気も良いですね。
風除室とエントランスホールは総戸数なりにこじんまりしていますが正面のラウンジは下部の窓先から西側の植栽を望めるなどこちらも雰囲気良いですね。
予定価格と間取りの一部を共有いたします!
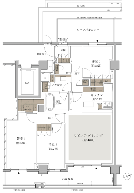
A1t 2LDK 63.61㎡
Ct 3LDK 73.56㎡
C 3LDK 73.56㎡
3階 16000万円~16499万円 坪単価719万円~坪単価741万円
E 3LDK 78.60㎡
Gr 3LDK 83.27㎡
N 3LDK 95.09㎡
平均坪単価は730万円前後となりそうでしょうか。
平均専有面積は約77㎡、4階は80㎡台~100㎡台で構成されたプレミアムフロアとなっています。
1階~3階のコンフォートプランだけで見ても平均専有面積約73㎡ですから今の時代にしてはゆとりがあって良いですね。(広い部屋を作っても売れるエリアだからこそ成せる業)
内廊下×ワイドスパン中住戸を基本としており2LDKに関しては行燈部屋なし、3LDKはキッチンがL字でリビングがかなり縦長になってしまいますが洋室を広げることで広々とした1LDK~2LDKとしても暮らせますね。(2LDKは間取りが綺麗なだけに浴室サイズが惜しい)
中央に配されたL字キッチンは好みが分かれるところかと思いますが廊下側と2wayになっており回遊性を高めてくれています。
柱の食い込みも抑えてくれているため有効面積も高めです。
住戸によってリビング中央付近に下がり天井があるのですがその辺り含めて実物で確認できるは安心ですね。
角住戸は一般的なスパンですが両面バルコニー(サービススペース含む・南寄り住戸は向かいの都営団地とこんにちはのため眺望としての楽しみはない)とすることで行燈部屋なし、こちらは一般的な半オープンキッチンです。
設備仕様としてはディスポーザー、食洗機、水回り天板天然石、ミストサウナ、ローシルエットトイレ&手洗いカウンター、ゼッチ基準も満たしているなど単価帯なりにしっかりとしています。キッチンの扉が突板であるなど細かい部分にもコストをかけてくれています。
ただ、比較的キャラクターが似ており記憶にも新しいザ・パークハウス武蔵野レジデンスに設置されていた玄関前個別宅配ボックスがないのは惜しいところです。
最上階のプレミアムはリビング天カセ、住戸によっては洗面ダブルボウル、ルーフバルコニーウッドデッキ、トランクルームなどスペックが高くなります。
構造は二重床・二重天井、基本天井高は2500mm~2550mmです。
周辺相場を確認しましょう!
■パークスクエア吉祥寺本町
2000年築 吉祥寺駅徒歩14分
新築時の坪単価約290万円
現在の坪単価約410万円
動き一例
約75㎡
新築時6800万円
中古時9900万円台
■グローリオ吉祥寺本町
2003年築 吉祥寺駅徒歩3分
新築時の坪単価約266万円
現在の坪単価約500万円
約68㎡
新築時5600万円台
中古時10300万円台
■吉祥寺御殿山ハウス
2013年築 吉祥寺駅徒歩10分
新築時の坪単価約345万円
現在の坪単価約650万円
動き一例
約72㎡
新築時7400万円台
中古時14200万円台
■レジデンスコート吉祥寺
2021年築 三鷹駅徒歩17分
新築時の坪単価約330万円
現在の坪単価約430万円
動き一例
約75㎡
新築時7700万円台
中古時10000万円台
■サンウッド吉祥寺南町一丁目
2025年築 吉祥寺駅徒歩3分
新築時の坪単価約800万円
新築販売中
■リビオ吉祥寺南町
2026年築 吉祥寺駅徒歩7分
新築時の坪単価約675万円
新築販売中
■プラウド吉祥寺本町
2026年5月竣工予定 吉祥寺駅徒歩6分
新築時の坪単価約795万円
新築販売中
上記相場からザ・パークハウス 吉祥寺プレイスが今時点で築10年だった場合の価値を算出すると
C 3LDK 73.56㎡ 3階 16000万円~16499万円 → 15380万円(築10年と想定)
となります。
あくまで今の相場での算出のため参考までにお願いいたします。
駐車場は身障者優先の屋外平置き1台、ターンテーブル利用の屋外機械式が16台、設置率は50%弱とけっこう多いですね。(駅徒歩5分のプラウド吉祥寺本町が驚きの駐車場なしだったこともあり余計に多く感じますね。笑)
機械式は丸出しタイプのため物件価格からすると物足りない駐車場事情ですがサイズ感は悪くありません。
~機械式駐車場パレットサイズ~
全長5300mm×全幅1950mm×全高1850mm/2100mm×重量2300kg×最低地上高120mm
最上階は新築時の抽選優先権が付与されるため希望すれば確保することができます。
駐輪場は建物下屋内で設置率約180%です。
管理費は㎡単価月額約425円、空調完備の内廊下でディスポーザーあり、総戸数35戸ながらエレベーターが2基ある(分速60m・2階以外は中央付近の通り抜けができないため利用できるのは1基)割に抑え目です。
エレベーターの待ち時間はほぼないでしょうしコストパフォーマンスが良いですね。
修繕積立金の初期設定は㎡単価月額約230円です。
周辺分譲マンションの維持費を確認しましょう!
■パークスクエア吉祥寺本町 総戸数134戸 管理費㎡単価月額約185円
■グローリオ吉祥寺本町 総戸数134戸 管理費㎡単価月額約150円
■吉祥寺御殿山ハウス 総戸数169戸 管理費㎡単価月額約225円
■レジデンスコート吉祥寺 総戸数52戸 管理費㎡単価月額約262円
■サンウッド吉祥寺南町一丁目 総戸数15戸 管理費㎡単価月額約678円
■リビオ吉祥寺南町 総戸数14戸 管理費㎡単価月額約598円
■プラウド吉祥寺本町 総戸数36戸 管理費㎡単価月額約780円
【住むレーション】
[中央快速線]
吉祥寺 8:00発
西荻窪 8:02着
荻窪 8:05着
阿佐ヶ谷 8:08着
高円寺 8:10着
中野 8:13着
新宿 8:18着
四ツ谷 8:23着
御茶ノ水 8:28着
神田 8:30着
東京 8:32着
吉祥寺 8:03発
三鷹 8:05着
武蔵境 8:08着
東小金井 8:10着
武蔵小金井 8:13着
国分寺 8:17着
西国分寺 8:22着
国立 8:25着
立川 8:28着
日野 8:31着
豊田 8:34着
八王子 8:38着
[総武緩行線]
吉祥寺 7:59発
西荻窪 8:02着
荻 窪8:05着
阿佐ヶ谷8 :07着
高円寺 8:09着
中野 8:12着
東中野 8:15着
大久保 8:17着
新宿 8:20着
代々木 8:22着
千駄ヶ谷 8:24着
信濃町 8:26着
四ツ谷 8:28着
市ヶ谷 8:30着
飯田橋 8:32着
水道橋 8:34着
御茶ノ水 8:38着
秋葉原 8:40着
[東西線直通]
吉祥寺 7:56発
西荻窪 7:59着
荻窪 8:02着
阿佐ヶ谷 8:04着
高円寺 8:06着
中野 8:09着
落合 8:12着
高田馬場 8:15着
早稲田 8:19着
神楽坂 8:22着
飯田橋 8:24着
九段下 8:26着
竹橋 8:29着
大手町 8:31着
日本橋 8:33着
[京王井の頭線]
※平日の朝ラッシュ時以外は急行利用で渋谷駅まで約20分
吉祥寺 8:00発
井の頭公園 8:01着
三鷹台 8:02着
久我山 8:04着
富士見ヶ丘 8:06着
高井戸 8:08着
浜田山 8:10着
西永福 8:11着
永福町 8:13着
明大前 8:16着
東松原 8:18着
新代田 8:19着
下北沢 8:21着
池ノ上 8:23着
駒場東大前 8:25着
神泉 8:26着
渋谷 8:29着
[空港リムジンバス]
吉祥寺駅 4:45発
羽田空港第2ターミナル 5:27着
羽田空港第1ターミナル 5:32着
羽田空港第3ターミナル 5:39着
[高速バス]
吉祥寺駅北口 6:20発
東京ディズニーシー 7:30着
東京ディズニーランド 7:40着
中央線のグリーン車導入により課金しての快適移動もできるようになりました。
首都高4号線の高井戸ICまでは約6キロと少々距離があります。
日々は過ぎれど飯うましー!!
八王子の伊勢屋本店でいなり寿司セットを購入!
店内空いていたため写真も撮らせていただけましたm(_ _)m
次の物件調査地へ向かう中央線車内でいただきます!#ひびめし pic.twitter.com/HEryacFUKy
— マンションマニア (@mansionmania) February 16, 2026
【総評】
これは良いですね~!!
住居に静けさを求めつつも利便性高い生活を求める方にとってはとても良い選択となることでしょう。
駅徒歩12分と少し駅距離はありますが商業エリアが通り道のため日常の買い物は便利ですし、五日市街道から奥に入りすぎないため寂しさもありません。
総戸数35戸に対して19タイプのプラン設定があるため好みの間取りと出逢いやすく、それに対して商品力もしっかりとしています。
繰り返しになりますが地下住戸、マジで良かったです。(地下住戸は好みでない自分がそう感じたくらいなので人気出ると思います)
地下住戸は『価格を抑えるための選択肢』となりがちですが、スロップシンク付きの大型テラスや壁面の高級感など『地下住戸を妥協の選択肢としてほしくない』という地所レジの強い思いを感じることができました。
価格に関してはざっくり予定価格ではありますが周辺相場からすれば違和感はありません。
中古市場でお安く買おうとしても容易でないですから気持ちよく新築で買ってしまった方が良いでしょう。(ザ・パークハウス吉祥寺も中古市場でなかなかお目にかかれないですよね…)
余談にはなりますが先に述べたように吉祥寺は分譲マンションの供給数が多いためこの25年間くらいで数多くの道を歩いてきたのですが恥ずかしながら月見小路を歩いたのはおそらく初めてです。
吉祥寺で物件調査をしていると言ってもそれは分譲マンションオンリーであり吉祥寺の戸建事情にはあまり詳しくありません。
今作はほぼ戸建てしかないところに位置しているためマンションばかり見ている私には知らない顔の吉祥寺でした。
もちろんエリア柄戸建に囲まれた低層マンション自体は珍しくないですし、もっと言えば駅南側×駅近や御殿山アドレスなど強キャラ物件もあるわけですが今作の希少性が高いことは確かでしょう。
関連記事
エステムコートグラン 吉祥寺 価格と間取り モデルルーム訪問
パークホームズ吉祥寺北 ザ ガーデン 予定価格と間取り 新宿サロン訪問
プラウドシティ吉祥寺 価格と間取り 2020年7月時点の販売状況など















コメントを残す