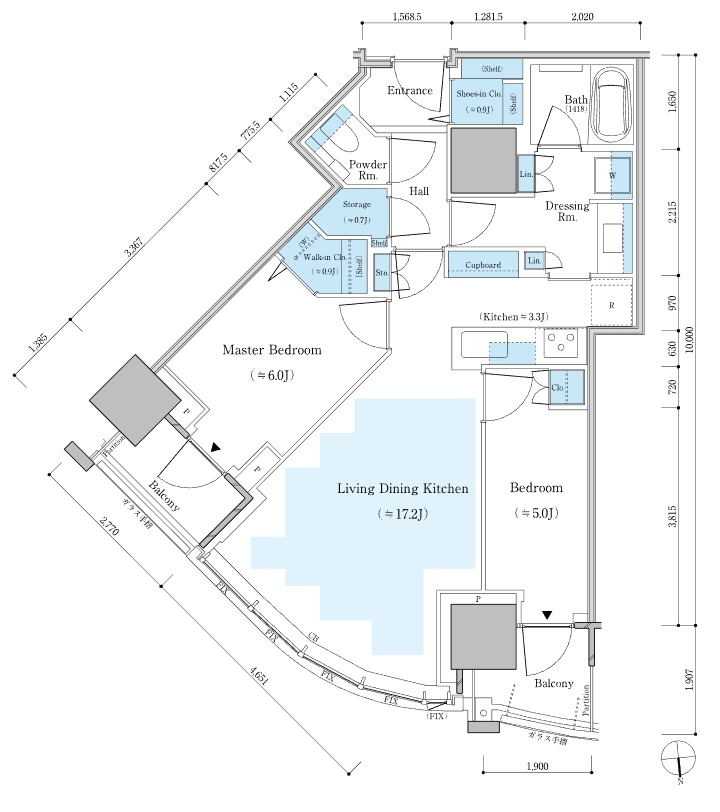
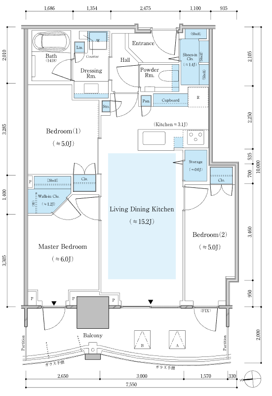
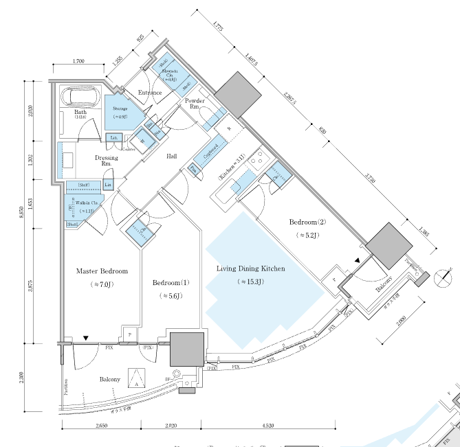
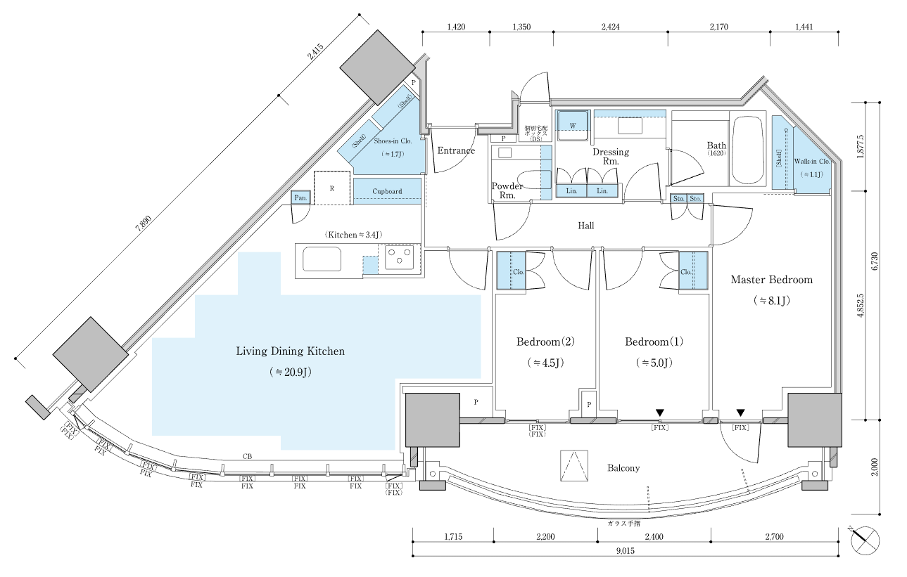
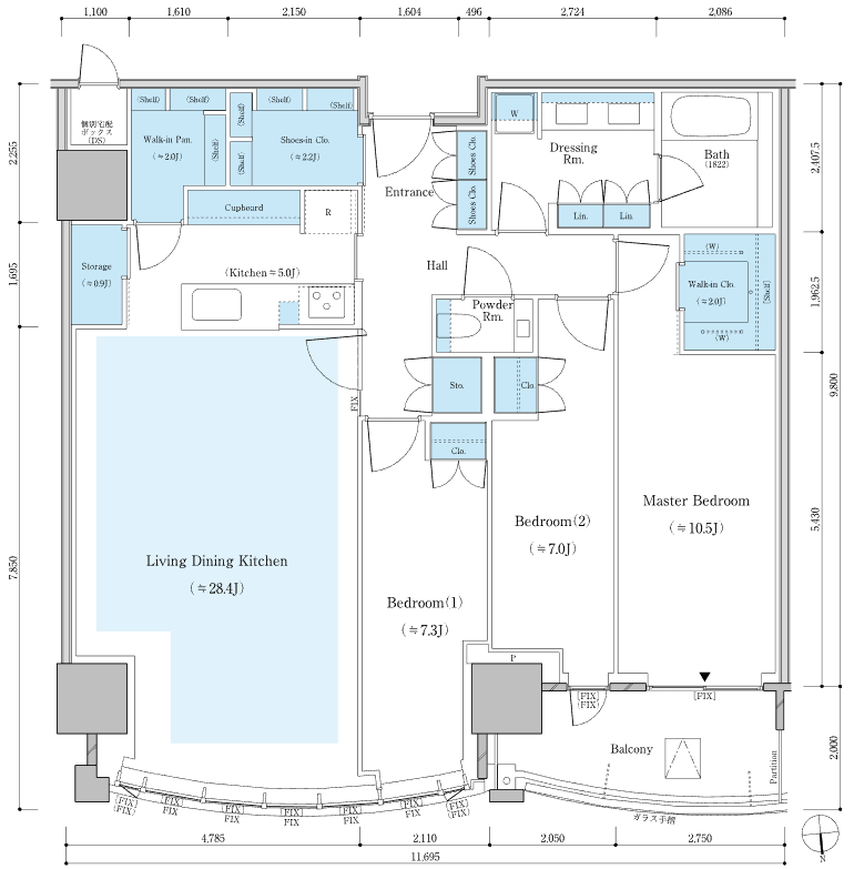
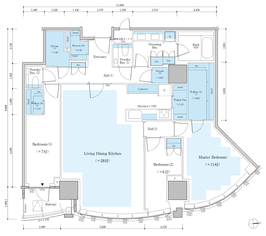
ザ豊海タワー マリン&スカイ、第3期1次の予定価格と間取りが出ましたので共有いたします!
※画像出典:公式HP
※眺望はタイプ毎の最上階
※眺望はLD視点を選択
[スーペリア]
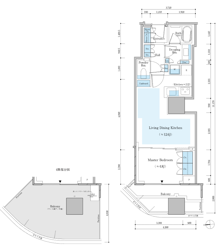
W-43Aw 1LDK 43.48㎡


4階 7440万円 坪単価565万円
5階 7460万円 坪単価567万円
6階 7480万円 坪単価568万円
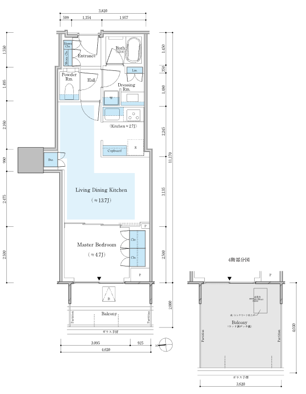
W-44An 1LDK 44.32㎡


20階 8900万円 坪単価663万円
21階 8920万円 坪単価665万円
22階 8940万円 坪単価666万円
23階 8960万円 坪単価668万円
24階 8980万円 坪単価669万円
25階 9000万円 坪単価671万円
26階 9020万円 坪単価672万円
27階 9040万円 坪単価674万円
28階 9060万円 坪単価675万円
29階 9080万円 坪単価677万円
W-45Aw 1LDK 45.55㎡


4階 7940万円 坪単価576万円
5階 7960万円 坪単価577万円
6階 7980万円 坪単価579万円
W-50Asw 1LDK 50.85㎡


4階 8480万円 坪単価551万円
5階 8500万円 坪単価552万円
6階 8520万円 坪単価553万円
8階 8560万円 坪単価556万円
9階 8980万円 坪単価583万円
10階 9480万円 坪単価616万円
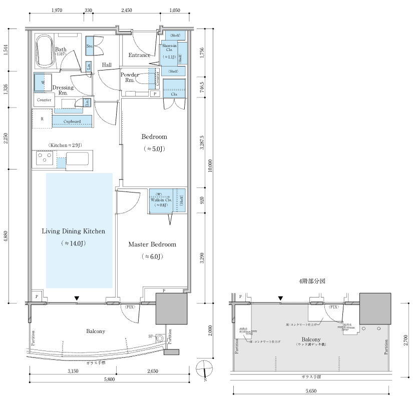
E-57Bn 2LDK 57.69㎡


4階 12670万円 坪単価726万円
5階 12700万円 坪単価727万円
6階 12730万円 坪単価729万円
7階 12760万円 坪単価731万円
8階 12790万円 坪単価732万円
9階 12820万円 坪単価734万円
10階 12850万円 坪単価736万円
11階 12880万円 坪単価738万円
12階 12910万円 坪単価739万円
13階 12940万円 坪単価741万円
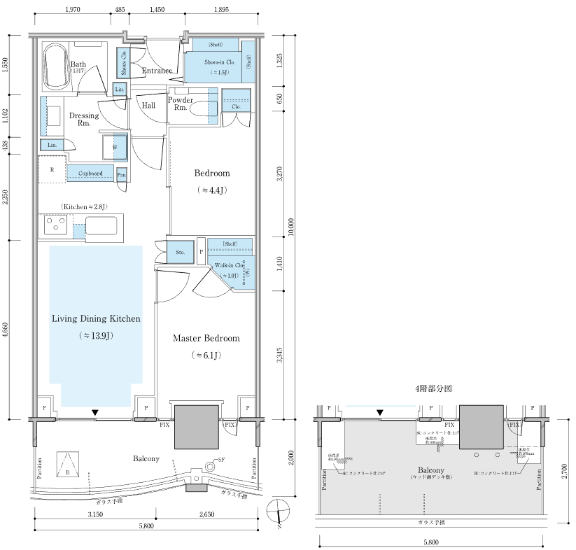
E-57Dn 2LDK 57.76㎡


4階 12670万円 坪単価725万円
5階 12700万円 坪単価726万円
7階 12760万円 坪単価730万円
8階 12790万円 坪単価732万円
9階 12820万円 坪単価733万円
10階 12850万円 坪単価735万円
11階 12880万円 坪単価737万円
14階 12970万円 坪単価742万円
E-66Bnw 2LDK 66.95㎡


20階 17800万円 坪単価878万円
21階 17850万円 坪単価881万円
22階 17900万円 坪単価883万円
23階 17950万円 坪単価886万円
24階 18000万円 坪単価888万円
W-67Cne 2LDK 67.58㎡


18階 13690万円 坪単価669万円
19階 13710万円 坪単価670万円
20階 13730万円 坪単価671万円
21階 13750万円 坪単価672万円
22階 13770万円 坪単価673万円
23階 13790万円 坪単価674万円
24階 13810万円 坪単価675万円
25階 13830万円 坪単価676万円
26階 13850万円 坪単価677万円
27階 13870万円 坪単価678万円
28階 13890万円 坪単価679万円
29階 13910万円 坪単価680万円
30階 14110万円 坪単価690万円
31階 14150万円 坪単価692万円
32階 14190万円 坪単価694万円
33階 14230万円 坪単価696万円
34階 14270万円 坪単価698万円
35階 14310万円 坪単価700万円
36階 14350万円 坪単価702万円
37階 14390万円 坪単価703万円
W-67Dne 2LDK 67.58㎡


38階 14590万円 坪単価713万円
39階 14630万円 坪単価715万円
40階 14670万円 坪単価717万円
41階 14710万円 坪単価719万円
42階 14750万円 坪単価721万円
43階 14790万円 坪単価723万円
44階 14830万円 坪単価725万円
45階 14870万円 坪単価727万円
46階 14910万円 坪単価729万円
47階 14950万円 坪単価731万円
48階 14990万円 坪単価733万円
49階 15090万円 坪単価738万円
50階 15290万円 坪単価747万円
E-70Cw 3LDK 70.37㎡


21階 18190万円 坪単価854万円
22階 18240万円 坪単価856万円
23階 18290万円 坪単価859万円
24階 18340万円 坪単価861万円
26階 18440万円 坪単価866万円
27階 18490万円 坪単価868万円
28階 18540万円 坪単価871万円
29階 18590万円 坪単価873万円
30階 18640万円 坪単価875万円
31階 18690万円 坪単価878万円
32階 18740万円 坪単価880万円
33階 18790万円 坪単価882万円
34階 18840万円 坪単価885万円
35階 18890万円 坪単価887万円
36階 18940万円 坪単価889万円
37階 18990万円 坪単価892万円
E-70Dw 3LDK 70.37㎡


38階 19190万円 坪単価901万円
39階 19240万円 坪単価903万円
40階 19290万円 坪単価906万円
41階 19340万円 坪単価908万円
42階 19390万円 坪単価910万円
43階 19440万円 坪単価913万円
44階 19490万円 坪単価915万円
45階 19540万円 坪単価917万円
46階 19590万円 坪単価920万円
47階 19640万円 坪単価922万円
48階 19690万円 坪単価925万円
49階 19790万円 坪単価929万円
50階 19990万円 坪単価939万円
W77-Ase 3LDK 77.15㎡


4階 17790万円 坪単価762万円
5階 17840万円 坪単価764万円
6階 17890万円 坪単価766万円
7階 17940万円 坪単価768万円
8階 17990万円 坪単価770万円(2LDK)
12階 19790万円 坪単価848万円
13階 19840万円 坪単価850万円
16階 19990万円 坪単価856万円
W-79Bse 3LDK 79.90㎡


20階 21140万円 坪単価874万円
21階 21190万円 坪単価876万円
22階 21240万円 坪単価878万円
24階 21340万円 坪単価882万円
25階 21390万円 坪単価885万円
26階 21440万円 坪単価887万円
27階 21490万円 坪単価889万円
29階 21590万円 坪単価893万円(2LDK)
30階 21640万円 坪単価895万円
31階 21690万円 坪単価897万円
32階 21740万円 坪単価899万円(2LDK)
33階 21790万円 坪単価901万円
34階 21840万円 坪単価903万円
35階 21890万円 坪単価905万円(2LDK)
36階 21940万円 坪単価907万円
37階 21990万円 坪単価909万円
W-79Cse 3LDK 79.90㎡


38階 22390万円 坪単価926万円
39階 22490万円 坪単価930万円(2LDK)
40階 22790万円 坪単価942万円
41階 22890万円 坪単価947万円
42階 22990万円 坪単価951万円
43階 23090万円 坪単価955万円
44階 23190万円 坪単価959万円
45階 23290万円 坪単価963万円
46階 23390万円 坪単価967万円(2LDK)
47階 23490万円 坪単価971万円
48階 23590万円 坪単価976万円
49階 23990万円 坪単価992万円
[プレミアム]
E-94Asw 3LDK 94.52㎡


53階 33000万円 坪単価1154万円
E-96Bw 3LDK 96.61㎡


51階 34900万円 坪単価1194万円
52階 35000万円 坪単価1197万円
W-97As 3LDK 97.35㎡


51階 37400万円 坪単価1270万円
52階 37500万円 坪単価1273万円
W-97Cn 3LDK 97.76㎡


51階 33900万円 坪単価1146万円
52階 34000万円 坪単価1149万円
W-113Ase 3LDK 113.33㎡


51階 44480万円 坪単価1297万円
52階 44580万円 坪単価1300万円
E-124An 3LDK 124.32㎡


53階 49900万円 坪単価1326万円
E-130Bn 3LDK 130.31㎡


53階 50980万円 坪単価1293万円
E-133Ae 3LDK 133.42㎡


53階 49900万円 坪単価1236万円
平均坪単価は約820万円です。
東京湾岸全体の相場がここ数ヵ月落ち着いていることもあってか現実路線の価格設定となっていますね!
人によっては『こんな弱気な価格設定で今後大丈夫なの?』と思うかもしれません。
以前からお伝えしているところではありますが、そう考えて不安になってしまう方はパークタワー勝どきなど『他がどんな価格になろうと俺は俺』と言えるようなロケーションのマンションを選ぶべきでしょう。
駅徒歩10分なわけでいくらカッコいいマンションでいくら眺望が良くてもある程度価格で頑張る必要があるのは当然のことなのですから。
そもそも周辺中古マンションが高すぎることで安く見えているというのもありますからね…(新築は非売品化されているエリアのため中古が高値で動くことに違和感はないです)
もちろんその駅距離を呑んででも欲しくなるような魅力があるマンションですから惚れこんでいるならば資産性の心配はほどほどにGOすべき物件でしょう。
竣工すれば『すっげぇマンション』となることは確かなわけでオーナー満足度としてはかなりのかなり期待ができますからね!
相場上昇止まってしまった…?利上げもあるし…
多くの人が不安になる時にシレっと購入できる人は結果ハッピーになれるというのは何度も何度も起きてきたことです。(もちろん万が一値下がったとしても後悔ないかどうかは大事)
第3期1次は2026年2月中旬頃に登録申込受付開始からの抽選会となる予定です。
関連記事
ザ豊海タワー マリン&スカイ 第2期2次の予定価格と間取り またまた思いのほか現実路線の価格設定
セントラルガーデン月島ザタワー 第1期2次の予定価格と間取り 5%ほどの値上げ
記事が参考になったら資料請求は下記からお願いします!
資料請求はこちらから-
気になったらすぐに資料請求するのがおすすめ!ライバルは多いものです!

Powerd by LIFULL HOME’S








コメントを残す