今回ご紹介するのはイニシア大田糀谷です!
[物件概要]
売主:コスモスイニシア
施工:大末建設
価格:6698万円~11098万円
専有面積:44.64㎡~78.21㎡
総戸数:66戸
規模:8階建て
交通:
京急空港線「糀谷」駅徒歩10分
京急空港線「大鳥居」駅徒歩10分
京浜急行線「京急蒲田」駅徒歩18分
所在地:東京都大田区西糀谷3丁目
竣工予定:2026年3月下旬
引き渡し予定:2026年4月下旬
駐車場:14台(平置:1台(身障者用)、機械式:13台) 使用料:月額25000円、26000円、27000円、29000円
バイク置場:10台 使用料:月額2000円
自転車置場:118台(2段ラック式下段スライド型 上段:29台 下段:65台 スライドラック式:24台) 使用料:月額100円、200円、300円
管理費:13000円~22800円(月額)
修繕積立金:7300円~12700円(月額)
インターネット使用料:1078円(月額)
地図はこちらです↓
『どこジャ?コウジヤ?』というキャッチコピーは面白いですけども糀谷の知名度そんなに低いですかね?!!
もちろん広告の意図として『知名度以上の魅力がありますよ~』ということを伝えたいことはわかりますけども。
新築マンションの供給がお久しぶりだからこそできたキャッチコピーではありますね。(西糀谷エリア最後の供給は2020年築のライオンズ蒲田レジデンスでお膝元のグランイーグルでさえ供給をしなくなっている)
最寄り駅は糀谷と大鳥居でどちらも徒歩10分、京急蒲田に関しては徒歩18分といずれも距離はありますが自転車利用であれば京急蒲田も身近な距離感ではありますね。
また、通勤先次第ではありますが大鳥居駅から天空橋まで出てモノレールで都心方面へ向かうルートもおすすめです。
朝のモノレールは都心方面がそこまで混雑していないことが多く比較的快適な都心通勤が叶います。
蒲蒲線はもちろんのこと東京モノレールの浜松町駅大改良工事の恩恵も受けられるという将来性も面白いですね!
日常の買い物は産業道路沿いのグルメシティが徒歩6分、同じく産業道路沿いのサミットストアが徒歩8分、萩中公園近くのビッグ・エーも徒歩8分、その近くのマルエツが徒歩10分、おいで通りのフレスコベンガベンガが徒歩9分、糀谷駅前高架下の業務スーパー(旧京急ストア)も徒歩10分、複数の商店街もある街ですから自転車利用であればかなり選択肢が広がります。
ハザードマップでがっつり色はつきますが平坦なエリアのため自転車移動が便利です。
通学校は糀谷小学校で徒歩3分、糀谷中学校で徒歩1分(改築中は日中音ネックとなるかも?)とどちらもすごく近くて良いですね。
西糀谷三丁目児童公園が徒歩1分、萩中公園(交通公園・プール等)も徒歩8分です。
建設地は東・南・西(一部)が接道、従前は糀谷幼稚園がありました。
主開口部はボリュームゾーンの南向きと東・西向きの設定もあります。
西向きは引っ込んだ側のため接道していないものの奥庭を設けているため壁ドンではないですし(自己日影は大きい)、東側は中学校、南側はクリニックやアパートなど4階建て程度の建物ばかりですから全体的に日当たり良好、上階になれば視界抜けもしてきます。
接道周りが植栽豊かで街並みとしての雰囲気も良いですし、建物自体も白基調で縦ラインと手摺の横ラインにランダム要素を取り込むことでおしゃれなデザイナーズ物件らしさを感じられそうですね。
エントランスホールへ入っても段々となった天井部のライティングや地層をイメージした壁面などおしゃれな空間ですし、エレベーター前を中庭、さらにその先を奥庭とすることで連続性ある植栽計画など全体的に拘りを感じられる物件ですね。
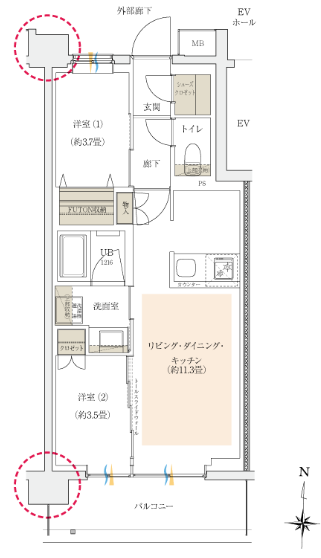
価格と間取りの一部を共有いたします!
B3 3LDK 60.08㎡
2階 7998万円 坪単価440万円
C 2LDK 44.64㎡
D 1LDK 33.58㎡
2階 4298万円 坪単価423万円
E 2LDK+S 65.81㎡
F1 3LDK 61.85㎡
Kr 4LDK 78.21㎡
Mr 3LDK 73.62㎡
Rr 2LDK 54.9㎡
8階 7498万円 坪単価451万円
S 4LDK 74.15㎡
8階 10798万円 坪単価481万円
Tr 3LDK 75.15㎡
8階 10698万円 坪単価470万円
平均坪単価は約455万円です。
拘りある建物とはいえ『ナンジャ?!』となるくらいお高いですね…(お高いのはこちらに限った話ではないものの…)
ただ、居室もリビング側の連窓サッシに加えて共用廊下側の柱も外に出したりとイニシアらしさを感じられて良いですね。
専有面積調整(この単価で売るために部屋を狭くする)されているためシンプルに狭いプランばかりですが…(収納面を工夫したりと努力は感じられますが60㎡台前半の3LDKってファミリー目線だとマジでリビングダイニングが狭いっす…もちろん価値観次第ですが…)
設備仕様としてはディスポーザーがありません。
ただ、手洗い器&ローシルエットトイレ、ミストサウナ、可動式ルーバー面格子、ゼッチ基準、構造は二重床(床スラブ厚200mm)・二重天井など内装の雰囲気含めて心は踊りやすいでしょう。(内装のおしゃれ感はマジでセンスある会社ですよね~!!)
周辺相場を確認しましょう!
■グリーンブリーズ萩中公園パークウイング
2004年築 大鳥居駅徒歩4分
新築時の坪単価約195万円
現在の坪単価約300万円
動き一例
約70㎡
新築時4100万円台
中古時6200万円台
■クレッセント東京リプライム
2004年築 大鳥居駅徒歩3分
新築時の坪単価約160万円
現在の坪単価約260万円
動き一例
約88㎡
新築時4500万円台
中古時6900万円台
■オーベルグランディオ萩中
2006年築 糀谷駅徒歩5分
新築時の坪単価約175万円
現在の坪単価約315万円
動き一例
約67㎡
新築時3400万円台
中古時6200万円台
■ライオンズウイングゲート
2012年築 大鳥居駅徒歩7分
新築時の坪単価約205万円
現在の坪単価約300万円
動き一例
約66㎡
新築時4000万円台
中古時5400万円台
上記相場からイニシア大田糀谷が今時点で築10年だった場合の価値を算出すると
F1 3LDK 61.85㎡ 2階 8098万円 → 6000万円(築10年と想定)
となります。
あくまで今の相場での算出のため参考までにお願いいたします。
駐車場は身障者優先の平置き1台を除き屋外の機械式で設置率約21%です。
駐輪場は屋内で設置率約178%、1LDKもあるため希望すれば2台目も確保しやすいかと思います。
管理費は㎡単価月額約292円、今の時代の新築マンションとしては違和感ないものの下記の通り周辺にはコストパフォーマンス高い物件も多いですからエリア内比較をしてしまうと重たいですね…(近年新築マンションの供給がなかったため尚更)
周辺分譲マンションの維持費を確認しましょう!
■グリーンブリーズ萩中公園パークウイング 総戸数83戸 管理費㎡単価月額約130円
■クレッセント東京リプライム 総戸数104戸 管理費㎡単価月額約226円 ※駐車場代込
■オーベルグランディオ萩中 総戸数534戸 管理費㎡単価月額約176円
■ライオンズウイングゲート 総戸数105戸 管理費㎡単価月額約167円
【住むレーション】
[京急線]
糀谷 8:07発
京急蒲田 8:09着
平和島 8:13着
立会川 8:16着
青物横丁 8:19着
品川 8:22着
泉岳寺 8:26着
三田 8:29着
大門 8:32着
新橋 8:34着
糀谷 7:59発
京急蒲田 8:01着
京急川崎 8:09着
京急鶴見 8:12着
神奈川新町 8:19着
京急東神奈川 8:21着
横浜 8:24着
大鳥居 8:06発
穴守稲荷 8:07着
天空橋 8:09着
[東京モノレール]
天空橋 8:17発
整備場 8:18着
昭和島 8:21着
流通センター 8:23着
大井競馬場前 8:25着
天王洲アイル 8:28着
浜松町 8:34着
首都高の羽田ICがすぐ近くにあるため車での遠出も便利です。
【総評】
駅徒歩10分ではあるものの2駅の間で買い物施設も多く学校が近い、日当たりが良い部屋が多く暮らしやすさとしてのバランスがとても良いですね。
航空業界にお勤めの方はもちろん都心と横浜方面で通勤先が分かれる共働き夫婦の方にも良いですね。(ディンクスさんなら良いですがこれからお子様を検討されている方だと部屋の広さが気になりますが…)
価格に関しては坪単価で考えるとかなりお高いのですが専有面積調整しているため広い部屋が多い周辺中古マンションと比べた際にグロスでは大きな差がありませんから(中古はリフォーム代がかかる可能性もあるため尚更)『マイホームに部屋の広さは求めない』『部屋の広さを諦めてでも新築マンションに住みたい』という方にとってはそこまでお高く映らないことでしょう。
そこに建物デザインやランドスケープ、間取り形状や収納力、そして室内の建具やカラーなどのイニシアらしさが加わるため選びやすさがありますね。
周辺中古マンションと比べて~とかそういった比較をする方ではなくシンプルに『自分たちのカラーに一致したから買う』というような考えができる方にとっては非常に相性が良いことでしょう。
まだ時間はかかりますが蒲蒲線が開業すると今以上に便利になりますから若年層だと尚更とっつきやすいことでしょう。(順調に進んで2038年から2042年頃の開業ですから若年層のほうが現役時代の恩恵が大きい)
関連記事
プラウドシティ大田六郷 価格と間取り 竣工してから売れ行き加速中
オーベルグランディオ萩中 2025年11月時点の相場~エリア内では希少な大規模板状マンション~(外部サイトスムログへ飛びます)















コメントを残す