今回ご紹介するのはアネシア南六郷です!
[物件概要]
売主:トヨタホーム
設計:長谷工コーポレーション一級建築士事務所
施工:長谷工コーポレーション
価格:未定
専有面積:65.89㎡~89.70㎡(専有ガレージの面積を除く)
専有防災備蓄倉庫面積:0.28㎡(全住戸)
総専有面積:66.17㎡~117.81㎡(専有防災備蓄倉庫・専有ガレージを含んだ面積)
総戸数:140戸
規模:14階建て
交通:京急本線「雑色」駅徒歩12分 京急空港線「糀谷」駅徒歩18分
所在地:東京都大田区南六郷一丁目
竣工予定:2027年3月下旬
引き渡し予定:2027年3月下旬
駐車場:70台(専有ガレージ6台・平置62台・屋内ガレージ2台)※他来客用1台・カーシェア駐車場1台・身障者用駐車場1台有り
バイク置場:21台(屋外屋根付き19台・屋内2台)
自転車置場:280台(平置き32台・垂直上段ラック式64台・下段スライド式95台(うち3人乗り42台)・スライド式80台・傾斜ラック式9台)
地図はこちらです↓
京急線の雑色駅を出てからアーケードのある商店街の先にある第一京浜を超えて水門通りをひたすら進んだ多摩川の少し手前に位置しています。
分かりやすい道のりではあるもののシンプルに駅から遠いですし、せっかくこれだけ歩いたのにイニシア大田六郷テラスと同じくリバーサイドでない点は惜しいですね。(これだけ歩くならザ・ガーデンズ大田多摩川のようにリバーサイドというストロングポイントがあると嬉しかった)
ただ、土地形状が整っていることを活かして全戸南向きとできており、その南側は接道挟んで東京都下水道局六郷ポンプ所の背が低い建物となるため低層階でも日当たり抜群、多くの住戸が真正面リバービューとなります。絶対はないものの早々なくなるような施設ではない(耐震補強工事をしたばかりでもあります)ですから将来不安も少ないですね。
ポンプ所があるように用途地域も工業系ではありますが住宅も多いためガヤガヤした住環境ではありませんし、近年浸水被害はない(ポンプ所の増設であったり、そもそもポンプ所が目の前ということも影響あるでしょうか)という安心感もありますね。
とはいえ当然ながらハザードマップでがっつり色がつきますので水害面に敏感な方には合いません。
日常の買い物は雑色駅からの帰宅時に立ち寄りやすいオーケーが徒歩4分、食品館あおば(コーナン)が徒歩12分と徒歩圏内で済ますことができます。そこまでお店は多くないですが駅からの帰り道が商店街になっているのも便利ですね。
本羽田のオリンピックは年末で閉店となります。
年末に閉店する本羽田のオリンピックでちょうど欲しかったカニ用ピーラーとドレッシングマドラーをGET! pic.twitter.com/itXxm9nBvq
— マンションマニア (@mansionmania) November 14, 2025
都心も近いエリアではありますが休日は都内ではなく川崎、横浜へ出てしまう方も多いエリアです。神奈川県内の大きな駅に寄り添いつつも行政サービスが充実した都内に暮らすという選択も満足度高そうですよね。ぎりぎりの東京だからこその価格でもありますから尚更。
通学校は出雲小学校で徒歩8分、南六郷中学校で徒歩10分です。
南六郷公園が徒歩3分、萩中公園も自転車であれば10分弱、そして何より多摩川へサクッと出れる(多目的広場も徒歩8分)のはたまらんですよね~。
物件調査の後は萩中公園の野球場で試合!
2対14で敗戦でした…
対戦チーム様ありがとうございました!!
マンションカウンター野球部
おじさん中心の軟式草野球チーム
☆平日夜 対戦チーム募集中☆
☆助っ人行きます!!☆ https://t.co/5sRIb2BQ4a pic.twitter.com/yKdHH8QIkQ— マンションマニア (@mansionmania) November 14, 2025
平和のつどい(花火大会)やサクライロノキセツも楽しみですね~!!(花火大会は打ち上げ場所が西方向ですが土手に出れば見えます)
建設地は西側以外が接道した三方角地でほぼ正方形の整った土地形状です。従前は駐車場や水素ステーション、テニスコートがありました。(古くは別会社の所有でしたが近年はトヨタが所有、その後グループ企業のトヨタホームが取得して分譲マンションへと生まれ変わります)
敷地面積は5100㎡超、それに対して空地率は…なんと…70%です!!
これはすごいですね(笑)
その空地の多くを平置き駐車場で消費しているため住民専用の大きな中庭的なものはないのですが多摩川が庭になるロケーションですから平置き駐車場にしてくれたほうが嬉しいと感じる方が多いでしょうし、広々した車寄せに面する形で緑豊かな自主管理公園(プロムナード)を設けているため四季を感じられるランドスケープとしてくれています。
平置き駐車場の出入口は重厚感あるゲートデザイン、その先にはシンボルツリーを配した大きな庇が伸びた車寄せを設けているのですがロータリータイプのため同乗者の乗り降りと入出庫が大変便利です。
さらにETC対応のシャッターゲート(リモコン操作も可)を採用するなど優越感と利便性とセキュリティのいずれも叶えてくれる駐車場事情です。
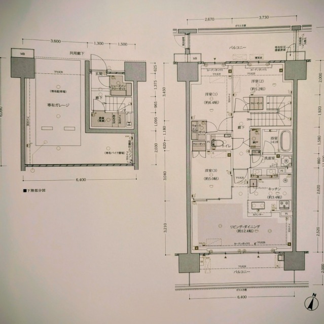
さらにのさらに車好きを唸らせる専用ガレージ付の1階メゾネット住戸が6戸用意されています。玄関ドアも駐車場側に設けられており庇があるため雨に濡れることなくガレージと住戸を行き来できます。
水栓がないため洗車をするのが難しい(規約次第ではできなくはないかもですが排水口の問題もあります)のは惜しいところですがシャッターをつける計画(専有面積が変わる可能性があるため社内協議中とのこと)があるとのことです。
奥にバイクを置くスペースはありますし、マンションの利便性と戸建て感覚のカーライフが叶うわけで十分魅力ありますね。
専有面積に含まれるためリセール時も継承できます。(専有のためガレージの使用料はかからない予定ですが管理費や修繕積立金、固定資産税などは㎡に合わせて膨らみます)
さらにのさらにのさらに!!
宅配業者さんの動線を別としているのです!!
これは素晴らしいですね…
どんなに素晴らしい車寄せがあっても宅配業者さんの車で埋め尽くされることが多いマンションにおいて宅配業者さん向けの駐車&荷捌きスペースを玄関口から見えないところに設けているのは誰にとってもwin-winと言えるでしょう。(宅配業者さんからしてもありがたいと思います)
さすがに宅配業者さんが利用するエレベーターは住民と同じになってしまうのですが宅配業者さん専用のエントランスがあるためできる限り目に見えない範囲で作業していただけます。(共用部が傷つきにくいというメリットもあるでしょう)
エントランスホールは二層吹き抜けで折り重なったシャンデリアなど上品な空間となっており大窓から外の植栽を望めるため自然と緑景を楽しむことができます。
共用施設は2階にゲストルームとコワーキングラウンジが設けられます。敷地面積の割には少ないですが総戸数としては140戸ですから違和感ないでしょう。
外観に関してはバルコニー側も背中側も色味の異なるガラス手摺で横ラインを強調、マリオンとエレベーター部分の出っ張りで縦ラインを強調してそれぞれをクロスさせることで単調な形状ながらも高級感ある建物となるようデザインしてくれています。最上階の軒裏を木目調としているのもアクセントとなっており良い印象を受けそうですね。
エレベーターホールも住戸食い込み型ではなくしっかりと独立していますし全体的にコストをかけてくれています。
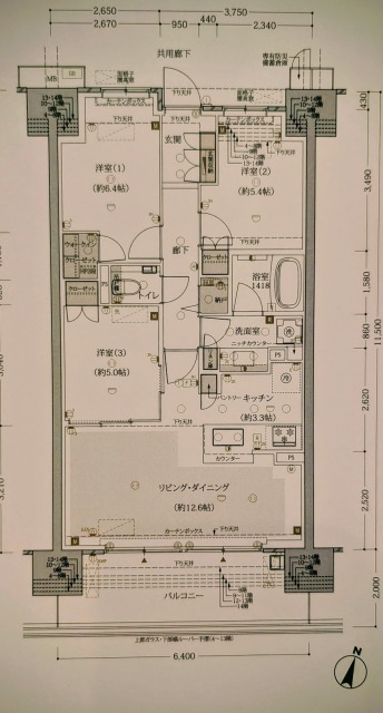
予定価格と間取りの一部を共有いたします!
C1 3LDK 67.82㎡
8階 8300万円台 坪単価404万円
12階 8400万円台 坪単価409万円
14階 8500万円台 坪単価414万円
D1 3LDK 71.98㎡
8階 8800万円台 坪単価404万円
12階 8900万円台 坪単価408万円
14階 9100万円台 坪単価417万円
H 3LDK 78.2㎡
8階 9900万円台 坪単価418万円
12階 10000万円台 坪単価422万円
14階 10200万円台 坪単価431万円
F1 3LDK 111.09㎡(専有ガレージ含む)
平均坪単価は400万円強になりそうでしょうか。
メゾネットタイプでも居室としては100㎡は大きく下回るなど広さのスペシャル感はありませんが極端な専有面積調整はなされておらず駅距離なりにゆとりを感じることができます。
メゾネットタイプは階数からしてリバービューとはならないものの両面バルコニーになっているのは良いですね。
形状は田の字が主ですが連窓サッシを採用しているため南向きの日当たりの良さを活かしやすいでしょう。(リビングで座って眺望を楽しみたいならバルコニー透明ガラス、プライバシー性優先なら乳白色ガラスというようにどちらも選べます)
設備仕様としてはディスポーザー、食洗機、キッチンタッチレス水栓、キッチン・洗面天板御影石、浴室ダウンライト、手洗いカウンター&ローシルエットトイレ、住戸玄関部含めてラクセスキー、バルコニースロップシンク&防水コンセント、可動式ルーバー面格子、ゼッチ基準、各戸引き込みの1Gbpsのネット環境など単価帯以上に充実したものになっています。
基本天井高は2500mm、構造は二重床・二重天井です。
周辺相場を確認しましょう!
■イニシア大田六郷テラス
2012年築 雑色駅徒歩10分
新築時の坪単価約200万円
現在の坪単価約285万円
動き一例
約64㎡
新築時3800万円台
中古時5400万円台
■プラウドシティ大田六郷
2017年築 雑色駅徒歩12分
新築時の坪単価約250万円
現在の坪単価約355万円
動き一例
約64㎡
新築時4700万円台
中古時6800万円台
約71㎡
新築時5900万円台
中古時8100万円台
■グランイーグル多摩川エイト
2019年築 雑色駅徒歩15分
新築時の坪単価約230万円
現在の坪単価約240万円
上記相場からアネシア南六郷が今時点で築10年だった場合の価値を算出すると
D1 3LDK 71.98㎡ 8階 8800万円台 → 7800万円(築10年と想定)
となります。
あくまで今の相場での算出のため参考までにお願いいたします。
駐車場の設置率は50%、駐輪場は快適な屋内で1世帯2台は確保できます。
駐車場の抽選方式がかなり愛あるものとなっています。優先順位がかなり細かく設定されているため敷地内駐車場マストの方も選べる部屋がかなり多くなっています。
全長5000mmまでの区画ばかりなのはロングセダンがお好きな方にとっては惜しいところですね。(私が乗っている現行型クラウンセダンもサイズオーバーです)
三方角地とゆとりある空地を活かして歩車分離されているのも良いですね。
管理費は㎡単価月額230円弱を予定、平置き駐車場となればもう少しお安いと嬉しかったものの今の時代の新築マンションとしては抑えられているほうでしょう。当然ながらエレベーターは2基あります。
周辺分譲マンションの維持費を確認しましょう!
■イニシア大田六郷テラス 総戸数89戸 管理費㎡単価月額約159円
■プラウドシティ大田六郷 総戸数632戸 管理費㎡単価月額約167円
■グランイーグル多摩川エイト 総戸数31戸 管理費㎡単価月額約180円
【住むレーション】
[京急線(浅草線直通)]
雑色 8:10発
京急蒲田 8:12着 乗換 8:16発
平和島 8:18着
青物横丁 8:22着
品川 8:26着
泉岳寺 8:30着
三田 8:34着
大門 8:37着
新橋 8:39着
雑色 8:01発
六郷土手 8:03着
京急川崎 8:05着 乗換 8:07発
神奈川新町 8:15着
横浜 8:19着
糀谷 8:04発
大鳥居 8:06着
穴守稲荷 8:07着
天空橋 8:09着
羽田空港第3ターミナル 8:11着
羽田空港第1・第2ターミナル 8:14着
[天空橋駅から東京モノレール]
天空橋 8:17発
整備場 8:18着
昭和島 8:21着
流通センター 8:23着
大井競馬場前 8:25着
天王洲アイル 8:28着
浜松町 8:34着
京急線あるあるで普通電車がノロノロすぎる(速達電車の退避が多い)ため途中駅で速達電車へ乗り換えることが基本となります。(もちろん時間があれば空いている普通に乗ったままでも良いのですがけっこうな差になります)
だいぶ時間はかかりますが蒲蒲線の恩恵を受けやすいエリアである点は楽しみが大きいですね!
羽田空港までタクシーで移動しても3000円ほどですし、首都高の羽田ICと大師ICが近いためカーアクセスも良く遠出がお好きな方にとっても相性が良いでしょう。
【総評】
駅からは少し離れますが日常の買い物利便性は徒歩で済ませられ、何より多摩川近接という住環境は魅力が大きいですね。
全戸南向きで日当たり抜群、多摩川ビューの住戸が多く設定されそれが将来的にも守れやすい、そこにトヨタホームらしい商品力のスケールメリットがあるマンションとなれば『駅から離れた価値がある』ことは確かでしょう。
ただ、一概には言えないもののご地元の方がここまでのスペックを求めるかというと少数派だと思いますし、ご地元の方からすると駅距離の割に重たい価格という印象になってしまいがちでしょう。
価格勝負するのではなく商品力で勝負をしているため『六郷エリアに地縁がなく、いろいろな街を検討している中広域検討者』にとってのほうがウケが良さそうではありますね。
今作の商品力に魅力を感じる方にとってはとても面白い出物と言えるでしょう。
この商品力でオール南向き、そういった好条件の中で平均坪単価約400万円となれば駅距離分はしっかりと差し引いた価格設定と言えるでしょう。(条件悪い部屋がある新築マンションの平均値と比べるのではなく条件良い部屋同士の坪単価で比較するべき)
関連記事
プラウドシティ大田六郷 価格と間取り 竣工してから売れ行き加速中
記事が参考になったら資料請求は下記からお願いします!
資料請求はこちらから-
気になったらすぐに資料請求するのがおすすめ!ライバルは多いものです!

Powerd by LIFULL HOME’S














コメントを残す