シエリアタワー南麻布、前回の記事化から一年ほど経過したため現在の状況を共有いたします!
SNS等でもそこまで話題にならず、かつ公式発信の情報も少ないため再度建設地とモデルルームへ訪問してきました。
まず建設状況ですが順調に立ち上がってきており『南麻布初のタワーレジデンス』だけあり総戸数の割には目立つ存在となっています。
囲いが取れると足元のゆとりも目に見えるようになるためより良い印象となることでしょう。
白金ザスカイのようなどでかいマンションがお好きな方には物足りないでしょうけどもこの規模感も暮らしやすさとしては魅力が大きいことでしょう。
モデルルーム近くにあるザ・パークハウス白金二丁目タワーは規模感としても似たイメージですね。
ザ・パークハウス白金二丁目タワー
2018年築 白金台駅徒歩5分
新築時の坪単価約650万円
現在の坪単価約1520万円動き一例
約88㎡
新築時17100万円台
中古時39800万円台約100㎡
新築時19200万円台
中古時48000万円台 pic.twitter.com/7lKdc2Py3r— マンションマニア (@mansionmania) December 12, 2025
竣工予定は2026年7月下旬、引渡予定は2027年4月下旬と新築タワマンの割には待ち時間が短いのもとくに一次取得者層には魅力が大きいことでしょう。(パークコート麻布十番東京ザタワーはサウス棟が2029年10月下旬、ノース棟が2030年6月下旬の入居予定とだいぶ先)
竣工が近いため建築系オプションは締め切っていますがディスポーザー、リビング&主寝室天カセ、全熱交換などお金で変えにくい部分含めてスペックは高いですからそこまで大きな問題にはならないでしょう。関電物件なのでオール電化ですが床暖房も設置されています。(関電物件だと床暖房が設置されないケースも多い)
内廊下はもちろんのこと各階宅配ボックス、各階ごみ置場なども備わっている中で管理費が㎡単価月額約540円というのも物件価格と規模感からすれば抑えられているほうでしょう。
地下駐車場でないことと設置率が40%ほどであることは惜しいのですが駐車場スペックも高めです。
全長5300mm×全幅2050mm×全高2000mm×重量2800kg
室内からスマホで出庫予約をすることもできます。
49台シェアのためバッティングする可能性もそこまで高くなく待ち時間ネックも少ないでしょう。
現在は先着順と期分け販売が混在しています。
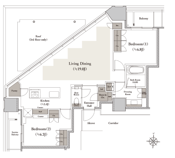
価格と間取りの一部を共有いたします!
A 2LDK 85.21㎡
C 3LDK 73.88㎡
全体の平均坪単価は今のところ約1510万円です。
上層階ではないもののAタイプであればバルコニーから東京タワーがちらっと見えてきそうですし、Cタイプも視界抜けするなどエリア内で背が高いがゆえに階数以上に条件良い中で坪単価1300万円台は現実的な設定という印象を受けます。
周辺相場を確認しましょう!
■白金ザ・スカイ
2022年築 白金高輪駅徒歩3分
新築時の坪単価約680万円
現在の坪単価約1360万円
動き一例
約41㎡
新築時7600万円台
中古時15300万円台
約75㎡
新築時15100万円台
中古時35800万円台
駅距離や規模感などキャラクターが異なりはするものの『周辺中古と大きく変わらない価格で購入できる新築』というのはとっつきやすいですね。
これが一年前ですと白金ザ・スカイが坪単価1100万円前後で購入できたためシエリアタワー南麻布の価格が高く感じましたが今となっては同じくらいになってしまいましたからね…
しかも白金ザ・スカイの成約ではなく出物と比べるとむしろシエリアタワー南麻布のほうがお安いという…
これだけ納得感ある価格でありながらも売れ行きが良いとは言えない(売れ残りではないですがもっと売れていてもおかしくない)のはいかに話題性が大事かということと大規模が正義になっているのだなぁ~と。
もちろん話題性ある物件のほうが買いやすいですし、大規模のほうがリセールに優れていることはデータでも出てしまっているわけですが中古であろうとお高い港区、シエリアタワー南麻布のように現実路線の価格(安いという意味ではなく相場並みという意味)で購入できる新築を狙うのも私はありだと思います。
もちろんそもそも論としてシエリアタワー南麻布は駅距離ネックがある(最寄り駅の白金高輪で徒歩9分)わけで駅近主義の方には合わないわけですがこの価格帯になればそこじゃないという方も多いですからね。
だからこそもう少し駐車場面で拘りを見せてほしかったのですが…(パレットスペックは良いのですが設置率を高くするとか地下駐車場にしてプライバシー性を高めるとか)
話題性がある新築マンションは買えないくらいの倍率(非売品化)になってしまっている中で先着順でシエリアタワー南麻布のような新築マンションが購入できるとなればそういった買いやすさ含めてバランスが整っているという印象です。
リセール面では大規模が正義(同時期に買えたメガマンションとそうでないマンションを比べるとほとんどのエリアでメガマンションのほうがリセールバリューが高い)なのは分かりますが、タワマンにしてはちっこくてもカッコいい建物ですから所有欲は満たされるでしょうし『自分にとってはむしろこっちで大正解』となりやすいでしょう。(リセール時だけはがゆい唇になるだけです)
関連記事
シエリアタワー南麻布 建設地・モデルルーム見学後のファーストインプレッション
記事が参考になったら資料請求は下記からお願いします!
資料請求はこちらから-
気になったらすぐに資料請求するのがおすすめ!ライバルは多いものです!

Powerd by LIFULL HOME’S











コメントを残す