今回ご紹介するのはアトラス北赤羽です!
[物件概要]第1期1次販売戸数20戸
売主:旭化成不動産レジデンス
設計:長谷工コーポレーション
施工:長谷工コーポレーション
価格:5598万円~9598万円
専有面積:57.39㎡~84.71㎡
総戸数:70戸
規模:8階建て
交通:JR埼京線「北赤羽」駅徒歩9分
所在地:東京都北区浮間3丁目
竣工予定:2026年2月下旬
引き渡し予定:2026年4月下旬
駐車場:21台 機械式18台、平置3台(※内1台車椅子使用者用)月額20000円~25000円
自転車置場:2段ラック下部スライド式140台(上部61台、下部79台)平置き9台(子供用)平置き(シェアサイクル用)2台 月額200円~500円
バイク置場:4台 月額4000円
地図はこちらです↓
JR埼京線の北赤羽駅浮間口から徒歩9分、新河岸川沿いに位置しています。用途地域が準工業であるように工業感も若干ありますが近年は住宅、とくに分譲マンションが増えているエリアですね。
北赤羽駅は赤羽口に住むか浮間口に住むかで生活圏が変わるエリアですが南面をリバービューとすることができるのは浮間口側のストロングポイントの一つでもありますね。
今作は主開口部を南東と南西に設定、南東は正面が新河岸川、南西は斜め方向に新河岸川となるためリバービュー住戸が多くなっています。
もちろんハザードマップではがっつり色がつきますので水害面を気にされる方は検討するのが難しいエリアです。そういった方は近場であれば東京メガシティや行政区変わりますがスカイティアラなど高台物件を狙ったほうが良いですね。
余談ですが私が通っていた赤羽自動車学校は浮間口の近くにありました。(温泉施設頓挫からの現在はクリオレジダンス北赤羽)
日常の買い物は浮間中央通り沿いのオーケー(島忠ホームズ併設)が徒歩4分、北赤羽駅改札出てすぐのライフが徒歩11分、環八通り沿いのセブンタウン小豆沢(ヨークフーズwithザ・ガーデン自由が丘等)が徒歩13分、もう少し距離はありますが中山道超えた先のメガドンキや新河岸橋近くのオリンピック、舟渡のベルクスなども自転車であればすぐですね。
通学校は浮間小学校で徒歩6分、浮間中学校で徒歩17分です。浄水場の新河岸東公園(こどもスポーツ広場)、浮間舟渡駅前の浮間公園など大きめの公園も行き来しやすい距離感です。新河岸川、荒川と2つの川を楽しめるロケーションとなっています。
浮間公園野球場はマンションカウンター野球部でも利用することがあります。
マンションカウンター野球部 おじさん中心の軟式草野球チーム ☆平日夜 対戦チーム募集中☆ ☆助っ人行きます!!☆
浮間公園野球場での紅白戦を終えてからの遅めのディナーはすき家池袋サンシャイン前店で『ニンニク白髪ネギ+冷やっこセット』!
1回2回無失点、3回2失点、4回ストライクが入らず四球を出したところでコダテ丸へ交代、最終的には3対7で敗戦…
ニンニクが体に染みるぅぅ pic.twitter.com/55DHUb37dF
— マンションマニア (@mansionmania) January 31, 2025
建設地は南側が接道挟んで新河岸川、西側も接道しています。従前は大きな戸建(お屋敷)とコインパーキングがありました。
新河岸川沿いは遊歩道というわけではなく壁があるだけですから1階だとリバービューという雰囲気は味わえないですね。
ただ、その壁を超えれば真正面がリバービューとなってきます。川の先は徐々にグラウンドレベルが高くなるため都心部まで視界抜けするというわけではないものの小豆沢の緑豊かな木々を望める気持ちが良い眺望となります。
南西側は接道向かいに3階建て程度の建物がありますがそちらを超えると現状では川を望むことができますし、どちらの向きも採光良好です。
エントランスアプローチは駐車場出入口をゲートデザインとし、その横の歩行者動線も植栽豊かにするなどとても雰囲気が良いですね。
さらに新河岸川沿いにもエントランスホールを設けているため川沿いを経由して駅へと行き来する際も便利ですね。新河岸川沿いは夜になると暗い雰囲気にはなるものの都営住宅の建て替えが進んでおり歩道も広くなるなど以前より歩きやすい道となっています。
メインのエントランスアプローチの先にあるホールは窓面が豊かで駐車場との間の植栽を、新河岸川沿いのアプローチの先の共用廊下には庭を設けるなどどちらも自然と緑を感じられる動線になっているのもスペシャルですね。
外観デザインも黒白の水平ラインを強調しており軒裏も布地のような味のある風合いとするなどカッコいいですね!バルコニー隣戸境もしっかりとスラブtoスラブです。
価格と間取りの一部を共有いたします!
※初回物件調査2025年1月時点の情報を含む
Aタイプ 3LDK 67.58㎡
5階 7498万円 坪単価366万円
B 3LDK 66.54㎡
C 2LDK 57.39㎡
D 3LDK 68.93㎡
7階 7298万円 坪単価350万円
F 3LDK 73.59㎡
Gタイプ 3LDK 67.88㎡
I 3LDK 69.54㎡
J1タイプ 3LDK 69.54㎡
1階 6588万円 坪単価313万円
Qr 4LDK 84.71㎡
平均坪単価は約350万円です。
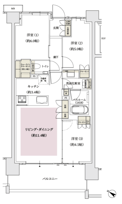
間取りは田の字が主、広さもごくごく一般的でこれといった特徴はないのですがオープンキッチン(フレタスキッチン)、リビング横洋室ウォールドアがハイタイプで格納可能とするなど今どき感はあります。
設備仕様としてはディスポーザーはありませんが食洗機、手洗いカウンター&ローシルエットトイレ、ゼッチ基準(一部住戸は洋室にも床暖房)、構造は二重床・二重天井など悪くはありません。
周辺相場を確認しましょう!
■ザ・クレストリヴァシス
2008年築 北赤羽駅徒歩8分
新築時の坪単価約185万円
現在の坪単価約280万円
動き一例
約70㎡
新築時3900万円台
中古時5800万円台
■クレストガーデンレジデンス
2012年築 北赤羽駅徒歩10分
新築時の坪単価約170万円
現在の坪単価約270万円
動き一例
約70㎡
新築時3600万円台
中古時5800万円台
■ザ・パークハウス北赤羽
2016年築 北赤羽駅徒歩5分
新築時の坪単価約205万円
現在の坪単価約300万円
動き一例
約72㎡
新築時4100万円台
中古時6100万円台
■ヴェレーナシティパレ・ド・プラージュ
2016年築 北赤羽駅徒歩11分
新築時の坪単価約195万円
現在の坪単価約295万円
■ヴェレーナグラン赤羽北フロント
2022年築 北赤羽駅徒歩3分
新築時の坪単価約285万円
現在の坪単価約370万円
動き一例
約68㎡
新築時5500万円台
中古時7200万円台
■ジオ板橋浮間舟渡
2026年1月竣工予定 浮間舟渡駅徒歩5分
新築時の坪単価約365万円
新築販売中
上記相場からアトラス北赤羽が今時点で築10年だった場合の価値を算出すると
D 3LDK 68.93㎡ 7階 7298万円 → 6200万円(築10年と想定)
となります。
あくまで今の相場での算出のため参考までにお願いいたします。
駐車場は屋外の機械式18台、平置3台で設置率30%です。
駐輪場も屋外でこちらは1世帯2台分がしっかりと確保されています。
管理費は㎡単価月額約255円、ディスポーザーなしにしてはお高く映りますが今の時代の総戸数70戸ですから致し方ないでしょう。エレベーターは1基です。
周辺分譲マンションの維持費を確認しましょう!
■ザ・クレストリヴァシス 総戸数310戸 管理費㎡単価月額約250円 ※駐車場代込
■クレストガーデンレジデンス 総戸数241戸 管理費㎡単価月額約235円
■ザ・パークハウス北赤羽 総戸数169戸 管理費㎡単価月額約172円
■ヴェレーナシティパレ・ド・プラージュ 総戸数175戸 管理費㎡単価月額約168円
■ヴェレーナグラン赤羽北フロント 総戸数89戸 管理費㎡単価月額約158円
■ジオ板橋浮間舟渡 総戸数598戸 管理費㎡単価月額約278円
【住むレーション】
[埼京線]
北赤羽 8:01発
赤羽 8:04着
十条 8:07着
板橋 8:10着
池袋 8:14着
新宿 8:20着
渋谷 8:26着
恵比寿 8:29着
大崎 8:33着
北赤羽 8:03発
浮間舟渡 8:04着
戸田公園 8:07着
戸田 8:09着
北戸田 8:11着
武蔵浦和 8:15着
中浦和 8:18着
南与野 8:20着
与野本町 8:22着
北与野 8:24着
大宮 8:28着
首都高5号線の中台ICまでは3キロ弱、10分ほどあれば高速inできます。(中山道を進み板橋本町まで進んでも時間はあまり変わりません)
池袋もあっという間です。(池袋を庭にしやすいのが北赤・浮間の良いところ)
【総評】
駅からは少し離れますがリバーフロントという分かりやすい魅力がありますし、買い物便も良いなど『駅近も選べるエリアだけども駅徒歩約10分を選ぶ価値がある』ことは確かでしょう。
北赤羽駅に近い物件は線路や大通りに近く音ネックを抱えることが多いためそういった面でも差別化が図れています。
商品力としても総戸数70戸とはいえしっかりとアトラスらしさがある素晴らしい動線とデザインですから『周辺中古より高い価格であっても欲しくさせてくれる新築マンション』と言えるでしょう。
価格に関してもおとなしいですね。
表記上の駅距離だけでいけばジオ板橋浮間舟渡のほうが近いですが棟によっては中へ入ってから歩く時間も長いですし、やはり隣地のクセが強いことなどから行政区縛りがなければアトラス北赤羽のほうが魅力に映る方も多いのかな?という印象を受けました。
総戸数が大きく異なるため当然ではあるのですがアトラス北赤羽のほうが早くに完売することは確かであり、ジオ板橋浮間舟渡からすれば早く完売してほしい存在であることも確かでしょう。(販売代理は同じ会社ですが売主は異なる)
とはいえジオ板橋浮間舟渡も竣工すれば迫力がある建物ですから『竣工してから評価が高まる』ことは言わずもがなであり、比較検討は必ずされたほうが良いでしょう。
関連記事
ジオ板橋浮間舟渡 価格と間取り リバービューorパークビュー×2200mmのハイサッシ
ヴェレーナグラン北赤羽マスタープレイス&マナープレイス 価格と間取り モデルルーム訪問


















コメントを残す