今回ご紹介するのはルネ柏ディアパークです!
[物件概要]先着順
売主:総合地所 京成電鉄 FJネクスト
設計:長谷工コーポレーションエンジニアリング事業部
施工:長谷工コーポレーション
価格:4338万円~7798万円
専有面積:62.82㎡~84.94㎡
総戸数:389戸
規模:14階建て
交通:JR常磐線「柏」駅徒歩15分 JR常磐線「柏」駅バス約9分、「向原住宅」バス停徒歩1分
所在地:千葉県柏市豊四季台1丁目
竣工予定:2026年8月中旬
引き渡し予定:2026年9月下旬
駐車場:261台〔機械式43台、平置214台、来客用1台、身障者用駐車場1台、カーシェア2台〕(月額900円~14900円)
駐輪場:783台(レンタサイクル4台含む)〔平置き5台、ラック式86台、二段式692台〕(年額1200円~6000円)
バイク置場:17台(月額3000円)
管理費:12700円~17200円/月
修繕積立金:6100円~8240円/月
インターネット利用料:583円/月
給湯器リース料:2772円/月
コミュニティ費:300円/月
地図はこちらです↓
常磐線と東武アーバンパークラインの柏駅から徒歩15分、水戸街道を超えた先の豊四季台エリアでアドレスも豊四季台となります。(旭町アドレスの物件もあり)
駅遠立地ではありますが目の前の向原住宅停留所から路線バスを利用することができます。運行本数は充実(平日7時台は20本強)していますし、柏駅から乗車する際は駅下の停留所まで屋根ありのため帰りも楽ですね。
ライバル物件であるシティテラス柏も駅徒歩15分、そちらもすぐ近くに停留所があるものの向原住宅停留所ほどの運行本数はないためバス利用前提であれば今作を選んだほうが良いでしょう。空港連絡バスも利用可能です。
豊四季台団地の入居が開始されたのは1964年ですから高齢者も多い街ではありますが団地の建て替えも進んでいます。(今作も建て替え事業)
近年では若年層子育てファミリーも多く流入しており街並みも今どき感があり年々とっつきやすさが増している印象を受けます。(プラウドシティ柏が供給された20年くらい前から頻繁に訪れていますが当時は今よりだいぶ暗い印象がありました)
日常の買い物はピーコックストアが徒歩6分、マミーマートが徒歩9分、ベルクが徒歩14分と駅遠立地の割には少々距離はありますが選択肢は充実しています。いずれも比較的新しい建物で気持ちよく買い物できることでしょう。
もちろん柏駅へ出てしまえば柏高島屋ステーションモールもありますし、水戸街道沿いのイオンモール柏は自転車で10分弱という距離感です。
徒歩ではなく自転車や車で移動することが多い方のほうが楽しめるロケーションです。
通学校は柏第七小学校と柏第三中学校で徒歩10分です。目の前には公園デビューには贅沢な豊四季台公園があります。
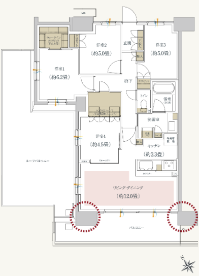
建設地は東から西にかけて接道(東側は今作建設地の細い道)、従前が団地だったこともあり整った土地形状です。
建物は5棟構成で主開口部は西・南・東、背中の北側を駐車場としています。
眺望としては車道に面していない東側でさえもしっかりと緑化していますし、住民専用の中庭的なものはないもののエントランスアプローチ周り(公開空地)の植栽も豊かですから低層階でも苦しさがありません。ハザードマップで色がつかないため低層階も選びやすいですね。
また、エリア内でも背が高い建物のため上層階になるとカーテンいらずの開放感ある眺望となります。東向きは手賀沼の花火大会を望める部屋も多そうです。
外観デザインに関しては飾り壁やアルミマリオンで単調な平らなものにはなっていないですし一部妻側をダイレクトウィンドウとすることで重厚感も演出、隔て板も一部を除いてスラブtoスラブにするなどセットバックによる豊かな植栽計画も相まって総戸数389戸のエリア最大規模らしさを感じられます。
エントランスホールは2層吹き抜けで光と風をモチーフとした天井の装飾など上品な空間、サブエントランス側も車寄せを設けるなど単価帯からするとかなりのかなり頑張ってくれている印象を受けます。
共用施設もマルチラウンジ、サウナルーム、スタディラウンジ、キッチン完備のパーティールーム、スニーカーを洗うこともできるランドリールーム、ゲストルームなど大規模マンションらしく充実しています。
価格と間取りの一部を共有いたします!
A1 4LDK 81.31㎡
B1 4LDK 84.61㎡
B2r 4LDK 84.94㎡
B6 3LDK 72.54㎡
C5 2LDK 71.23㎡
C6 4LDK 80.17㎡
D2 3LDK 62.43㎡
12階 4568万円 坪単価241万円
D6 3LDK 71.94㎡
E2 3LDK 62.82㎡
E4r 4LDK 82.12㎡
平均坪単価は約245万円です。
間取り形状は田の字が主ですがウゴクロ(可動型収納)を採用するプランもあるなど全体的に収納面が充実しています。一部住戸を除けば今の時代にしては広さもありますね。(プラウドシティ柏など近隣の非築浅分譲マンションにお住いの方だと狭く感じるとは思いますが今作は一次取得者層がメインターゲットのため平均専有面積が約70㎡であることに違和感はない)
ただ、日当たりと眺望が優れた住戸ばかりでありながらも連窓サッシでないプランが多いのは惜しいですね。
設備仕様としてはディスポーザー、食洗機、ウルトラファインバブル給湯器、ゼッチ基準を満たしているなど単価帯からすれば悪くありません。構造は直床・二重天井です。
周辺相場を確認しましょう!
■プラウドシティ柏
2005年築 柏駅徒歩8分
新築時の坪単価約160万円
現在の坪単価約190万円
動き一例
約85㎡
新築時4400万円台
中古時4900万円台
■デュオヒルズ柏
2019年築 柏駅徒歩13分
新築時の坪単価約170万円
現在の坪単価約200万円
■シティテラス柏
2023年築 柏駅徒歩15分
新築時の坪単価約215万円 ※現在は坪単価約260万円まで値上げ
新築販売中
上記相場からルネ柏ディアパークが今時点で築10年だった場合の価値を算出すると
B6 3LDK 72.54㎡ 4階 5448万円 → 4300万円(築10年と想定)
となります。
あくまで今の相場での算出のため参考までにお願いいたします。
駐車場は屋外の機械式43台、平置214台、設置率約67%です。
駐輪場も屋外で1世帯2台は確保できます。
管理費は㎡単価月額約202円、第三者管理、ディスポーザーありでこの水準であれば今の時代としては悪くないでしょう。給湯器がリースなのは地味に重たいですが…
周辺分譲マンションの維持費を確認しましょう!
■プラウドシティ柏 総戸数148戸 管理費㎡単価月額約131円
■デュオヒルズ柏 総戸数154戸 管理費㎡単価月額約125円
■シティテラス柏 総戸数174戸 管理費㎡単価月額約222円
【住むレーション】
[路線バス]
向原住宅 7:02発
明原三丁目 7:03着
柏中学校前 7:03着
柏駅西口 7:10着
[常磐快速線]
柏 7:18発
松戸 7:27着
北千住 7:36着
南千住 7:39着
三河島 7:43着
日暮里 7:45着
上野 7:50着
東京 7:56着
新橋 8:00着
品川 8:07着
[常磐緩行線(千代田線直通)]
柏 7:16発(始発)
南柏 7:19着
北小金 7:22着
新松戸 7:24着
馬橋 7:26着
北松戸 7:28着
松戸 7:31着
金町 7:35着
亀有 7:38着
綾瀬 7:41着
北千住 7:44着
町屋 7:48着
西日暮里 7:51着
千駄木 7:54着
根津 7:56着
湯島 7:58着
新御茶ノ水 8:00着
大手町 8:03着
二重橋前 8:05着
日比谷 8:07着
霞ヶ関 8:09着
国会議事堂前 8:11着
赤坂 8:13着
乃木坂 8:15着
表参道 8:18着
明治神宮前 8:19着
[東武アーバンパークライン]
柏 7:15発(始発)
豊四季 7:18着
流山おおたかの森 7:21着
初石 7:23着
江戸川台 7:26着
運河 7:29着
梅郷 7:32着
野田市 7:36着
愛宕 7:38着
清水公園 7:41着
七光台 7:45着
川間 7:49着
南桜井 7:53着
藤の牛島 7:57着
春日部 8:02着
八木崎 8:06着
豊春 8:08着
東岩槻 8:11着
岩槻 8:14着
七里 8:17着
大和田 8:20着
大宮公園 8:23着
北大宮 8:25着
大宮 8:28着
柏 7:30発(始発)
高柳 7:36着
新鎌ヶ谷 7:41着
船橋 7:53着
[空港連絡バス]
柏駅西口 4:45発
向原住宅 4:48発
三間 4:49発
柏の葉キャンパス駅西口 5:02発
流山おおたかの森駅西口 5:20発
羽田空港第2ターミナル 6:17着
羽田空港第1ターミナル 6:22着
羽田空港第3ターミナル 6:29着
常磐自動車道の柏ICは約6キロ、流山ICは約7キロと少々距離があり高速道路アクセス優先なら柏の葉キャンパスに住んだほうがより便利ではあります。
ただ、水戸街道北側のため柏駅物件としては高速道路アクセスも容易です。
水戸街道と16号線が近いためロードサイド店巡りを楽しめるのはこのエリアの大きな魅力の一つとなります。
また、豊四季台エリアは流山おおたかの森も身近なため休日の楽しみが大きなものとなるでしょう。
お久しぶりでございます!!
遅めのランチはラーメン横綱柏店でラーメン大と黒豚餃子! pic.twitter.com/z3nEOrerQK
— マンションマニア (@mansionmania) July 11, 2025
【総評】
駅からは離れますがバス利用がとても便利ですし、街並みが綺麗に整っており買い物施設もある豊四季台エリア、そこにエリア最大規模の建物、そしてお求めやすい価格となれば『駅から離れただけの価値がある』と言えるでしょう。
もちろん価格がお安いのは駅から離れているからこそではありますがそれを呑める方にとっては十分すぎるくらいカバーできる材料があり、TMD(坪単価満足度)の高さに期待ができることでしょう。
デベロッパーとしても価格勝負しつつも商品力も頑張らなければならないロケーションと総戸数ですから買い手にとっては好材料ばかりなのですよね。
好みの問題をさておけば流山おおたかの森の駅と柏の葉キャンパス駅近くで築浅分譲マンションを選んだほうが住環境も得つつより高い利便性、そしてリセール時の安心感を得られるわけですがそれらは坪単価300万円超ですから70㎡換算で1000万円以上の差があります。
この価格帯の1000万円強は誤差とはなりにくいですし、それだけ差がありつつもこちらは新築マンションですから気持ちよさも相まって選びやすいことでしょう。
リセールバリューよりも毎月の支払額に対する満足度を優先される方に合っています。
近郊・郊外の新築マンションは売れる物件と売れない物件の二極化が凄まじい時代です。実際に大幅に値下げして販売している物件もあります。
今作に関しては竣工前完売はさすがに難しいかとは思いますが比較的売れ行きの良さにも期待ができるため青田買いした方が後の大幅値下げ販売で涙を流す心配も少ないでしょう。(少しは勉強するかもですが今のところ勉強不要な売れ行き)
この単価帯でこれだけカッコいい新築マンションを手にできるなら今の時代にしては総合点が高い物件という印象を受けました。
『マンション価格が高すぎて買えない…』という方、ありますよ。最多価格帯5000万円台の良いマンションが。柏に。
広域でマンションウォッチしているせいか『価格が高くて買えない』『バブルだ』というのはどうもしっくりこない
いまだに3000万円台〜5000万円台でもスペシャルなマンションは購入できるわけで
もちろん都心勤務でも通勤できるエリアで古すぎない築年数の物件
買えないなら視野を広げれば良いだけ
— マンションマニア (@mansionmania) July 8, 2025
関連記事
ルピアグランデ柏 価格と間取り モデルルーム訪問 おすすめです!!
デュオヒルズ柏 (仮称)柏市豊四季台計画 豊四季台団地建替えエリアにてフージャースがマンション建設へ
パークタワー柏の葉キャンパス 価格は?! 公式HPオープン!!


















コメントを残す