2026年5月上旬の竣工に向けて建設が進むリビオタワー品川、販売も後半戦となっています。(これから購入される方の引き渡し予定は2027年4月上旬)
次期販売となる第3期1次は2月後半から案内会、4月から登録受付開始となる予定です。
予定価格と間取りの一部を共有いたします!
※100万円単位
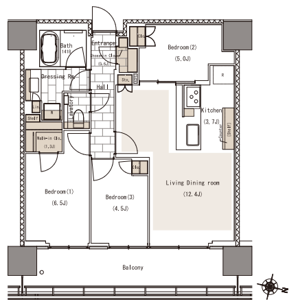
40Dw 1LDK 42.10㎡
4階 9700万円台 坪単価761万円
5階 9700万円台 坪単価761万円
6階 9800万円台 坪単価769万円
7階 9800万円台 坪単価769万円
8階 9900万円台 坪単価777万円
9階 9900万円台 坪単価777万円
10階 10000万円台 坪単価785万円
11階 10100万円台 坪単価793万円
12階 10200万円台 坪単価800万円
40Gw 1LDK 42.53㎡
4階 9200万円台 坪単価715万円
5階 9200万円台 坪単価715万円
6階 9300万円台 坪単価722万円
7階 9300万円台 坪単価722万円
8階 9400万円台 坪単価730万円
9階 9400万円台 坪単価730万円
10階 9500万円台 坪単価738万円
11階 9600万円台 坪単価746万円
12階 9700万円台 坪単価754万円
40Ae 2LDK 44.90㎡
20階 15100万円台 坪単価1111万円
28階 15900万円台 坪単価1170万円
55Bw 2LDK 56.89㎡
7階 14600万円台 坪単価848万円
12階 15400万円台 坪単価894万円
55Ds 2LDK 56.87㎡
7階 14200万円台 坪単価825万円
19階 15400万円台 坪単価895万円
21階 15600万円台 坪単価906万円
23階 15800万円台 坪単価918万円
25階 16000万円台 坪単価930万円
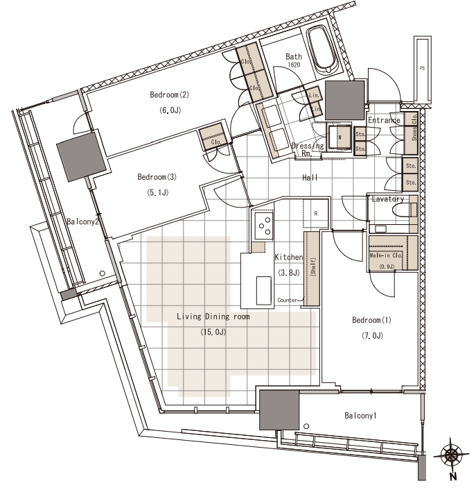
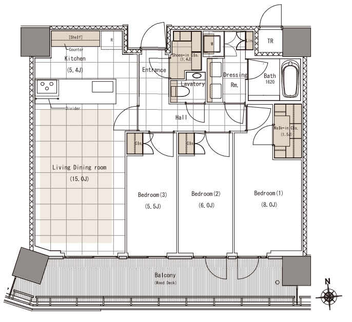
70Ae 3LDK 71.78㎡
16階 23000万円台 坪単価1059万円
28階 26900万円台 坪単価1238万円
70Bw 3LDK 71.78㎡
31階 22400万円台 坪単価1031万円
33階 22600万円台 坪単価1040万円
70Ee 3LDK 71.78㎡
28階 26900万円台 坪単価1238万円
75Ase 3LDK 75.10㎡
27階 28900万円台 坪単価1272万円
80Ane 3LDK 84.63㎡
85As 3LDK 88.41㎡ ※プレミアム住戸
平均坪単価は930万円前後になりそうでしょうか。
70㎡超が22000万円台からという水準となればもはやパワーカップル層を通り越していますね。(現状では2億円に壁を感じることが多い)
眺望懸念がある西向きと南向きに比べて眺望条件が良い東向きの単価が大きく盛られていますね。(眺望差による単価差が大きいことに違和感はない)
当然ながら第一期と比べれば大きく値上がりしています。(角部屋もんげー)
75Aseタイプ 3LDK 75.10㎡
27階 28900万円台 坪単価1272万円(今期販売住戸)
28階 21800万円 坪単価959万円(第一期販売済み住戸)
80Aneタイプ 3LDK 84.63㎡
22階 37900万円台 坪単価1480万円(今期販売住戸)
28階 23900万円 坪単価933万円(第一期販売済み住戸)
また、周辺相場も上昇しています。
■コスモポリス品川
2005年築 品川駅徒歩10分
新築時の坪単価約220万円
2024年11月の坪単価約470万円
現在の坪単価約620万円
■パークタワー品川ベイワード
2006年築 品川駅徒歩12分
新築時の坪単価約200万円
2024年11月の坪単価約570万円
現在の坪単価約610万円
築年数差を考慮すると1年2%くらいですから一般的な水準差と言えるでしょう。(将来のことは分からないですがリビオタワー品川がもしも今時点で築20年だった場合には坪単価620万円前後を平均値として動いている)
東京湾岸エリアの中でもザ豊海タワーはもっと差が少ないですからそちらと比べるとお得感としては薄いですね。
・ザ豊海タワー 2026年築 平均坪単価約820万円
・ザ東京タワーズ 2008年築 平均坪単価約685万円
ただ、JR線を日常使いしたい方にとってはリビオタワー品川のほうが便利ですから実需層からすればバッティングはしにくいでしょう。(リビオタワー品川はJR線の機動力に重きを置く方に合っている)
近隣ではパークタワー品川天王洲が供給中でそちらのほうがおすすめ度合いは高いのですがリビオタワー品川はなんだかんだ『港区』という看板が付いてくるためアドレスに拘りがある方には代替案として成り立たないのですよね。
リビオタワー品川、おそらく転売住戸や賃貸住戸がたくさん出てきますから短期的な目線での投資目的購入には向いていませんが実需からすれば待ち時間の短さも相まってとっつきやすいのではないでしょうか。
(すんごい時代になりましたなぁ…)
関連記事
リビオタワー品川 予定価格と間取り 駅距離を呑める方には嬉しい価格設定と高い商品力
記事が参考になったら資料請求は下記からお願いします!
資料請求はこちらから-
気になったらすぐに資料請求するのがおすすめ!ライバルは多いものです!

Powerd by LIFULL HOME’S



















コメントを残す