今回は東池袋駅直結の新築タワーマンション、グランドシティタワー池袋とプラウドタワー池袋の価格と間取りの一部を共有いたします!
まずは駅に近い北側ブロックのグランドシティタワー池袋から!
■先着順 販売戸数19戸
販売価格:15500万円~29800万円
間取り:2LDK~3LDK
専有面積:54.92㎡~78.44㎡
管理費(月額)29375円~41325円
修繕積立金(月額)11720円~16740円
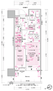
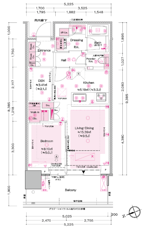
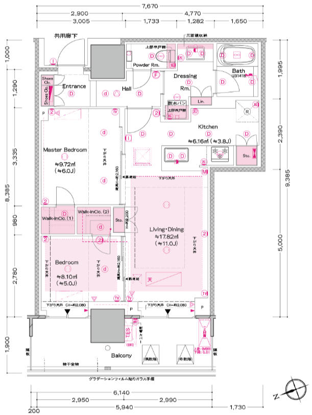
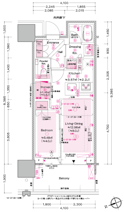
SW-55K 2LDK 54.92㎡
SW-55L 2LDK 55.19㎡
SW-55M 2LDK 55.44㎡
NW-55H 2LDK 56.3㎡
NW-55F 2LDK 56.42㎡
NW-55G 2LDK 56.44㎡
NW-55J 2LDK 56.44㎡
SE-55C 2LDK 56.44㎡
W-60A 2LDK 60.31㎡
E-60C 2LDK 60.43㎡
NE70B 3LDK 70.43㎡ 北向き中住戸
NW-70F 3LDK 70.44㎡
NW-70E 3LDK 70.44㎡
W70A 3LDK 72.44㎡
SE75A 3LDK 75.43㎡
39階 29800万円 坪単価1306万円
NW-75E 2LDK 75.44㎡
S-80A 3LDK 78.44㎡
N-80B 3LDK 78.44㎡
平均坪単価は約1060万円です。
早めに購入した方は2026年6月頃の引き渡しを予定しています。
第一期で2部屋購入済みのお刺身おじさんは1部屋を6月、もう1部屋を当初予定の9月というように分ける予定とのことでした。(元々の引き渡し日も選べる)
続いてプラウドタワー池袋!
■第2期2次 販売戸数未定
販売時期:2026年2月下旬 (予定)
※1000万円単位の予定価格
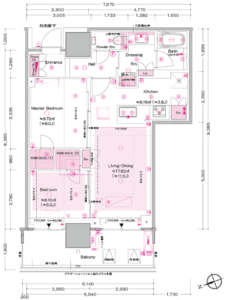
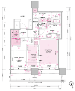
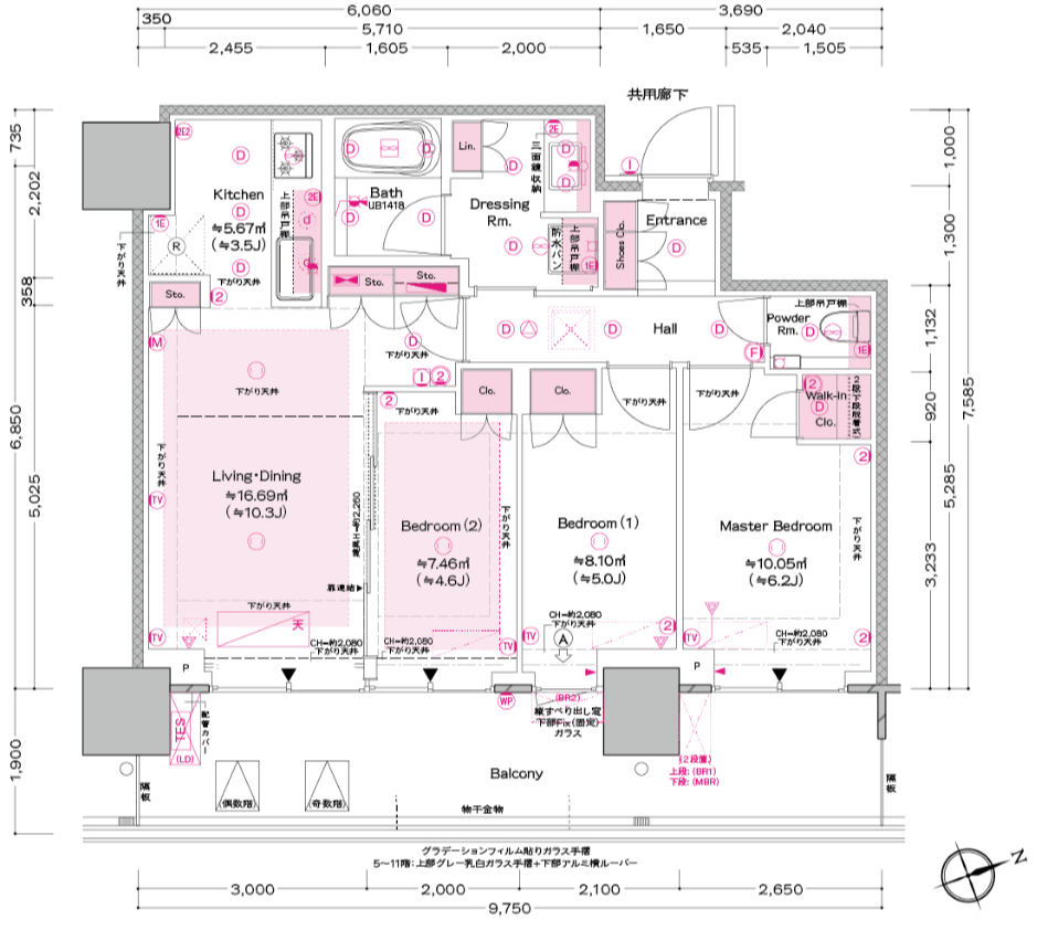
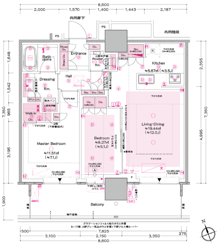
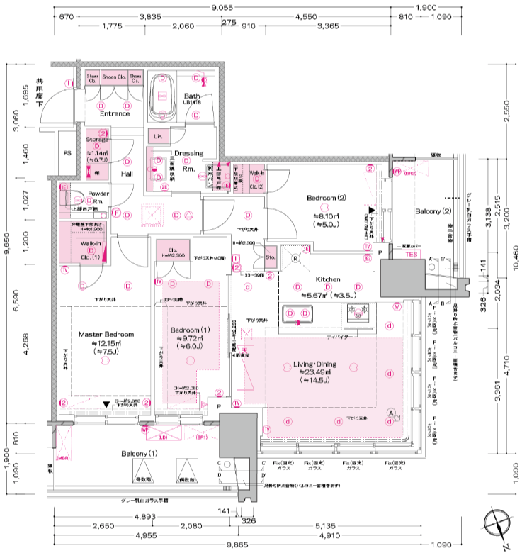
WD 1LDK 36.23㎡
WM 1LDK 47.33㎡
NA 2LDK 53.67㎡
WN 2LDK 60.43㎡
SA 2LDK 63.21㎡
NC 2LDK 66.67㎡
ED 3LDK 67.35㎡
EC 3LDK 71.49㎡
SD 3LDK 76.33㎡
EE 3LDK 76.37㎡
WA 3LDK 76.55㎡
WJ 3LDK 80.86㎡
EI 3LDK 82.88㎡
EL 3LDK 85.65㎡
WQ 3LDK 87.08㎡
EF 3LDK 93.07㎡
WS 3LDK 94.79㎡
EM 3LDK 111.06㎡
WV 3LDK 122.09㎡
平均坪単価は約1000万円です。
~維持費一例~
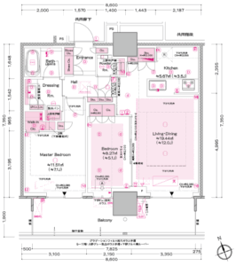
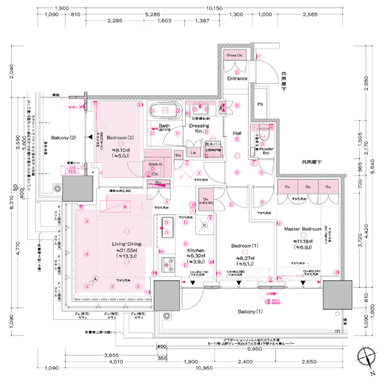
EC 3LDK 71.49㎡の場合
管理費:(月額)36450円
修繕積立金:(月額)15150円
インターネット利用料:(月額)550円
合計:月額52150円
引き渡しは2027年6月下旬を予定しています。(当初購入者は2027年3月も選べる予定)
グランドシティタワー池袋もプラウドタワー池袋も室内スペック面も頑張っていますし、『駅に近くてスーパーマーケットが足元に入るのはグランドシティタワー池袋』だけども『南面の抜け感はプラウドタワー池袋のほうが圧倒的に上で足元に保育園が入る』などそれぞれに魅力があります。
そのためこれまでの記事の通りどちらがおすすめというのはありません。
何を求めるか次第です。
・日常の利便性重視ならグランドシティタワー池袋
・南方位の抜群の採光×カーテンいらずの眺望を望むならプラウドタワー池袋
・首都高の夜景(車が動いているシーンは素敵なものです)をとことん楽しみたいならグランドシティタワー池袋(北西方位も◎)
・西方位の眺望を楽しみたいならプラウドタワー池袋(将来前立て懸念はあり)
・ダイレクトウィンドウがお好きならプラウドタワー池袋(すみふじゃないのよ、笑)
・敷地内の駐車場を確保したいならプラウドタワー池袋(グランドシティタワー池袋は部屋の契約後に駐車場抽選、プラウドタワー池袋は部屋の契約前に駐車場抽選)
などなど、こればかりは好みです。
以前もお話ししたところですが2物件が同売主での販売でなかったことは残念な部分もあります。
例えばパークタワー勝どきミッド/サウスのような関係ならもっともっとスケールメリットを活かせたからです。
ただ、売主が分かれたことでお互いが価格やスペック面を意識する必要があり(プラウドタワー池袋からするとグランドシティタワー池袋より高値で販売することが難しい)、だからこそこの価格でこれだけ素晴らしいロケーションのスペシャルなマンションが買えるわけです。
地権者さんありの再開発ですからその意見も反映されている部分があるためゆかいふるでの差別化ができなかったのは本当に惜しかったですが…
どちらも先着順住戸や期分け販売も大抽選会にならないようコントロール(買いたい人に合わせた供給戸数とする)してくれる傾向があるため『買いたくても当たらず買えない…』となりにくいのも嬉しいところですね。
坪単価1000万円となればお安くはないのですが『山手線内側の東池袋駅直結(PTはペデ直)新築タワマン』となればそれくらいすることに違和感はないですからね…どうしてもグランドシティタワー池袋の第一期場面での『価格間違えちった!!(笑)』が残像に残っているのでお高くは見えてしまうのですが過去には戻れないですからね。
早くスーパーマーケットの詳細が知りたいですね!
現状では2026年8月のオープンを目指して動いています。
■店舗概要(大規模小売店舗立地法新設情報)
店舗面積:1194㎡
駐車場:7台
駐輪場:85台
営業時間:10時~23時
関連記事
プラウドタワー池袋 予定価格と間取り 都心を見下ろすカーテンいらずの南向き住戸が目玉
グランドシティタワー池袋 予定価格と間取り モデルルーム訪問 おすすめです!














































コメントを残す