パークタワー渋谷笹塚、第三期の予定価格が出ましたね!
実質の値上げ(過去に供給された類似住戸と比べると高い)はなされているもののまだまだおすすめとなります!
そういったお話をすると『定借をおすすめするとは何事だ』というご意見をいただきます。(とくに第一期でおすすめした際は酷い言われようでした…)
もちろん『同時期に購入できるスペシャルな所有権』と比べれば長い目で見れば弱いことは確かでしょう。
でも、そのスペシャルな所有権よりもお求めやすい価格ですから『限られた予算の中でスペシャルな物件を買う』という選択ができるわけで『遠い未来より今を大事にしたい人』にとっては最適解となりやすいのです。
さらに、パークタワー渋谷笹塚に関しては『笹塚駅№1分譲マンション』と言っても違和感ないですし、その近辺で見ても同類の所有権マンションがないなど『定借だからこそ叶う条件』が揃っています。
京王線沿いはタワマン自体が少ないですし、西新宿あたりまで視野を広げればタワマンも増えますが築浅のパークタワー西新宿は平均坪単価1000万円弱、そこからさらに都心へ入った新宿御苑で供給中のクラッシィタワー新宿御苑は坪単価1100万円強と価格帯が大きく上振れしてしまいます。
パークタワー渋谷笹塚は一般的にウケが良いとも言える『渋谷区アドレス』というのもストロングポイントと言えるでしょう。
ナンバープレートも品川ナンバーです。
えっ?『東京の東側なら近しい価格帯(支払額)の新築or築浅があるじゃない』
そうなのです。それは確かにそうなのです。リセール面などもそちら側のほうが強いことでしょう。
でも、パークタワー渋谷笹塚に住みたい方は東京の西側に住みたい(好みの問題だけでなく通勤先や実家の関係で笹塚のほうが便利等)わけで比較検討は難しいのです。
つまり『気に入っておりパークタワー渋谷笹塚に住む理由がしっかりとあるのに定借を理由に買うのをやめるのは本当にもったいない物件』なのです。
個別相談会経由でパークタワー渋谷笹塚をご購入いただく方の多くも『勤務先が山手線の西側寄り』『京王線沿いに地縁(実家等)がある』『共働きで片方は府中や多摩センターなど西側郊外勤務』というような背景がありました。
そういった方からすればパークタワー渋谷笹塚は定借であろうと本当にスペシャルな物件なのですよね。
【住むレーション】
[京王線・京王新線(都営新宿線直通)]
笹塚 8:26発
新宿 8:31着
笹塚 8:09発
幡ヶ谷 8:10着
初台 8:12着
新宿 8:16着
新宿三丁目 8:19着
曙橋 8:22着
市ヶ谷 8:24着
九段下 8:27着
神保町 8:29着
予定価格と間取りの一部を確認しましょう!
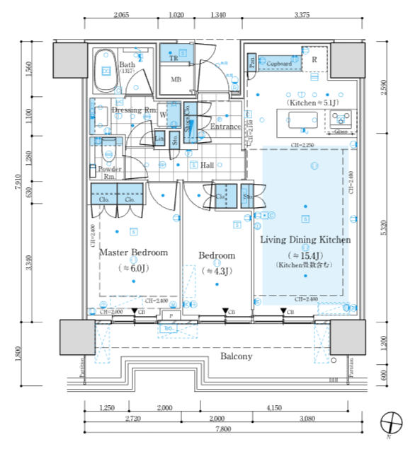
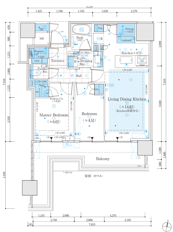
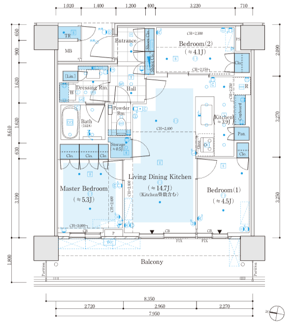
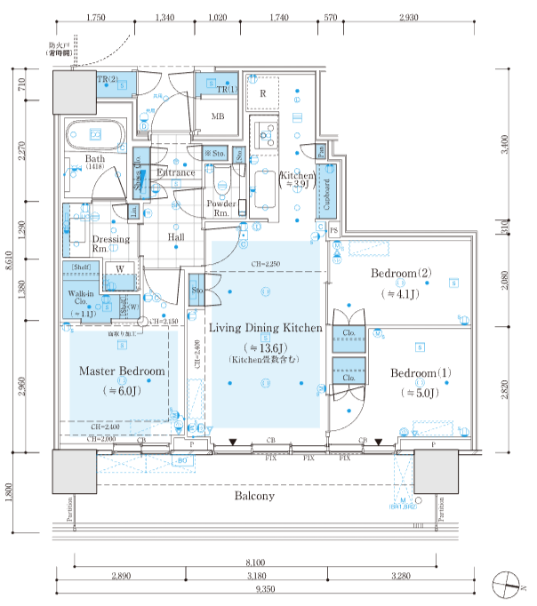
43A 1LDK 43.94㎡
58Bb 2LDK 58.70㎡
60A 2LDK 60.00㎡
65C 3LDK 65.35㎡
65G 3LDK 65.61㎡
75Bb 3LDK 75.44㎡
76B 3LDK 76.89㎡
P-83B 3LDK 83.53㎡
P-83D 3LDK 83.99㎡
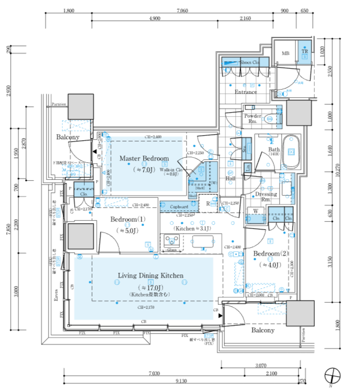
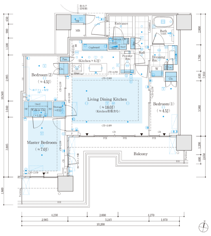
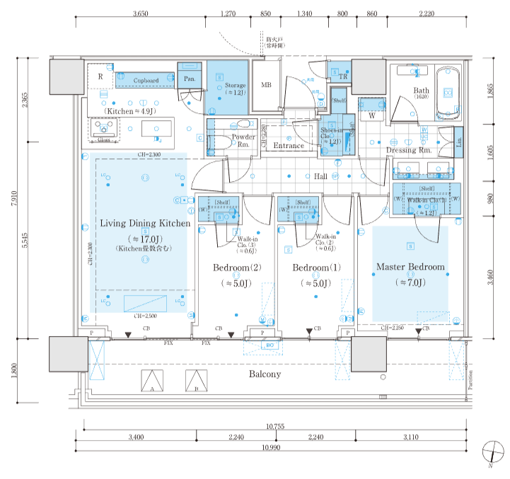
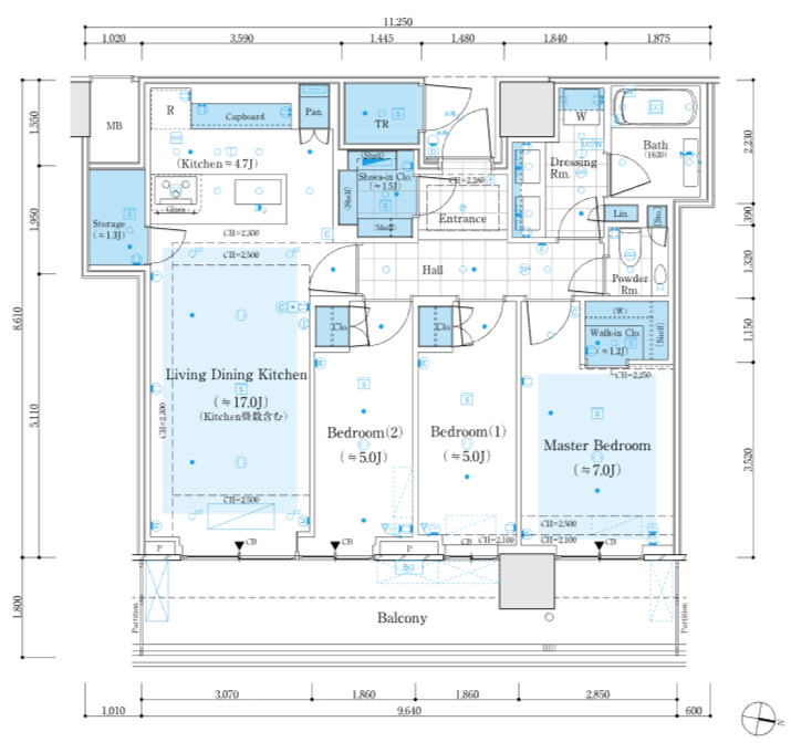
P-108A 3LDK 108.56㎡
~前期販売住戸との比較~
上部が販売済み住戸、下部今期販売予定住戸
[北向き中住戸]
58Cbタイプ 2LDK 58.70㎡
16階 10800万円台 坪単価608万円
58Bb 2LDK 58.70㎡
16階 11600万円台 坪単価653万円
[西向き中住戸]
65Fタイプ 3LDK 65.61㎡
16階 11900万円台 坪単価599万円
65C 3LDK 65.35㎡
16階 12700万円台 坪単価642万円
※東向き中住戸は向かいのビルとの被りを考慮して前期より単価安となっています
[プレミアム北向き中住戸]
P-96Aタイプ 3LDK 96.70㎡
27階 23300万円台 坪単価796万円
P-83B 3LDK 83.53㎡
27階 21900万円台 坪単価866万円
同列ではないものの実質の値上げと言って違和感はないでしょう。
あくまで予定価格のため正式価格がどうなるかは分かりませんが竣工まで2年弱を残している段階で総戸数659戸(一般販売対象住戸643戸)中380戸ほどが成約済みと売れ行きは好調です。
第三期は2026年2月上旬から販売予定です。
パークタワー渋谷笹塚あるあるでモデルルームの予約も取りやすいため打席に立てないという心配がないのも嬉しいですね!
関連記事
パークタワー渋谷笹塚 第二期の予定価格と間取り 1LDKの供給もスタート
パークタワー渋谷笹塚 予定価格と間取り 新宿中村屋東京工場跡地の定借タワマン
記事が参考になったら資料請求は下記からお願いします!
資料請求はこちらから-
気になったらすぐに資料請求するのがおすすめ!ライバルは多いものです!

Powerd by LIFULL HOME’S


















コメントを残す