今回ご紹介するのは幕張ベイパーク ブルームテラスタワーです!
[物件概要]
売主:三井不動産レジデンシャル 三菱地所レジデンス 野村不動産 伊藤忠都市開発 東方地所 富士見地所 袖ヶ浦興業
施工:熊谷組
価格:未定
専有面積:56.75㎡~114.08㎡
総戸数:650戸
規模:42階建て
交通:京葉線「海浜幕張」駅徒歩15分【北口利用】※京葉線「海浜幕張」駅徒歩14分【公園改札口(7:00-22:00)利用】
所在地:千葉県千葉市美浜区若葉3丁目
竣工予定:2027年10月下旬
引き渡し予定:2028年3月下旬
駐車場:平面46台 自走式469台
駐輪場:1105台
バイク置場:32台
地図はこちらです↓
第一弾の幕張ベイパーククロスタワー&レジデンスが2017年12月に販売開始されてから約8年、ついに最後のタワー棟の案内会がスタートしました。(ZOZOPARKのところは開発されたとしても板状棟)
ベイパーク内やそれに関わる場所のこれまでの成長に関しては改めて語る必要もないかと思いますが直近では海浜幕張駅の公園口が営業開始となったことで駅との行き来が大変便利になりましたね。
今後も2026年春に幕張若葉小学校開校、同年度幕張海浜病院が開院、その後幕張海浜公園のリニューアルやアリーナ建設、昭和学院秀英の幼稚園と小学校が開校、もう少しエリアの幅を広げるとzozoマリンスタジアムも移転建て替えされる計画があるなど『勝手に街が成長してくれる』という飴ちゃんは今作にも付いてくることになります。
この時代において小学校を新設することが『人気の街』の証とも言えるでしょう。
いろいろな街の大規模プロジェクトを見てきていますが小学校新設というのはそう多くないのですよね。
今作の通学校はもちろん新設校の幕張若葉小学校で徒歩2分、ベイパーク内の分譲棟では一番近い距離に位置しています。
中学校は人気の打瀬中学校で徒歩20分弱ですが当然ながら受験組も多いエリアです。
建設地は若葉3丁目公園の北側、線路から離れる3ブロックの内の中央です。
幕張ベイパークは条件良い街区から開発(分譲とシニア向けレジデンス)してきたため客観的に見ると既存棟のほうが優れています。
同じ列で比較してもクロスタワーのほうが駅や商業の中心に近いですし西方面の抜け感も今作以上です。
ただ、今作に関してはキャッチコピーに『in the Park』とあるように若葉3丁目公園との相性は抜群、南方位×パークビューとしては今作が一番条件が良いのです。
日影に関しては既存棟の影響を受けることもありますが離隔はしっかりととれていますから低層階でも、いや、低層階ほど今作らしい眺望となってきます。
それを活かすべく2階住戸はテラス付きとタワーマンションでは珍しいプランが設けられています。(中間免震を挟むため実際は3階相当)
加えて足元の共用施設(共用棟)を公園側に寄せて窓面豊かにすることで動線上でもパークビューを楽しめるようにしてくれています。
これまで中間免震ということも影響してエントランスホールは一層でしたが(二層にできなくはないがコストがかかる)今作は共用空間の一部をせり出させ2階建てに、さらに中心を吹き抜けとすることでこれまで以上に開放感あるエントランスホール・ラウンジを実現しています。
ホール内もその外周部も植栽が豊かで公園との一体感演出、2階のワーク&スタディラウンジとパークビューテラスからはその名の通り素敵な眺望となります。
そのせり出した共用施設は西から南へかけて長い空間となっておりコリドーの先にキッズルームとパーティールームがあるのですがこちらも窓面が豊かですから『まるで公園で遊んでいるような、パーティーしているような感覚』になるのではないでしょうか。
これだけ明るい共用空間を経由してエレベーターホールへ向かうわけですがその手前のホールは樹木をイメージしたモニュメントが配された木のぬくもりを感じられる落ち着いた空間となっているため、きっとその変化にも感動するはずです。
38階の南西角に宿泊可能なスカイヴィラ(ラウンジ)が設けられるため低層階のパークビューを購入してもタワマンらしい眺望を楽しむことができます。
外観デザインは花をモチーフにした緑主体の色合い、庇を曲線とし頭頂部の装飾で花が咲くような印象も受けますね。
それも影響してか最上階の基本天井高は2800mmとスペシャルです。(一般フロアでも既存棟と同じく2600mmと十分高いです)
低層の店舗棟も曲線とすることで公園とサークルを描くような連続性を感じることができますし、その店舗棟の屋上にデッキを設けることで公園の中心と言える街区だからこそ他街区にお住いになる方もブルームの街区へ訪れたくなるようなランドスケープとなっています。
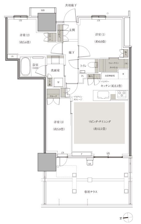
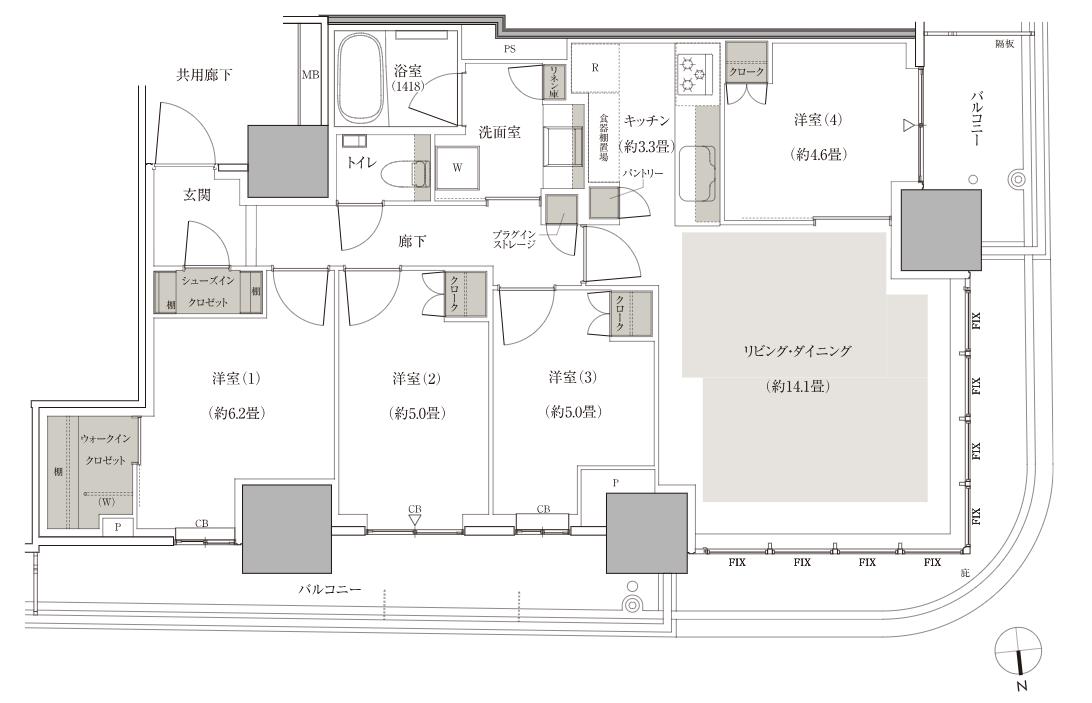
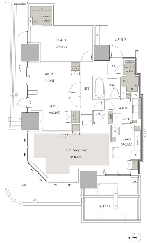
予定価格と間取りの一部を共有いたします!
※100万円単位
W66/W66t 3LDK 66.33㎡/67.13㎡
30階 6800万円台 坪単価334万円
WT70A 3LDK 70.27㎡
E72 3LDK 72.35㎡
10階 7000万円台 坪単価319万円
E73/E73t 3LDK 73.92㎡/74.72㎡
30階 7800万円台 坪単価345万円
W80At 3LDK 80.83㎡
S84t 3LDK 84.97㎡
Ne83 3LDK 83.68㎡
10階 9000万円台 坪単価355万円
Nw85/Nw85t 4LDK 85.8㎡/86.6㎡
21階 9600万円台 坪単価369万円
28階 10000万円台 坪単価381万円
NwT93 3LDK 93.87㎡
Sw114t 3LDK 114.88㎡
平均坪単価は約350万円です。(条件良い部屋の供給が多そうな第一期はもう少し高いかも?)
既存分譲棟と同じく外廊下になっています。
最後のタワー棟くらいは内廊下が見たかったという方も少なくはないでしょうね…
それでもワイドスパンで4連窓(もしくは4連窓相当のワイド3枚窓)の部屋もあるなど開口部としては魅力が大きいですね。
これまでの棟と同じく『選べる内は角住戸もしくはリビング4連窓(もしくは4連窓相当のワイド3枚窓)』をおすすめいたします。本当に満足度高いと思います。(中古市場でも角と4連窓はウケが良いです)
主開口部はクロスタワーと同じく北向き中住戸がありません。
東・南・西の設定、視界抜け優先(カーテンいらずの生活がしたい)のであれば東向き、海浜幕張らしいオーシャンビューも楽しみたいなら南向きと西向きの中層階以上、パークビューを楽しみたいなら南向きと西向きの低層階という選び方が基本となります。
南と西は確定眺望のため価格の歪みはないのですが東向き、とくに低層階に関してはモデルルーム跡地に何が建つか確定していない(当初計画ではパークウェルステイトの別棟)ため単価抑え目の設定です。
東向きもカーテンいらずの抜け感でけっこうな魅力がある中で不安要素があるからこその弱気設定と言えるでしょう。(もちろん何が建っても文句は言えないのでご注意を)
設備仕様としてはディスポーザー、食洗機、キッチン天板御影石、浴室ダウンライト、手洗い器&ローシルエットトイレ、玄関電気錠、玄関前カメラ付きインターホン、可動式ルーバー面格子、2階住戸は専用テラスにスロップシンク、30階以上はエレベーターホール付近にトランクルーム、各階食配ステーション、低炭素認定などなど単価帯からすれば十分しっかりしたものになっています。
構造は二重床(床スラブ厚270mm~300mm)・二重天井、基本天井高は2600mm(最上階は2800mm)、中間免震を採用しています。
現在再度確認いただいているのですが見学時に担当営業さんから『基本天井高2800mmの最上階はサッシ高は一般フロアと同じ』と説明されました。
サッシ高2100mmはタワマンとしては最低水準はクリアしているものの基本天井高2800mmでサッシ高2100mmだと物足りないような…サッシ高を2300mmまで上げないのが事実なら謎ですね…
※2026年2月7日追記 最上階はサッシ高も20cm近く高くなるとのことでした!!
周辺相場を確認しましょう!
■幕張ベイパーク クロスタワー&レジデンス
2018年築 海浜幕張駅徒歩15分
新築時の坪単価約210万円
現在の坪単価約310万円
動き一例
約82㎡
新築時4900万円台
中古時7800万円台
■幕張ベイパーク スカイグランドタワー
2020年築 海浜幕張駅徒歩13分
新築時の坪単価約215万円
現在の坪単価約320万円
動き一例
約75㎡
新築時4900万円台
中古時8000万円台
■幕張ベイパーク ミッドスクエアタワー
2023年築 海浜幕張駅徒歩15分
新築時の坪単価約230万円
現在の坪単価約320万円
動き一例
約85㎡
新築時5300万円台
中古時8400万円台
■幕張ベイパークライズゲートタワー
2025年築 海浜幕張駅徒歩16分
新築時の坪単価約285万円
現在の坪単価約330万円
動き一例
約75㎡
新築時6000万円台
中古時7200万円台
上記相場から幕張ベイパーク ブルームテラスタワーが今時点で築10年だった場合の価値を算出すると
E73タイプ 3LDK 73.92㎡ 22階 7400万円台 → 7000万円(築10年と想定)
となります。
あくまで今の相場での算出のため参考までにお願いいたします。
駐車場はすべて平置きもしくは自走式立体(エレベーターあり)で機械式はありません。(ライズゲートタワーは機械式混在であった)
設置率は約80%、出入口にシャッターゲート、幕張ベイパークでは初となるピロティ状のコーチエントランスを設けているため便利ですし雰囲気も良いですね。(これまでも車寄せはありましたが今作のように建物を奥まらせてはいなかった)
駐輪場は建物1階の屋内で設置率約170%です。これまでは屋外が多かった(クロスタワーは自走式立体駐車場の下)ため自転車のヘビーユーザーであれば魅力が大きいことでしょう。共用部をせり出したからこそできたことです。
別途居住者専用のレンタサイクルが設置されます。(街の中に一般向けのレンタサイクルもあります)
管理費などのランニングコストは未定でした。
24時間有人管理、コンシェルジュサービス、各階ごみ置場などこれまでとサービス面は変わりません。
エレベーターは26階までの低中層用が4基(分速210m!!)、26階以上の高層用(分速240m!!)が3基です。(26階はどちらも使えるため価格に反映されそう)
駐車場の区画サイズ、ランニングコストなど細かいことが分かりましたら再度共有いたします。
周辺分譲マンションの維持費を確認しましょう!
■幕張ベイパーク クロスタワー&レジデンス 総戸数479戸 管理費㎡単価月額約261円
■幕張ベイパーク スカイグランドタワー 総戸数826戸 管理費㎡単価月額約224円
■幕張ベイパーク ミッドスクエアタワー 総戸数749戸 管理費㎡単価月額約221円
■幕張ベイパークライズゲートタワー 総戸数768戸 管理費㎡単価月額約240円
【住むレーション】
[路線バス]
若葉第一 7:05発
幕張総合高校 7:06着
若葉三丁目 7:07着
ひび野一丁目 7:08着
イオン海浜幕張店 7:09着
海浜幕張駅 7:12着
[京葉線]
海浜幕張 7:24発
南船橋 7:29着
新浦安 7:38着
舞浜 7:41着
新木場 7:47着
八丁堀 7:55着
東京 7:57着
[武蔵野線]
海浜幕張 7:41発(始発)
幕張豊砂 7:44着
新習志野 7:46着
南船橋 7:49着
西船橋 7:55着
船橋法典 7:58着
市川大野 8:01着
東松戸 8:04着
新八柱 8:06着
新松戸 8:11着
南流山 8:13着
三郷 8:16着
新三郷 8:18着
吉川美南 8:21着
吉川 8:23着
越谷レイクタウン 8:25着
[高速バス(マイタウンライナー)]
若葉公園 5:38発
~中略~
東京駅 6:16着
銀座駅 6:29着
[空港リムジンバス]
幕張ベイタウン 5:05発
海浜幕張駅 5:13着
羽田空港第2ターミナル 5:50着
羽田空港第1ターミナル 5:55着
羽田空港第3ターミナル 6:02着
若葉第一停留所からの路線バスは平日朝ラッシュ時間帯でも毎時5本前後とあまり本数は多くありません。新設病院開院でもう少し本数が増えてくれるとより使いやすくなるのですがどうでしょうか。
『京葉線が風に弱い』というのはもはや日本昔ばなしとなったわけですが(ベイパークは風強い日が多いですww)平日の朝ラッシュ時間帯に快速が少ない(少なくなった)ため総武快速線と比べて所要時間が長いのがウィークポイントと言えるでしょう。
高速道路の出入口は近いですしロードサイド店も充実した街ですから車があると生活満足度がグッと高くなることでしょう。
某八重洲のアベニューからライズゲートタワーへ引っ越すミルキー並木さんも車を買うことでワクワクしている様子がうかがえます。
レンタサイクルが充実している街のため悪天候でなければそちらを利用される方も多いですね。
幕張ベイパークブルームテラス建設地まで路線バスで移動!
所要時間は5分ほど、バス停下車すぐです! pic.twitter.com/W5Aw8rf8Y8
— マンションマニア (@mansionmania) January 10, 2026
【総評】
これはおすすめしやすいですね~。
最後まで(板状棟があるはずなので終わりではないですがタワマンとしてはラストのため一旦の区切りとして)買いやすい価格帯で販売してくれることが確定しました。(予定価格のため変更の可能性はありますが第一期場面で今回出た予定価格より高くなることはない)
街区特性を活かした商品力…素晴らしいですね。
最後のタワー棟らしく二層吹き抜けとした共用空間は『既存棟ではなくブルームテラスタワーにして良かった』と思えるポイントの一つとなることは間違いないですね。
完成した際には共用棟と店舗棟がとにかく公園から目立つことになるため『ベイパークの中心的存在』になると言っても過言ではないでしょう。
価格に関してはこれまでみたく奇跡の安さではないですが街が成長した後の最後のタワー棟ですから弱気になる必要はないですからね…
それでも現状では現実路線の価格で購入できる中古もありますからそちらを狙うこともおすすめしたいところです。
もちろん築年数差はあるため築年数補正したうえで比較することも大事です。
個別相談会においてもベイパークは新築も中古も子育てファミリー層に何度も何度も購入いただいていますが多くの方が『安心して子育てができる』という思いで選ぶ方が多いのですよね。
人によっては『え~ここでこの価格出すなら東京23区の○○辺りでも良くない?』というような印象を持つかと思いますが幕張ベイパークを選ぶ方はそこじゃないのですよね。
そのため住環境重視という価値観になった買い替え層にもウケが良いのが特徴的ですね。
ましてやタワマンですから現居と比べてスペック面が劣りにくいというのもとっつきやすいことでしょう。
さらに子育てファミリー層だけでなくシングル、シニア層にウケが良いのも需要がある要素の一つでしょう。
シングル層にとってもシニア層にとっても価格抑えつつ住環境重視となれば魅力が大きいですからね。
一方で売却相談サービスでも幕張ベイパークの売却活動を多くお手伝いしてきました。
その売却に至るネガティブな理由のほとんど(広さのステップアップやベイパーク内買い替えなどポジティブ除く)は『東京に戻りたい』『通勤時間がつらい』など時間的ストレスがほとんどです。
少なくとも私は『住環境が悪くて住み替えたい』という理由での売却は見たことがありません。
どちらも『そりゃそうでしょ』と思われるかもしれませんが流行にのって購入したはいいけども気になる部分がでてきてしまい…というのは少なからずあるものです。
とある街の売却相談ではネガティブ理由の9割ほどが『ここで子育てはしたくない(小学校入学までにはこの街を出たい)』ということもあるように『売却している人の理由』を知ることも失敗しないコツと言えるでしょう。
幕張ベイパークに関してはどうしても駅距離も相まって都心が遠く感じやすいためそこに関してはしっかりと住むレーションをして呑めるかどうかを家族会議、逆にそこを乗り越えてしまえば気に入っている方が買わない理由がないというくらい本当に良い街&マンションだと思います!
『ベイパーク内住み替え(買い替えだけでなく分譲賃貸からの新規購入含む)』がとても多いということはそれだけ『この街で長く暮らしたい』というベイパーク愛が強い方が多い表れなのでしょう。
いわゆる繁華街は苦手だけども利便性が高く整った街で暮らしたいという方は検討候補の一つにしてみることをおすすめいたします!!
これから中古の在庫も増える(ライズゲートタワーへのベイパーク内住み替えがめちゃくちゃ多いです)ため新築と中古を比較検討してみることをおすすめいたします!
関連記事
幕張ベイパーク ブルームテラスタワーの物件詳細・資料請求はコチラ
記事が参考になったら資料請求は下記からお願いします!
資料請求はこちらから-
気になったらすぐに資料請求するのがおすすめ!ライバルは多いものです!

Powerd by LIFULL HOME’S



















コメントを残す