今回ご紹介するのはザ・パークハウス 赤羽台タワー&レジデンスです!
[物件概要]
売主:三菱地所レジデンス 住友商事 近鉄不動産
施工:前田建設工業
価格:未定
専有面積:31.33㎡~137.83㎡、戸別宅配ボックス面積0.41㎡~0.86㎡、合計専有面積31.90㎡~138.41㎡
総戸数:550戸
規模:地上29階地下2階建て
交通:JR各線「赤羽」駅徒歩4分 東京メトロ南北線・埼玉高速鉄道「赤羽岩淵」駅徒歩9分
所在地:東京都北区赤羽台1丁目
竣工予定:2028年10月中旬
引き渡し予定:2029年1月中旬
駐車場:168台(タワーパーキング94台、機械式68台、平置5台、身障者用1台)
自転車置場:814台(平置[ラック]110台、2段ラック式692台、平置(子供用)12台)
バイク置場:12台
ミニバイク置場:16台
地図はこちらです↓
各線赤羽駅西口から徒歩4分、URの赤羽台団地(現在のヌーヴェル赤羽台)の建て替え(すべて建て替え済み)、道の整備、東洋大学⾚⽻台キャンパスの新設などなど街づくりが進んできた赤羽台エリア(赤羽台ゲートウェイ計画)のステーションフロント的な位置づけとなります。
線路が近いためそれなりの音ネックはあれど住居系地域(一部商業地域)ということあり赤羽駅徒歩4分の割には静かですね。
赤羽台団地と言えば2016年の記事で『スターハウスがなくなるのは寂しいなぁ~』とお話ししましたがそう思う方が多かったのでしょう。
団地初の登録有形文化財としてURまちとくらしのミュージアム一帯の整備と共に残すことにしてくれたのは感動しましたね…
残してくれた赤羽台のスターハウス!
ザ・パークハウス赤羽台のレジデンス棟でも再現してほしかった(笑) pic.twitter.com/9VCjUhK42E
— マンションマニア (@mansionmania) January 12, 2026
ダイエー赤羽店跡地にて建設中の野村不動産による赤羽二丁目Ⅱ計画(プラウドタワー赤羽?)が32階建てで高さ約126m、今作が29階建てで高さ約101mのため高さでは劣るものの『高台のタワマン』という特権があるため比べることはナンセンスでしょう。
プラウドタワー赤羽(予想)と販売時期が被る可能性はありますがバッティングはあまりしないかと思います。
両方見学したとしても心の中では答えが決まっているパターンであり、ガチのガチで迷う人は稀でしょう。(同じタワマンでもロケーションのキャラクターが大きく異なる)
今作は『高台』×『駅近』に加えて足元にはカフェやクリニックなどの生活利便施設も整備されるなど赤羽台ゲートウェイ計画の中でさらに一つの街ができる規模感の開発ですから『赤羽に住みたい』を飛び越えて『ザ・パークハウス 赤羽台タワー&レジデンスに住みたい』というように指名買いされやすい要素が揃っています。
日常の買い物は駅との間の富士ガーデン(一部角上魚類コーナーもあり)が徒歩3分、イトーヨーカドーが徒歩6分、ダイエーが徒歩9分、商店街もありますから選択肢が充実しています。高台側にもマルエツがあり徒歩8分ですから低地側と高台側を使い分けることもできます。
自炊するパワーは残っていないけども自宅で食事をとりたいという際やちょっと贅沢したいときなどはエキナカ利用も便利でしょう。
スーパーマーケットや飲食のチェーン店も多ければ個人店も多い街ですから私のような自炊&チェーン店派や個人店派ののんべえさんなどどんな好みでも生活満足度が高くなることでしょう。武蔵小杉と同じで映画館がないくらいですね。
通学校は八幡小学校で徒歩10分、桐ケ丘中学校で徒歩15分です。
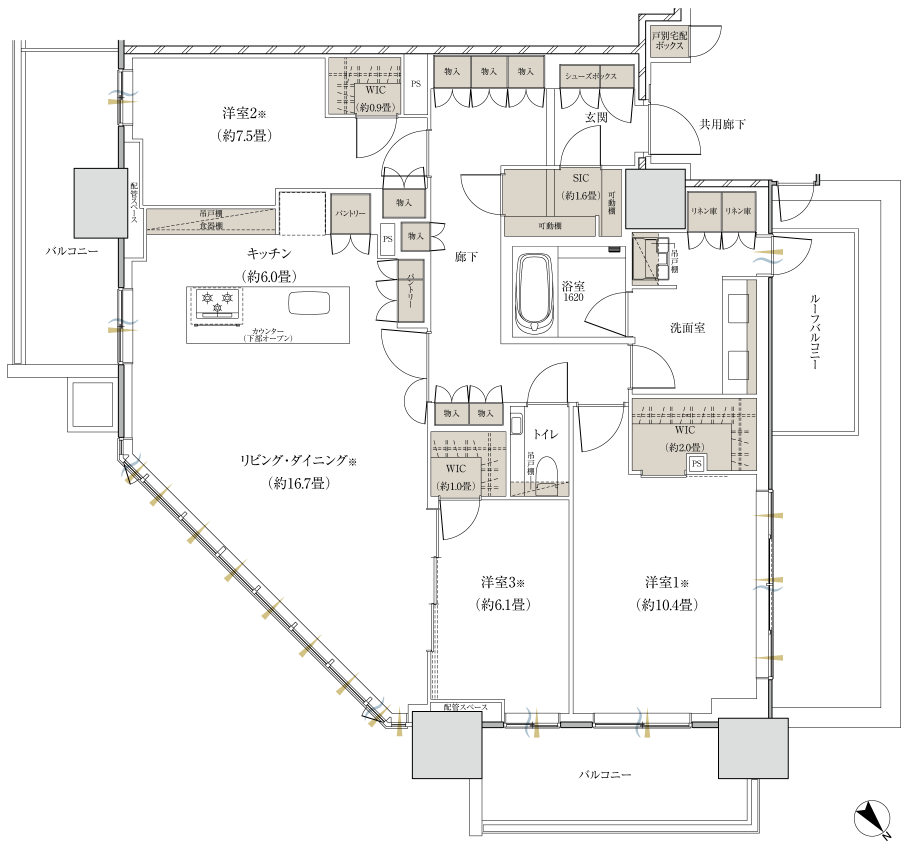
建設地は小学校があった場所で約13700㎡と広さはあるのですが北西側にて建設予定の北区の児童相談所複合施設(約5000㎡)の土地形状が三角形のため今作もそれの影響を受けたタワマンでは少々珍しい形状になっています。
それを活かして29階建てのタワー棟(430戸)、5階建てのレジデンス棟(120戸)の2棟構成という配棟計画になっています。(同一マンション扱いです)
タワー棟は全方位に主開口部、レジデンス棟は東向きと西向きの設定です。
タワー棟が眺望に優れていることはもちろんですがレジデンス棟であっても高台がゆえに東向きは電車ビュー(高架)になるくらいグラウンドレベルが高くなっており十分条件良いのが高台の最前列(ステーションフロント)らしいスペシャルポイントですよね。
各方面の花火大会を楽しめる住戸も多くなっています。スカイラウンジを17階にしているくらいですからそのくらいが花火を見やすい高さなのかと思います。
そうなると『駅近とはいえ坂がね…』と思ってしまうことでしょう。
赤羽駅と住戸棟の建設地では標高差が15mほどありますから実際に歩いてみてもけっこうな上り坂です。
ただ、今回鳥肌レベルで感動したのがバス通り側に土地を切り開いて玄関口となるゲートウェイプラザを設けてくれるのです。(擁壁は行政で整備済み)
そのゲートウェイプラザからエスカレーターやエレベーターで住戸棟のグラウンドレベルまで行き来ができてしまうのです。(自転車は起伏を伴います)
赤羽駅とゲートウェイプラザの標高差は5m弱ですからとても緩やかな上り坂となっており『ザ・高台に住まうのに低地との行き来も楽』というあまりにも甘すぎる飴ちゃんがセットになっているのです…すごい…
さすがに比較するには標高差のレベルが違いすぎるのですがブリリアシティ横浜磯子を彷彿とさせるものになっています。(赤羽台は通行料無料です。笑)
今作が完成すると現在並木通り側から低地側と行き来している高台側の住民さんや大学関係者や学生さんもこちらを経由する機会が増えることでしょう。(飲み屋街はないので基本的にのんべぇさんはこちら側には来ないです)
そしてそれが自然と広告となり憧れの的となる…これぞエリア№1マンションですよね。
店舗区画におしゃれなカフェが入ってくれればさらに雰囲気良くなりそう!
住戸棟のデザインとしては比較的シンプルで落ち着いた印象ですが基壇部の生活利便施設側が曲線の美しい壁面のため下から見上げた際の印象としてはかなり映えることでしょう。住戸同士の間もスラブtoスラブの隔て板かコンクリートです。
高低差(3層)を活かして植栽豊かな広場を6つ設けるなどセントラルコリドー(貫通通路)周りのゆとりもスペシャルですね。
赤羽駅前の良い意味で雑多な街並みからいっきにブランニューな住宅街へと景色が変わるというのは赤羽だからこそだせる味とも言えるでしょう。
ガラスと金属フレームが美しい風除室周り、その先の二層吹き抜けのエントランスホールはエントランスコリドーと合わせて広々した空間となっており豊かな窓面からは外の植栽を自然と望める気持ちの良い動線となっています。
共用施設はタワー棟の17階南東角にスカイラウンジ、レジデンス棟との間の2階にワーキングラウンジとサウンドルーム、コミュニティ棟(1階は生活利便施設の別棟)の3階にバーベキューも楽しめるアウトドアデッキとラウンジ、ゲストルーム2部屋、ランドリールームなど総戸数550戸らしく充実しています。(タワー棟もレジデンス棟も相互利用可能)
マンションの共用施設としてはフィットネスジムがないもののビビオにルネサンス、駅南側にジェクサーがありますからあえて入れなかったのでしょう。
予定価格と間取りの一部を共有いたします!
※1000万円単位のざっくり予定価格
[一般住戸]
T55G 2LDK 58.01㎡
T60A 2LDK 63.20㎡
T65B 3LDK 68.56㎡
13階 15000万円~15999万円 坪単価723万円~坪単価771万円
T65C 3LDK 68.94㎡
T65D 3LDK 68.97㎡
T75A 3LDK 74.55㎡
T85A1 3LDK 86.98㎡ ※スカイラウンジの列
T90B1 3LDK 90.79㎡ ※駐車場抽選第二優先権
[プレミアム住戸] ※駐車場抽選第一優先権
T100A 3LDK 100.43㎡
T100Br 3LDK 100.86㎡
T120Ar 3LDK 119.96㎡
T135B 3LDK 137.83㎡
第一期はタワー棟からの販売となります。
プレミアムをどのくらい供給するかにもよりますが第一期に関しては条件良い部屋からの供給ですから平均値として坪単価700万円前後にはなりそうですね。(もちろん待ったから安くなる保証もなく、最悪値上げの可能性もある)
タワー棟は内廊下、レジデンス棟は外廊下です。
面積も幅広く(30㎡台や40㎡台の狭めの部屋は主にタワー棟)形状も金太郎飴ではないため選ぶ楽しみがあります。
また、タワーマンションとしては珍しく上層部の全体スパンを削る(引っ込ませる)ことで高層階×ルーフバルコニー付き住戸を実現しているのも面白いですね。
角住戸のコーナーサッシは高さ1800mm弱(立ち上がり除く)のため高さとしてはインパクトないですが横に長いため全体で見るとスペシャルなパノラマビューとなります。
ただ、中住戸のリビング窓面は物足りないですね…
間取りにもよりますけども上記で取り上げた中住戸すべてが2枚窓です…
せっかくのスペシャルな日当たり&眺望のマンションなのですから柱や壁の位置を洋室側に逃がしてリビングの開放感を確保してほしかったところではあります。(高いお金支払って角住戸買いなさいよ!という売り手のメッセージ?!)
レジデンス棟に関してはバルコニーの横幅を削り(その代わり奥行拡大)コンサバトリーを設けているなど『タワマンは苦手』という方にウケることを意識したプランニングとなっています。
設備仕様としてはディスポーザー、食洗機、キッチン・洗面天板クォーツストーン、浴室ダウンライト、ミストサウナ、手洗いカウンター&ローシルエットトイレ、ゼッチ基準、可動式ルーバー面格子(レジデンス棟)、玄関前個別宅配ボックスなどなど単価帯からすれば当然ではありますがそれなりのレベルに仕上げてきています。
構造は二重床・二重天井、基本天井高はタワー棟が2600mm、レジデンス棟が2450mmです。
プレミアムは基本天井高2700mm、リビング天カセ、玄関前カメラ付きインターホン(非プレミアムは玄関前カメラなしです…毎度お馴染みの地所レジさん…)などスペックアップしますが坪単価1000万円超えでチャレンジするならもっと感動ポイントが欲しかったところではありますね…(もう少し天井高を頑張るとかロスナイ入れるとか)
周辺相場を確認しましょう!
■プラウドシティ赤羽
2011年築 赤羽駅徒歩4分
新築時の坪単価約265万円
現在の坪単価約500万円
動き一例
約58㎡
新築時4200万円台
中古時7900万円台
■プラウドシティ池袋本町
2011年築 板橋駅徒歩2分
新築時の坪単価約255万円
現在の坪単価約600万円
動き一例
約75㎡
新築時6000万円台
中古時15300万円台
■ザ・パークハウス赤羽フロント
2023年築 赤羽駅徒歩3分
新築時の坪単価約395万円
現在の坪単価約515万円
動き一例
約37㎡
新築時3800万円台
中古時5900万円台
■ザ・タワー十条
2024年築 十条駅徒歩1分
新築時の坪単価約515万円
現在の坪単価約565万円
約58㎡
新築時8700万円台
中古時9900万円台
約68㎡
新築時9500万円台
中古時12000万円台
上記相場からザ・パークハウス 赤羽台タワー&レジデンスが今時点で築10年だった場合の価値を算出すると
T65B 3LDK 68.56㎡ 13階 15000万円~15999万円 → 13800万円(築10年と想定)
となります。
あくまで今の相場での算出のため参考までにお願いいたします。
駐車場は…コーチエントランス完備の地下です!!
バス通り側から擁壁の間を通る動線…便利ですしテンション高りますよね…
平置5台、タワーパーキング94台、機械式68台、設置率は約30%です。
~駐車場サイズ~
平置:全長5300mm×全幅1900mm~2100mm×全高3200mm
機械式:全長5050mm×全幅1850mm×全高1800mm~1900mm×重量2000kg
タワーパーキング:全長5300mm×全幅2050mm×全高1550mm~2050mm×重量2500kg
機械式のサイズが厳しいですね…全幅1850mm×重量2000kgは選べる車がグッと減ってしまいます。
タワー棟のサイズは良くある感じなので違和感ないでしょう。
駐輪場はウォークスルーエレベーター2基ありの1階と地下階の屋内、設置率は約148%、1LDKもあるとはいえ2台マストの方は注意が必要(足元の公共駐輪場に止める等)です。
管理費などのランニングコストは未定でした。
コンシェルジュサービスはないようですが24時間有人管理、下駄ものありとなればけっこう重たそうですよね…発表が怖いです…苦笑
タワー棟のエレベータは17階までの低層用(分速120m)が3基、17階から29階までの高層用(分速120m)が3基、各階ごみ回収時などにも利用する非常用(分速180m)が1基、レジデンス棟は2基(分速60m)です。
タワマンにしては背が低く、かつ1基あたりの戸数が多くないとはいえ高層用で分速120mは遅いですね…
周辺分譲マンションの維持費を確認しましょう!
■プラウドシティ赤羽 総戸数285戸 管理費㎡単価月額約264円
■プラウドシティ池袋本町 総戸数785戸 管理費㎡単価月額約231円
■ザ・パークハウス赤羽フロント 総戸数70戸 管理費㎡単価月額約347円
■ザ・タワー十条 総戸数578戸 管理費㎡単価月額約359円
【住むレーション】
[上野東京ライン]
赤羽 8:00発
浦和 8:09着
さいたま新都心 8:13着
大宮 8:16着
赤羽 8:05発
尾久 8:10着
上野 8:16着
東京 8:22着
新橋 8:27着
品川 8:33着
[京浜東北線]
赤羽 8:00発
川口 8:03着
西川口 8:05着
蕨 8:08着
南浦和 8:12着
赤羽 8:02発
東十条 8:05着
王子 8:08着
上中里 8:10着
田端 8:13着
西日暮里 8:15着
日暮里 8:17着
鶯谷 8:19着
上野 8:21着
御徒町 8:23着
秋葉原 8:25着
神田 8:27着
東京 8:30着
有楽町 8:32着
新橋 8:34着
浜松町 8:37着
田町 8:39着
高輪ゲートウェイ 8:42着
[湘南新宿ライン]
赤羽 7:54発
池袋 8:05着
新宿 8:11着
渋谷 8:17着
恵比寿 8:19着
大崎 8:23着
武蔵小杉 8:34着
横浜 8:46着
[埼京線]
赤羽 7:58発
戸田公園 8:02着
武蔵浦和 8:08着
中浦和 8:10着
南与野 8:12着
与野本町 8:14着
北与野 8:16着
大宮 8:20着
赤羽 8:01発
十条 8:03着
板橋 8:06着
池袋 8:10着
新宿 8:16着
渋谷 8:21着
恵比寿 8:24着
大崎 8:28着
[埼玉高速鉄道・南北線]
赤羽岩淵 8:06発
川口元郷 8:08着
南鳩ヶ谷 8:11着
鳩ヶ谷 8:13着
新井宿 8:16着
戸塚安行 8:19着
東川口 8:22着
浦和美園 8:25着
赤羽岩淵 8:02発
志茂 8:04着
王子神谷 8:06着
王子 8:09着
西ヶ原 8:11着
駒込 8:14着
本駒込 8:16着
東大前 8:18着
後楽園 8:21着
飯田橋 8:24着
市ヶ谷 8:27着
四ツ谷 8:29着
永田町 8:32着
溜池山王 8:34着
六本木一丁目 8:37着
麻布十番 8:40着
白金高輪 8:43着
白金台 8:45着
目黒 8:48着
[空港リムジンバス]
赤羽駅 6:25発 ※東本通りに停留所があるため少し歩きます
王子駅 6:45発
羽田空港第2ターミナル 7:28着
羽田空港第1ターミナル 7:33着
羽田空港第3ターミナル 7:40着
満員電車が苦手な方には合わない駅ですが山手線の西側と東側どちらへもダイレクトアクセスができますから大変便利ですね。
『マンションにこれだけの価格支払って満員電車は嫌だよ…』となってしまう方を除けばかなりのかなりウケが良いことでしょう。
まだ時間はかかりますが羽田空港アクセス線が開通すると恩恵を受けられるであろうことも大きな楽しみですよね!
路線バスも充実しているため多方面へアクセスできます。
首都高5号線の板橋本町出入口まで5キロ弱と少し距離はありますが赤羽駅の西側は滅多なことでは渋滞しない道ばかりのため時間が読みやすいのが良いですね。(成増駅と行き来する路線バスなども定時運行率が高い)
ザ・パークハウス赤羽台タワー&レジデンスのマンションギャラリーは東池袋の旧アムラックス!!(以前プラウドギャラリーにもなっていたところ)
三菱地所が取得したビルとはいえ赤羽の一等地物件なのにモデルを池袋にするとはw
※予約制です pic.twitter.com/BatCGb2Q1P
— マンションマニア (@mansionmania) January 12, 2026
赤羽物件なのにモデルルームが池袋にあるせいでゲーセンで散財したぞ!!
でも東京レジャーランドでぽぽまるずのうさぎ。とくま。さんお迎えできたので良し! pic.twitter.com/AgiOWyNIfG
— マンションマニア (@mansionmania) January 12, 2026
【総評】
すげぇよ。これはすごい。もうね。ロケーションが良すぎて…
最終的な販売価格がどう着地するかで評価は変わるっちゃ変わるのですが変わらないこととしては『気に入っていて買える状況にあるなら買うべき物件』ということ。
だってエリア№1マンションなんですもの。
今後東口側で数本高層住宅が建つことになりそう(すでに着工しているのは旧ダイエー跡地の野村不動産、西友跡地の住友不動産)ですがキャラクターが異なりすぎます。
となればいくらで買おうが満足度で裏切られることはないでしょう。
5年、10年、15年、20年…どんなに時が経とうと今作を超えるロケーションの赤羽高台物件は出てこないわけですから。
もしもいつかイトーヨーカドーなど駅前の商業施設がマンションになったとしても高台ではないですから『もう二度と出逢えない』条件なのです。これだけ駅に近く赤羽の高台…
あのゲートデザイン…そこから横に伸びるレジデンス棟、縦に伸びるタワー棟…カッコ良すぎます…
気に入っていて3年待てるのに買わないという方、その理由を逆に教えていただきたいくらいです…買わなきゃダメですよ。ファーストオーナーになるチャンスを逃してはいけません。
もちろんリセールバリューを強く気にされる方(というより期待しすぎる方)は買う価格(正式価格)に注意が必要でしょう。
そこは難しく考えずに『赤羽が好きだから赤羽で一番のマンションを買う』『赤羽に住むと通勤便が良いから買う』『自分たちの予算の中ではベスト物件だから買う』とシンプルな考えで検討すべきでしょう。
関連記事
ザ・パークハウス 赤羽台タワー&レジデンス 公式HPオープン 駅近なのに高台
























コメントを残す