パークタワー品川天王洲、第二期の販売がスタートしています!
■第2期販売概要
受付期間:2025年11月21日(金)~2025年11月23日(日)
受付時間:10:00~17:00
抽選日:2025年11月24日(月)
抽選時間:11:00
販売戸数:67戸
販売価格:8830万円~38980万円
最多販売価格帯:18800万円台(3戸)※100万円単位
間取り:1LDK(22戸)・2LDK(23戸)・3LDK(22戸)
専有面積:47.88㎡(12戸)~102.48㎡(2戸)
管理費:月額23510円~50320円
修繕積立金:月額11780円~25210円
巷ではパークコート麻布十番東京ザタワーが話題ですね!
パークコート麻布十番東京ザタワーか、それ以外か(ローランド風)というくらいスペシャルな物件であることは確かですが買えなければ意味がありません。
超富裕層たちによる札束の殴り合いはほっといて(ほっとけないよ~♪という気持ちは分かりますが)手堅くポジションセットすべきである読者様も多いはずです。
そんな中で比較的倍率が低い中で満足度の高さにも期待がしやすい新築タワマンがパークタワー品川天王洲です。
含み益10億円超のマンション投資家、お刺身おじさんも第一期でシレっと購入。
第一期の際にもお伝えしましたが天王洲の相場では考えすぎないほうが良い物件です。
話題性はそこまでないのですが完成すれば天王洲の相場を引っ張るであろうエリア内では評価が高いトップランナー物件になる可能性が高いと考えています。
第二期ではパワーシングルにもおすすめしやすい1LDKの供給もあります!
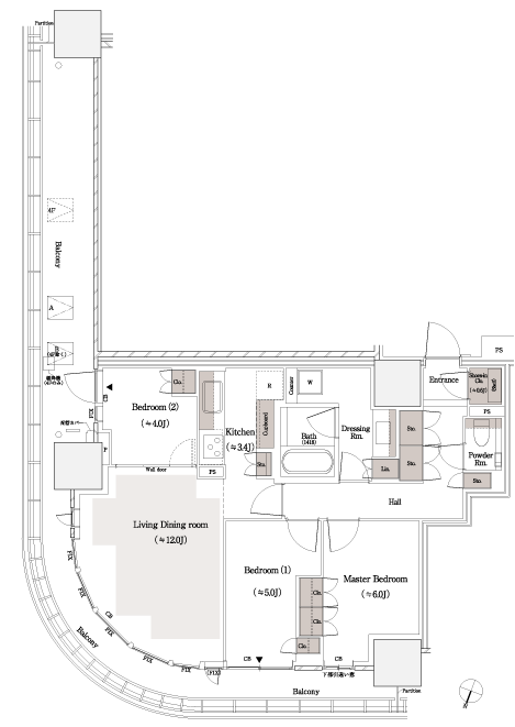
47-Ie 1LDK 47.88㎡
10階 8930万円 坪単価616万円
11階 8980万円 坪単価620万円
12階 9030万円 坪単価623万円
20階 9530万円 坪単価658万円
23階 9680万円 坪単価668万円
24階 9730万円 坪単価671万円
25階 9780万円 坪単価675万円
26階 9830万円 坪単価678万円
27階 9880万円 坪単価682万円
28階 9930万円 坪単価685万円
29階 9980万円 坪単価689万円
58-Gs 2LDK 58.64㎡
8階 12140万円 坪単価684万円
11階 12320万円 坪単価694万円
12階 12380万円 坪単価697万円
20階 12870万円 坪単価725万円
21階 12930万円 坪単価728万円
22階 12990万円 坪単価732万円
23階 13050万円 坪単価735万円
24階 13100万円 坪単価738万円
25階 13160万円 坪単価741万円
26階 13220万円 坪単価745万円
27階 13280万円 坪単価748万円
28階 13330万円 坪単価751万円
29階 13380万円 坪単価754万円
65-Bn 2LDK 65.00㎡
21階 16280万円 坪単価828万円
22階 16340万円 坪単価831万円
23階 16400万円 坪単価834万円
24階 16460万円 坪単価837万円
25階 16520万円 坪単価840万円
26階 16580万円 坪単価843万円
27階 16640万円 坪単価846万円
28階 16700万円 坪単価849万円
29階 16780万円 坪単価853万円
65-Dw 2LDK 65.49㎡
6階 14260万円 坪単価719万円
13階 14480万円 坪単価730万円
14階 14560万円 坪単価735万円
66-Fs 2LDK 66.23㎡
5階 14680万円 坪単価732万円
6階 14780万円 坪単価737万円
13階 15380万円 坪単価767万円
14階 15460万円 坪単価771万円
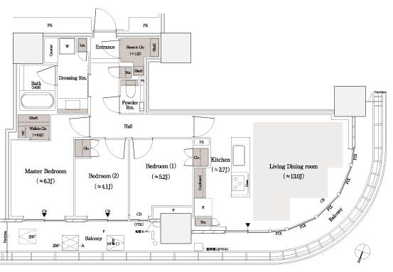
75-Ane 3LDK 75.74㎡
5階 16980万円 坪単価741万円
6階 17120万円 坪単価747万円
10階 17990万円 坪単価785万円
11階 18070万円 坪単価788万円
12階 18140万円 坪単価791万円
76-Ps 3LDK 76.39㎡
31階 22480万円 坪単価972万円
32階 22980万円 坪単価994万円
77-Esw 3LDK 77.29㎡
8階 18860万円 坪単価806万円
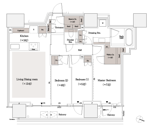
78-Cnw 3LDK 78.09㎡
5階 18980万円 坪単価803万円
6階 19180万円 坪単価811万円
13階 20780万円 坪単価879万円
14階 20980万円 坪単価888万円
80-Ln 3LDK 80.56㎡
31階 23480万円 坪単価963万円
32階 23980万円 坪単価984万円
85-PGe 3LDK 85.02㎡
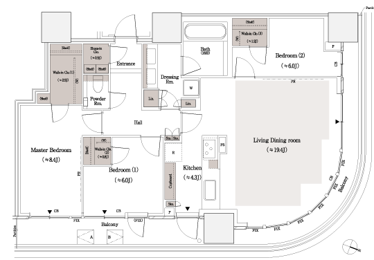
102-PAne 3LDK 102.48㎡
34階 38980万円 坪単価1257万円
平均坪単価は約790万円です。
繰り返しになりますが比較的低倍率で購入できる新築タワマンとしてはとても良い物件だと思いますよ!
尚、今期購入者の引き渡し予定時期は2028年4月下旬となります。(これまでの購入者は2027年9月下旬)
関連記事
パークタワー品川天王洲 第一期の価格と間取り 平均坪単価約840万円
記事が参考になったら資料請求は下記からお願いします!
資料請求はこちらから-
気になったらすぐに資料請求するのがおすすめ!ライバルは多いものです!

Powerd by LIFULL HOME’S




















コメントを残す