今回ご紹介するのはブリリアタワー浅草柳橋です!
[物件概要]
売主:日鉄興和不動産 東京建物
設計:フジタ・IAO竹田設計
デザイン監修:UDS(内装)
施工:フジタ
価格:未定
専有面積:33.15㎡~104.30㎡(一部専有トランクルーム面積1.22㎡含む)
総戸数:267戸(販売戸数149戸、地権者住戸118戸)
規模:地上34階地下1階建て
交通:都営浅草線「浅草橋」駅徒歩5分 JR総武緩行線「浅草橋」駅徒歩6分
所在地:東京都台東区柳橋二丁目4番2(地番)
竣工予定:2027年4月中旬
引き渡し予定:2027年8月下旬
駐車場:72台(エレベーターパーキング※電気自動車対応10台含む:70台、来客用兼管理用平置※電気自動車対応:2台)
駐輪場:387台(上部:垂直ラック式:72台、下部:スライドラック式:141台、スライドラック式※3人乗り対応38台含む:78台、平置ラック式:87台、子供用平置式:9台)
バイク置場:2台
ミニバイク置場:12台
地図はこちらです↓
都営浅草線と総武緩行線の浅草橋駅から隅田川方面へ徒歩5~6分、その隅田川沿いに位置しています。
同エリアにおいて物件名に旧町名の浅草柳橋を冠するのは珍しいですね。(分譲だとスカイコート浅草柳橋、柳橋リバーサイドマンションなど複数物件ありますが近年は浅草橋や蔵前を冠することが多かった)
柳橋〜!! pic.twitter.com/0QLHc4m6rC
— マンションマニア (@mansionmania) March 6, 2026
浅草柳橋、旧町名由来 pic.twitter.com/3TZ51EbxZJ
— マンションマニア (@mansionmania) March 6, 2026
今作の影響で柳橋の知名度が高くなることでしょう。
主幹事は日鉄興和不動産ですが商品設計が東京建物のためブリリア冠になったとのことです。
道中に関しては何か特別な面白さがあるわけではないものの線路沿いもしくは柳橋中央通りを経由する分かりやすい道のりです。
台東区の浅草・蔵前・浅草橋、神田川を越えて中央区の東日本橋(馬喰町・馬喰横山)エリアで見れば分譲マンションは点在していますし、リバーサイドのマンションもあります。
グランドメゾン浅草花川戸
2022年築 浅草駅徒歩4分
新築時の坪単価約510万円
現在の坪単価約850万円動き一例
約50㎡
新築時7900万円台
中古時13200万円台 pic.twitter.com/aZer1gVnGP— マンションマニア (@mansionmania) March 6, 2026
ザ・パークハウス東日本橋
2017年築 東日本橋駅徒歩4分
新築時の坪単価約405万円
現在の坪単価約840万円動き一例
約70㎡
新築時8500万円台
中古時18000万円台 pic.twitter.com/S3bbYnc8E5— マンションマニア (@mansionmania) March 6, 2026
ただ、エリア柄いわゆる大規模マンションというのは少なく、ザ・パークハウス浅草橋タワーレジデンスでも20階建ての総戸数102戸、大江戸タワーレジデンスでも26階建ての総戸数124戸ですから今作の34階建ての総戸数267戸というのはとんでもなく希少性が高いということになります。
さらに今回は…(;゚д゚)ゴクリ…
東京都のスーパー堤防整備事業との一体開発により地盤をかさ上げ、隅田川へ向けて傾斜を設けることで東側の間口全体が隅田川テラスへ直結することになります。(今作より遅れて完成になるかと思われます)
これにより安全性も高まりますし、当然ではありますが電気室を2階に設置するなどできる限りの水害対策はなされています。
足元には地域貢献施設も設けられます。
花火大会の日にどのようにして人が立ち入らないようにするのかは課題となりますね。(向かいのテラス自体が立ち入り禁止ですが今作敷地内の取り扱いをどうする?)
とても楽しみなライオン本社跡地の高層マンション(26階建て、高さ約92m、総戸数約480戸の計画)も同様にスーパー堤防との一体整備により隅田川へ繋げるようですが歩道を挟むため今作ほどの直結感はなさそうですね。(デッキはライオン本社跡地のほうが広そうです)
東京都の事業がゆえに今作の公式HPではあまり強く謳われていないことではあるものの、ものすごくストロングポイントになってきますよね~。これはすごい。
日常の買い物はリコスが徒歩2分、マルエツプチが徒歩5分、肉のハナマサが徒歩9分、スーパーヤマザキとライフが徒歩13分と選択肢はありますね。
カフェ巡りが好きな方、呑むのが好きな方はもちろんのこと私のようなチェーン店メインでも複数の牛丼店がありますし、秋葉原も散歩がてら行き来できる距離感(徒歩20分前後)ですから多様な価値観に対応できる街ですね。
鳥豊のきじ弁当!!美味でした!!
柳ばし鳥豊のきじ弁当!
美味です!! pic.twitter.com/sK6QohnsfD
— マンションマニア (@mansionmania) March 6, 2026
通学校は台東育英小学校で徒歩8分、浅草中学校で徒歩3分です。
建設地は整った土地形状で間口も広くとれています。
従前も住宅(住宅91戸とその他事務所等)で建て替え事業(2010年から検討開始)、そのため総戸数267戸に対して販売戸数は149戸のみです。
従前は横に長い建物形状でしたが今作は総合設計制度を活用して34階建て(約120m)とエリア内ではかなり背が高くなるため目立つ存在となることは間違いありません。(いわゆるランドマークマンション)
足元の緑豊かな公開空地の先にある二層吹き抜けの風除室(メインエントランス)は奥まらせることで軒裏木調の大庇を強調、ガラス面の先にあえて見せつけるエスカレーター(上り下り2基)がありますからとくに夜はかなり映えますね。
石のオブジェと大庇と連動した木調デザインがかっこいい風除室(メインエントランス)からエスカレーターを上り2階のメインラウンジへ辿り着くと大窓から自然と川を望むことができます。
もちろんエレベーターで1階へダイレクトに繋がっていますし(乗り換えマストではない)、メールコーナーも1階にあるわけですがあえてラウンジを通りたくなることでしょう。
眺望としては低層階なら東方位(南東向き)のほうが今作らしさを感じることができます。
北東方面にはスカイツリーもしっかりと見えてきますし、南東方面の川と都心のビル群どちらも望める眺望はかなりのかなりスペシャルでしょう。
多くの角住戸が『リバービュー&都心ビル群ビュー』や『リバービュー&スカイツリービュー(隅田川の花火も!!)』という最高の組み合わせになるためそりゃ手が届くなら角が良いですよね…
ただ、エリア内では背が高い建物ですが西方位(北西向き)も中層階以上になるとグッと視界抜けして東京ドーム方面の高層ビル群も見えるため夜景も楽しめます。
予算次第ではありますが選べる内は南側のザ・パークハウス浅草橋タワーレジデンスや西側のプラウドフラット浅草橋IIと被らない部屋を選びたいところです。
共用施設は2階にワークラウンジ&カンファレンスルーム、17階にスカイビューラウンジ、屋上にスカイデッキが設けられます。
スカイビューラウンジとスカイデッキからはスカイツリーを望めるスペシャルな眺望であることはもちろんのこと2階のワークラウンジ&カンファレンスルームも川方面に窓があるため閉鎖的な空間でないのが嬉しいですね。間口が広いことを活かして共用施設を良い位置に設けることができています。
外観デザインは基壇部に江戸を感じさせる木調の縦格子を配し、そこからタワーパーキング部分を活かして壁面を奥まらせる(バルコニーが出っ張る)ことで空に伸びる演出、頭頂部は縦ラインを大きく突き出したところにフレームをクロスさせるなど見上げられることも多ければ遠くから見られることも多い中でしっかりと凝ったものとしてくれています。
バルコニー隣戸境もスラブtoスラブです。
当然ながら内廊下設計、住戸玄関部分を奥まらせて手前部分を木調パネルで囲うなど雰囲気も良さそうです。
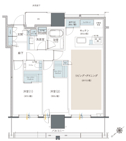
予定価格と間取りの一部を共有いたします!
[スーペリア]
56Q 2LDK 56.43㎡
62R 2LDK 62.65㎡
72P1 3LDK 72.89㎡ ←マンションマニア狙い目住戸!
[プレミアム]
P-72B 2LDK 72.43㎡
P-77T 3LDK 77.95㎡
P-79O 3LDK 79.72㎡
P-103Y 3LDK 103.63㎡
P-103C 3LDK 103.92㎡
P-104A 3LDK 104.30㎡
条件良い部屋からの供給予定(と言っても南東角と北東角上層階の多くは地権者さんが取得済みですが…)で平均坪単価は約1050万円です。
ぱっと見では全体的に間取り形状が良いもののしっかり見ると気になることもありますね。
例えば72P1、リビングの扉位置が引っ込んでいる中でリビング畳数が11畳のため高単価帯マンションの角住戸としては物足りなさを感じてしまいそうです。
専有面積にゆとりがある中で廊下が長いのは良いのですがそうでない中で廊下が長いとダメージが大きいですからね…
また、プレミアム住戸のほうがリビング窓スパンが短いパターンもある点は注意が必要です。
眺望も売りのマンションだからこそ窓の豊かさを意識して部屋を選ぶことで期待を超えた満足度となりやすいことでしょう。
設備仕様としてはディスポーザー、食洗機、食器棚、水回り天板シーザーストーン、手洗いカウンター&ローシルエットトイレ、玄関電池錠、玄関前カメラ付きインターホン、ZEH(ゼッチ)基準を満たしている(総武線の音対策も兼ねて二重窓)など単価帯なりにしっかりとしています。(1LDKはトイレがタンク隠しになるなど一部仕様が異なります)
プレミアムになると深型食洗機、水回り天板のシーザーストーンがグレードアップ、食器棚吊り戸下照明、ミストサウナ、リビング壁掛けエアコン標準装備などさらにスペックが高くなります。
ただ、目が肥えた方だと『この単価帯で天カセじゃないの~天井高もっと高くして~』など金額が高いからこそ気にしてしまう方も少なくないでしょう。
とはいえロケーションで勝負できるマンションの割には頑張っていると思います。
構造は二重床・二重天井、基本天井高は2540mm(上層2層は2640mm)、安心の免震です。
基本天井高も目が肥えている方だと気になってしまうでしょうか。
周辺相場を確認しましょう!
■ザ・パークハウス浅草橋タワーレジデンス
2013年築 浅草橋駅徒歩4分
新築時の坪単価約265万円
直近売り出し事例なし
■ザ・パークハウス東日本橋
2017年築 東日本橋駅徒歩4分
新築時の坪単価約405万円
現在の坪単価約840万円
動き一例
約70㎡
新築時8500万円台
中古時18000万円台
■グランドメゾン浅草花川戸
2022年築 浅草駅徒歩4分
新築時の坪単価約510万円
現在の坪単価約850万円
動き一例
約50㎡
新築時7900万円台
中古時13200万円台
上記相場からブリリアタワー浅草柳橋が今時点で築10年だった場合の価値を算出すると
56Q 2LDK 56.43㎡ 17階 15000万円~15999万円 → 13800万円(築10年と想定)
となります。
あくまで今の相場での算出のため参考までにお願いいたします。
駐車場は70台シェアのタワーパーキングが1基、設置率は約26%です。作業中雨に濡れることがない屋内でちょっとした待合スペースもあります。
プレミアムや広めの部屋に新築時の優先権が付くためマストの方はそのような部屋を選んだほうが安心でしょう。
~パレットサイズ~
全長5300mm×全幅2050mm×全高1550mm/1800mm/2050mm×重量2500kg 月額36000円~49000円(予定)
駐輪場は専用のウォークスルーエレベーター2基を利用、3階と4階の屋内で設置率約145%です。
1LDKもあるため希望すれば2台確保できる確率はそこそこ高いでしょう。
管理費は㎡単価月額約423円、日勤管理でコンシェルジュサービスもありませんがディスポーザーあり、内廊下で各階ごみ置場もあるなどコストパフォーマンスが良いですね。
ゲストルームやジムはないもののそれは総戸数からすれば違和感はないですし今の時代の新築タワーマンションとしてはとても現実的な単価設定という印象を受けます。
もちろん坪単価1000万円クラスの物件としては共用施設の物足りなさはありますが、それを求めるなら東京湾岸エリアで買えば良いわけでこのエリアがお好きな方は特別気にならないでしょう。
とはいえ坪1000万円を超えてくると天カセやさらなる天井の高さを求める声が出るのは当然でしょう。立地の希少性があるためこれ以上コストかけなくても売れ行きに大きな影響はないのでしょうけども…
エレベーターは17階までの低層用が2基、17階以上の高層用が2基、別途各階ごみ置場からの作業時にも利用される非常用が1基、公開空地の西側と東側を結ぶ用(グラウンドレベルが異なる)が1基、自転車置場用が2基設けられます。
もちろん各階ごみ置場もあります。
周辺分譲マンションの維持費を確認しましょう!
■ザ・パークハウス浅草橋タワーレジデンス 総戸数102戸 管理費㎡単価月額約280円
■ザ・パークハウス東日本橋 総戸数65戸 管理費㎡単価月額約239円
■グランドメゾン浅草花川戸 総戸数25戸 管理費㎡単価月額約489円
【住むレーション】
[総武緩行線]
浅草橋 8:02発
秋葉原 8:04着
御茶ノ水 8:07着
水道橋 8:09着
飯田橋 8:11着
市ヶ谷 8:13着
四ツ谷 8:15着
信濃町 8:17着
千駄ヶ谷 8:19着
代々木 8:21着
新宿 8:23着
[浅草線]
浅草橋 8:02発
蔵前 8:03着
浅草 8:04着
本所吾妻橋 8:06着
押上 8:08着
浅草橋 8:00発
東日本橋 8:01着
人形町 8:03着
日本橋 8:05着
宝町 8:07着
東銀座 8:09着
新橋 8:11着
大門 8:14着
三田 8:16着
泉岳寺 8:19着
品川 8:22着
都営浅草線にて羽田空港と成田空港どちらもダイレクトアクセスが可能なため仕事柄空港利用が多い方にとっても合ってきます。
電車利用が便利なのはもちろんのこと車での遠出も都心部での出入りだけでなく6号線と7号線の出入りもしやすいため便利ですね。
【総評】
現地周辺はリバーサイドのため落ち着いた雰囲気ですから浅草橋の良い意味での雑多な雰囲気を味わいつつも住環境としての魅力も大きく、都心までサクッとアクセスできる利便性、そこに希少性ある規模感あるタワーマンションも相まって『これまで浅草橋を検討していなかった人でさえ検討したくなる出物』と言っても違和感ないでしょう。
ただ、価格に関しては…お高いですね(笑)
予想は平均坪単価900万円台前半だったのですが第一期は平均坪単価1000万円を超えてきそうな予定価格です。(条件良い部屋からというのはありますが…)
ざっくり坪単価100万円ほどお高い印象を受けます。
とはいえこれがもし平均坪単価900万円台前半であったり、なんなら平均坪単価800万円前後だったとしたならば今度は買いたくても買えない状況(倍率が高くなる)になってしまう可能性が高くなります。
もしもこのままの価格で販売されるのであれば、おそらくですがとんでもない倍率にはならないはずです。
中広域検討者でお得感を求めつつ探されている方は見送るでしょうからね。
『高くてもいいから絶対住みたい!!ここじゃなきゃダメ!!』という方にとっては嬉しい価格設定、『浅草橋はあくまで検討候補の一つ!お得感強いマンションじゃなきゃ嫌だ!』という方には嬉しくない価格設定と言えるでしょう。
また、『蔵前・浅草橋エリアに住みたい』というだけであれば他にもっともっと現実的な価格帯で選択肢が充実しています。
ただ、今作の背の高さや総戸数などここまでスケールメリットがスペシャルなマンションはこのエリアに存在しないわけで『ブリリアタワー浅草柳橋に住みたい』という指名買いが発生することは間違いなく、だからこそ売り手側も弱気に出る理由がないのですよね。
この感じだと竣工前完売は狙ってなさそうです。(そもそも販売が遅かったため引き渡しまでの期間が短い)
中のことはブラックボックスなので分かりませんのであくまでわたくしマンションマニアの勝手な想像でしかないのですが、おそらく上層部から『大抽選会になるような価格で販売することは許さないぞ』という圧がかかっている印象を受けます。
今後はそういった新築マンションが増えていくのではないでしょうか。(転売されるくらいなら分かる人に高値で買ってもらったほうが良いという考え)
いずれにしてもスペシャルなロケーションのスペシャルなタワーマンションなわけで値上がるとか値下がるとかはさておき、満足度で裏切られることはないどころか住んでから満足度が100点を大きく超えることが容易に想像できるわけで住みたいなら買うべきでしょうね。
『この物件を所有することで人生の満足度が高くなる』と確信できるなら迷わずGOすべきでしょう。
エリア内での絶対的王者、いわゆるエリア№1マンションだから許される考え方ですよね。
しかしまぁ…この単価帯になると二次取得者層(買い替え層)が主となるわけですが、その二次取得者層の多くに刺さらないと思うのですよね…
ロケーションが良いのは分かりますが間取りや商品力が二次取得者層からすると期待を超えてきてないでしょうから…
検討しているのは二次取得者層が大多数だと思うのですが、そこに向けて評価されるものにしようという感じがしなかったです。(価格設定が商品力を追い越してしまっている印象)
販売戸数149戸という少なさだからこそなんとかなるという考えなのかもしれないですね。(問い合わせ数が多いので歩留まりが低くても完売できるという戦略?)
最終的な販売価格を調整して中広域検討者にもHITさせてくるのか、浅草橋愛が強い方だけをターゲットとしてそのままGOするのか、そちらも注目ポイントですね!
関連記事
ブリリアタワー浅草柳橋 価格は?! 東商センタービルマンション建て替え事業




















コメントを残す