プレミストタワー船橋、いよいよ第一期の販売が近づいてきましたね!
まだ価格も維持費も予定の段階のため変更の可能性はあるのですが最終的なものは登録期間にならないと出せないということですので現段階での情報で語っていければと思います。
[物件概要]
売主:大和ハウス工業 東京建物 京成電鉄
施工:長谷工コーポレーション
価格:未定
専有面積:43.71㎡~134.02㎡
総戸数:677戸
規模:51階建て
交通:
JR総武快速線・総武緩行線・東武アーバンパークライン「船橋」駅徒歩2分
京成本線「京成船橋」駅徒歩4分
所在地:千葉県船橋市本町一丁目
竣工予定:2028年3月
引き渡し予定:2028年3月
駐車場:200台(タワーパーキング)
駐輪場:679台
バイク置場:20台
地図はこちらです↓
ロケーションと共用空間に関してはこれまでの記事で語っているため軽く触れる程度にしますがいわゆる『エリア№1マンション』です。もっと言えば『千葉県№1マンション』でしょう。
北口側のプラウドタワー船橋もデッキ直結でスペシャルですし、イトーヨーカドー利用であればプラウドタワー船橋のほうが便利(目の前の地下駐車場出入口とイトーヨーカドーが繋がっている)ではあるもののプレミストタワー船橋のほうが規模感があり、シンプルに『中古市場であろうと船橋駅近辺で一番高値で動く物件』となるでしょうからエリア№1を謳うことに違和感はないでしょう。
プラウドタワー船橋、イトーヨーカドーの地下食料品売場で買い物した後に地下駐車場経由でエントランス前まで行けちゃうのも便利!
プレミストタワー船橋との築年数差や見た目の差は大きいですが次の出物がいくらになるのか楽しみ!!(直近の動きは坪単価約345万円) pic.twitter.com/jgnmXwJkOZ
— マンションマニア (@mansionmania) November 3, 2025
背の高さも千葉県最高層、初の50階建て超えとなります。アパホテル&リゾート(東京ベイ幕張)より背が高いです…すごい…
プレミストタワー船橋が位置するのは南口出てすぐのところ、2階部分のシャポー出入口とも直結するザ・駅前立地です。従前は西武百貨店でした。
悪天候時も快適ですし、足元には商業施設や地域貢献施設もできるため現在でもすでに便利すぎる船橋駅前がさらに便利になります。
その商業施設は売主の大和ハウスが企業を探してまるっと分譲する計画のようです。
例えばですがイオンが買うと建物全体がイオンスタイルみたくなり、その中に他テナントが入るようなイメージです。
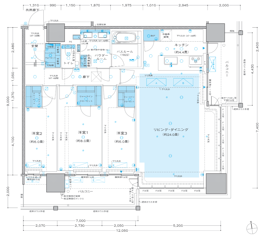
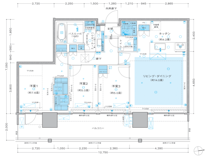
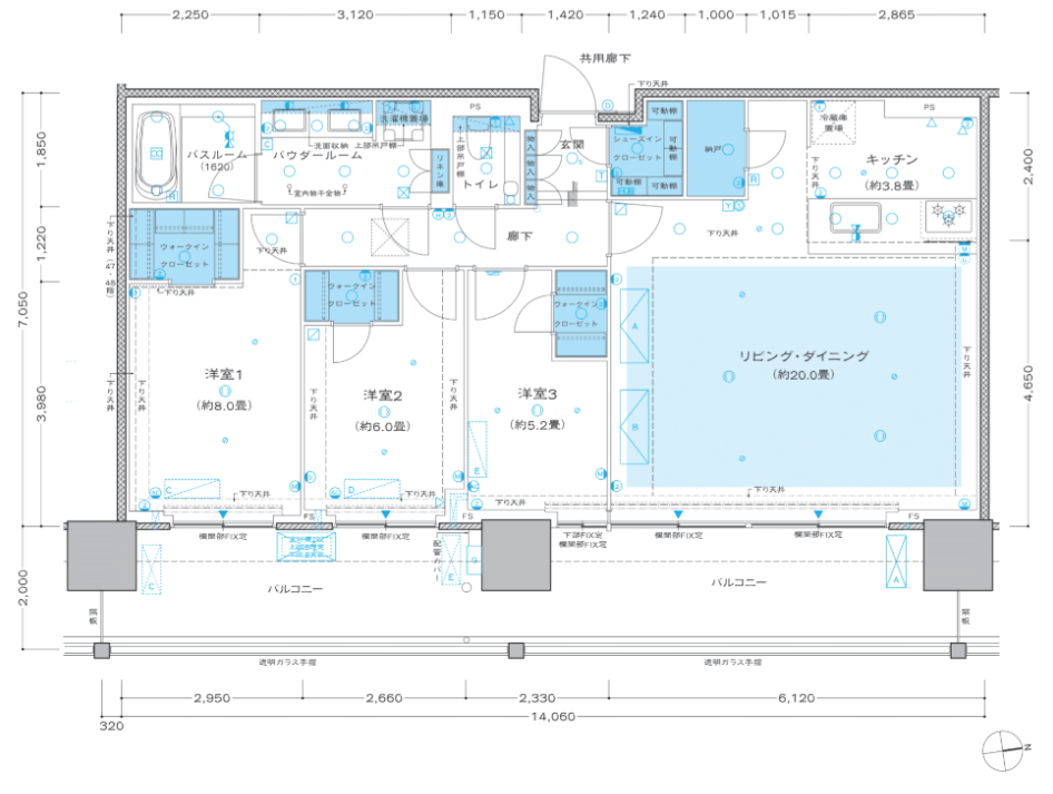
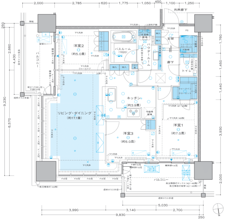
予定価格と間取りの一部を共有いたします!
【スーペリア 6~40階】
[南西角]
80E 3LDK 81.54㎡
20階 17300万円台 坪単価701万円
26階 18100万円台 坪単価733万円
30階 18500万円台 坪単価750万円
36階 19100万円台 坪単価774万円
[南中]
70A 3LDK 70.35㎡
20階 11300万円台 坪単価531万円
26階 11900万円台 坪単価559万円
30階 12300万円台 坪単価578万円
36階 12900万円台 坪単価606万円
75C 3LDK 76.23㎡
20階 13800万円台 坪単価598万円
26階 14400万円台 坪単価624万円
30階 14800万円台 坪単価641万円
36階 15400万円台 坪単価667万円
[南東角]
80C 3LDK 81.31㎡
20階 16100万円台 坪単価654万円
26階 16900万円台 坪単価687万円
30階 17300万円台 坪単価703万円
36階 17900万円台 坪単価727万円
[東中]
65E1 3LDK 68.98㎡
30階 11100万円台 坪単価532万円
36階 11400万円台 坪単価546万円
[北東角]
70F 3LDK 74.59㎡
20階 12300万円台 坪単価545万円
26階 12900万円台 坪単価571万円
30階 13300万円台 坪単価589万円
36階 13900万円台 坪単価616万円
[北中]
50B1 2LDK 50.18㎡
30階 7900万円台 坪単価520万円
36階 8200万円台 坪単価540万円
60A 2LDK 60.48㎡
30階 8900万円台 坪単価486万円
36階 9200万円台 坪単価502万円
65A 2LDK 67.07㎡
30階 9700万円台 坪単価478万円
36階 10000万円台 坪単価492万円
[北西角]
70E 3LDK 74.11㎡
20階 12600万円台 坪単価562万円
26階 13200万円台 坪単価588万円
30階 13600万円台 坪単価606万円
36階 14200万円台 坪単価633万円
[西中]
65B 3LDK 68.17㎡
30階 12100万円台 坪単価586万円
36階 12400万円台 坪単価601万円
65C 3LDK 68.29㎡
30階 12100万円台 坪単価585万円
36階 12400万円台 坪単価600万円
【アッパースイート 41階~48階】
[南西角]
95A 3LDK 97.36㎡
44階 30900万円台 坪単価1049万円
110B 3LDK 118.29㎡
[南中]
90A1 3LDK 92.52㎡
44階 20900万円台 坪単価746万円
90A2 3LDK 92.52㎡
100A 3LDK 108㎡
[南東角]
95B 3LDK 98.35㎡
44階 26400万円台 坪単価887万円
100B 3LDK 108.69㎡
[東中]
80A 3LDK 80.36㎡
44階 17800万円台 坪単価732万円
95C 3LDK 98.44㎡
[北東角]
80F 3LDK 83.91㎡
44階 19500万円台 坪単価768万円
110A 3LDK 110.82㎡
[北中]
70C 3LDK 72.76㎡
44階 13500万円台 坪単価613万円
75A1 3LDK 75.54㎡
44階 14500万円台 坪単価634万円
80B 3LDK 80.97㎡
80G1 3LDK 83.76㎡
80G2 3LDK 83.76㎡
[北西角]
85A 3LDK 86.63㎡
44階 20400万円台 坪単価778万円
95D 3LDK 98.45㎡
[西中]
70G 3LDK 74.82㎡
44階 16300万円台 坪単価720万円
80D 3LDK 81.31㎡
44階 18100万円台 坪単価735万円
85B 3LDK 87.77㎡
【トップスイート 49階~51階】
[南西角]
130A 3LDK 134.02㎡
[南中]
90A1 3LDK 92.52㎡
90A2 3LDK 92.52㎡
[南東角]
100B 3LDK 108.69㎡
[東中]
95C 3LDK 98.44㎡
[北東角]
110A 3LDK 110.82㎡
[北中]
80B 3LDK 80.97㎡
80G1 3LDK 83.76㎡
80G2 3LDK 83.76㎡
[北西角]
95D 3LDK 98.45㎡
[西中]
85B 3LDK 87.77㎡
平均坪単価はスーペリアのみだと600万円弱、全住戸合わせると700万円前後くらいになりそうでしょうか。
アンダーで販売している部屋はなく王様住戸含めて平等にチャンスがあります。
正式価格次第ではありますがエリア№1だけありお高いですね…(安く売ってくれるはずもないですが)
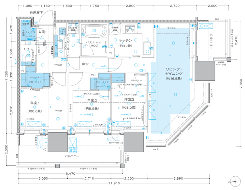
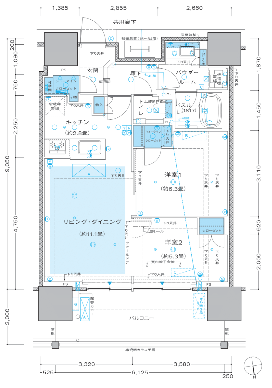
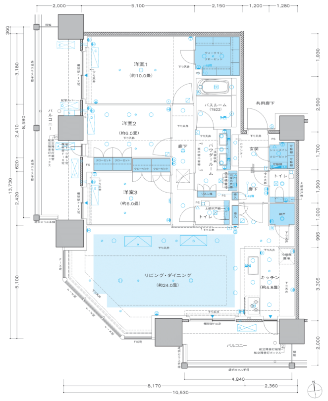
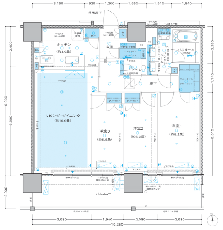
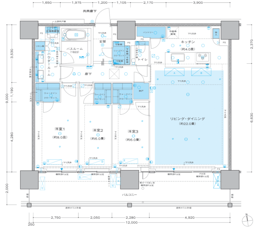
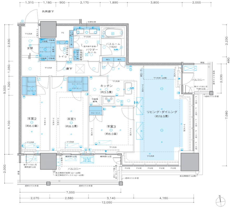
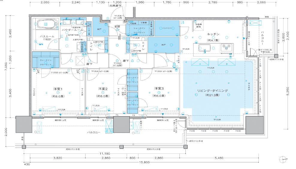
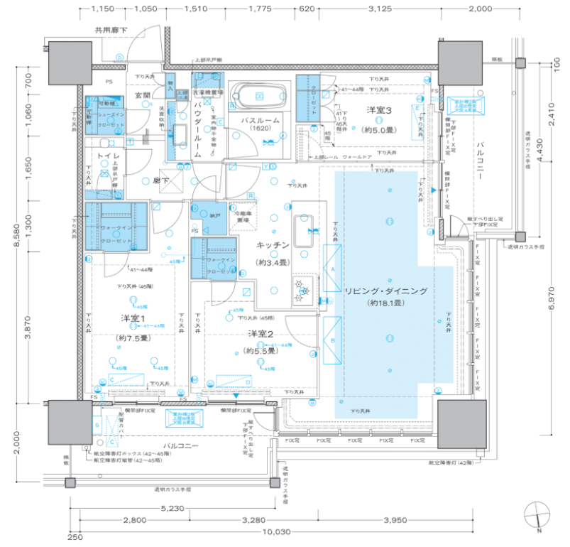
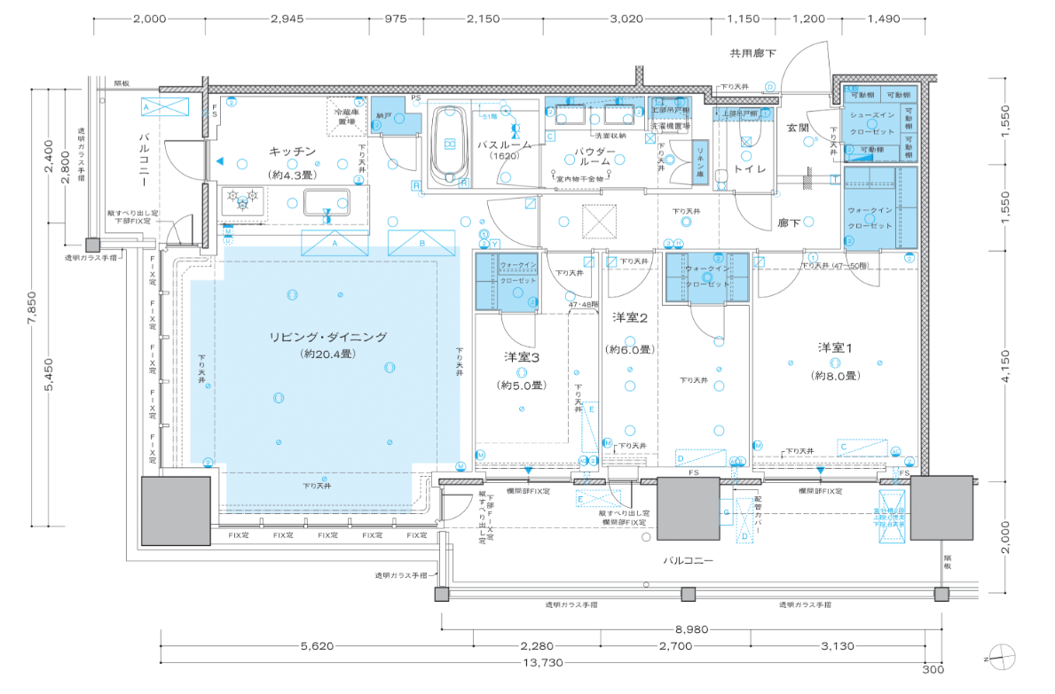
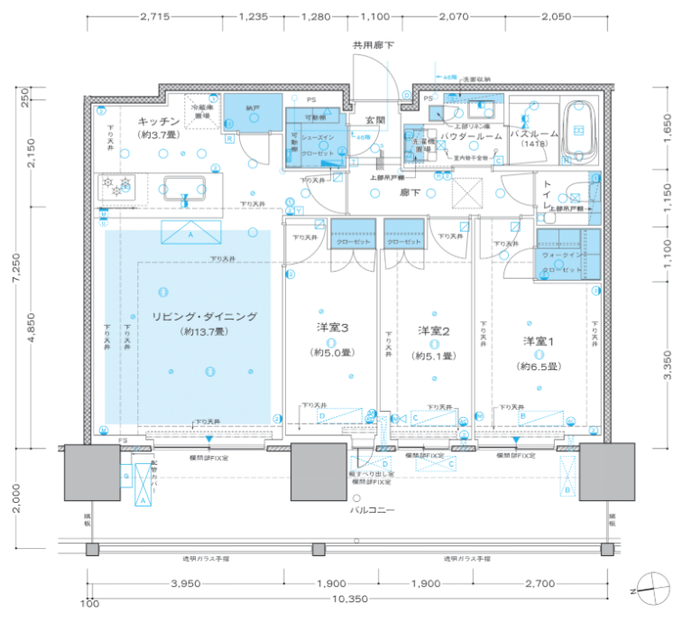
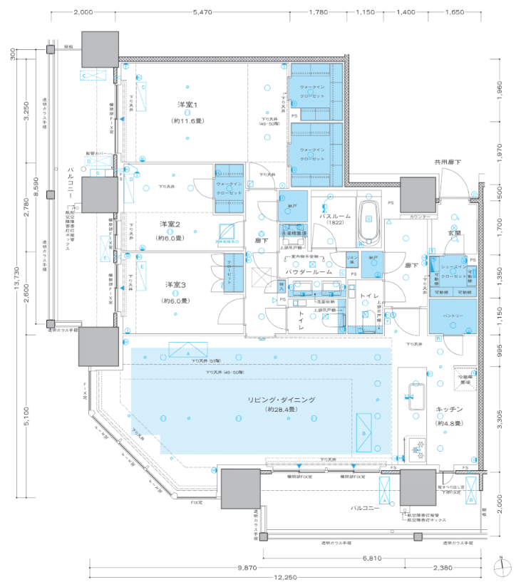
間取り選びに関しては柱がどこに位置しているのかも意識したいところです。
例えば50Eと50Fを比べて見ると50Fのほうがリビングの大事な部分に位置しているため窓面が少なくなってしまっています。
80㎡台前半でも浴室サイズ1620であるなど数平米の差ながら水回りのゆとりが変わってくるのも見逃せないポイントですね。
千葉県内では希少な内廊下でありながらもワイドスパンのプランも多いため行燈部屋率はそこまで高くありません。
眺望に関してですが個人的には南向きなら20階以上、できれば35階くらい(この辺りになると海も綺麗に見えてきそう)、東向きなら30階以上(北寄りなら尚良し)、西向きなら20階以上、北向きなら15階以上が良い印象を受けました。
北方面はヨーカドーとズレるため上層階ならカーテンいらずですね。何が見えるというわけではないですがかなりひらけてきます。
もちろん予算許すなら南が良いことは確かですが限られた予算の中でプレミストタワー船橋に住みたいという方にとって北向きの単価設定は嬉しいですね。
駐車場抽選のステージが同じならスーペリア(下位グレード)でも基本天井高2600mm、リビング天カセもあるしそっちでいいかなぁ〜と思いつつも全熱交換でなくなるのが痛いところ
でも船橋の一等地で坪500万円弱から買えるのは安くはないけど安いのよね
67.07m2
26階 9500万円台 坪単価468万円〜— マンションマニア (@mansionmania) January 26, 2026
もちろん予算伸びるなら同じ2LDKでもこちらがおすすめ!
2LDK 67.07m2
26階 9500万円台 坪単価468万円この広さがあればさらなる満足度に期待ができ、長く住めることでしょう!(2LDKとはいえ3人家族で住まう方も少なくはない面積帯です) pic.twitter.com/2RG6rpbWfC
— マンションマニア (@mansionmania) January 26, 2026
設備仕様はディスポーザー、食洗機、キッチン・洗面天板フィオレストーン、手洗いカウンター&ローシルエットトイレ、リビング天カセ、玄関電子錠、玄関前カメラ付きインターホンなど単価帯なりにしっかりしたものになっています。とくにリビング天カセは素晴らしいですね。1LDKであってもついてきます。全体的に良い意味で長谷工感はありません。
ただ、スーペリアに関してはインターホンが埋め込み型でなかったり、壁ポコありであったりと目が肥えた方からすると気になる部分も少なくないかと思います。とくに線路が近いですから全熱交換までとは言わないので壁ポコなしだと嬉しかったところではあります。
アッパースイート以上になると浴室のグレードが高くなったりと見た目の部分も変わりますし、全熱交換器による換気方式となるため快適性向上、フロアに宅配ボックスが設置されるなど利便性も向上します。
当然ながら二重床・二重天井、基本天井高はスーペリアが2600mm、アッパースイートは2900mm、トップスイートは3200mmです。
アッパースイート以上になるとサッシも高くなるのですが上部がFIXのなんちゃってハイサッシである点はとても残念でした。(モデルルームで多くの方がうぐぐ…となる部分でしょう)
せっかくならしっかりとしたハイサッシにしてくれると嬉しかったですね。
また、スーペリアはバルコニーの手摺が少ししか透けない乳白色のためリビング等で座って眺望を楽しむことができません…見た目としては良いですしプライバシー性も高くはなるのですが千葉県最高層物件であえてそれを採用するのはもったいないような…アッパースイートからは透明ガラス手摺になります。
構造が制振というのも少々気になりますね。(制振がダメというわけではなくこの規模感この価格帯なら免震が良かったと思う方が多いでしょう)
周辺相場を確認しましょう!
■プラウドタワー船橋
2005年築 船橋駅徒歩1分
新築時の坪単価約195万円
現在の坪単価約350万円
動き一例
約87㎡
新築時5800万円台
中古時9100万円台
■津田沼ザ・タワー
2020年築 津田沼駅徒歩4分
新築時の坪単価約265万円
現在の坪単価約420万円
動き一例
約41㎡
新築時2900万円台
中古時5100万円台
約55㎡
新築時4000万円台
中古時7200万円台
約76㎡
新築時5500万円台
中古時9900万円台
約76㎡
新築時6000万円台
中古時10300万円台
上記相場からプレミストタワー船橋が今時点で築10年だった場合の価値を算出すると
70A 3LDK 70.35㎡ 20階 11300万円台 → 10340万円(築10年と想定)
となります。
あくまで今の相場での算出のため参考までにお願いいたします。
駐車場は1階部分で出入りするタワーパーキングです。屋内のため雨でも濡れないですし待合室もあります。
住宅用が200台しかないので足りないでしょうね…
ただ、ノーマルルーフがなくミドルルーフ以上なのは嬉しいですね!
49階以上の角住戸12戸は専用使用権(売却時も承継できる)、アッパースイートの80㎡以上であれば新築時(ファーストオーナー)のみ希望すれば必ず確保可能です。
駐輪場はウォークスルーエレベーターありで4階と5階の屋内、1世帯1台は確保できます。
予定の管理費は㎡単価月額約467円、コスパの良い幕張ベイパークと比べると鬼高(総武線沿いだけに。笑)ですがブリリアタワー千葉も㎡400円を超えていましたから今の時代の新築タワマンとして考えればこのくらいにはなってしまうのでしょう。
ディスポーザー、内廊下、ゲストルームやパーティルームなどの共用施設、24時間有人管理&コンシェルジュサービス、各階ごみ置場など高い理由はあるため満足度で回収しやすいことでしょう。
珍しく駐車場部会として駐車場の維持費(地下に商業用の駐車場もあります)を駐車場を借りない方からも徴収します。
エレベーターは16階までの低層用が3基(分速90m)、17階から35階までの中層用が3基(分速180mm)、16階・35階から51階までの高層用(分速240mm)が3基です。住戸と共用施設が混在する6階はすべて止まります。
共用施設への乗り換え考慮のためなのか高層用エレベーターが16階に停止するのは区間急行みたいで高層フロアにお住いの方からするとちょいとモヤっとしそうですね。(それゆえ16階の人は便利)
エレベーターの箱が正方形なのは嬉しいですね!!(とても大事!!)
非常用エレベーターは1基(分速240m)のみのため業者さんのことを考えると物足りないですね。(各階ごみ置場からごみを回収して1階の集約するごみ置場への動線がエントランスホールを通らないといけなさそうなのが気になります…)
~維持費一例~
※すべて予定
70Aタイプ 70.35㎡の場合
全体管理費 9800円
住宅管理費 23000円
駐車場管理費 1900円
全体修繕積立金 2400円
住宅修繕積立金 15700円
駐車場修繕積立金 1900円
インターネット使用料 2530円
テブラコネクト使用料 550円
月額合計:57780円
千葉県内の新築分譲タワーマンションの維持費を確認しましょう!
■幕張ベイパーク ライズゲートタワー 総戸数768戸 管理費㎡単価月額約239円
■ブリリアタワー千葉 総戸数491戸 管理費㎡単価月額約424円
【住むレーション】
[総武快速線]
船橋 7:59発
市川 8:06着
新小岩 8:11着
錦糸町 8:17着
馬喰町 8:21着
新日本橋 8:23着
東京 8:26着
新橋 8:30着
品川 8:35着
船橋 7:33発
津田沼 7:38着
稲毛 7:45着
千葉 7:49着
都賀 7:57着
四街道 8:02着
物井 8:07着
佐倉 8:12着
酒々井 8:25着
成田 8:32着
空港第2ビル(成田第2・第3ターミナル) 8:45着
成田空港(成田第1ターミナル) 8:48着
[有料特急]
船橋 7:36発
錦糸町 7:50着
東京 7:59着
[総武緩行線(東西線直通)]
船橋 7:57発
西船橋 8:03着
原木中山 8:05着
妙典 8:08着
行徳 8:10着
南行徳 8:13着
浦安 8:15着
葛西 8:18着
西葛西 8:20着
南砂町 8:24着
東陽町 8:28着
木場 8:31着
門前仲町 8:33着
茅場町 8:37着
日本橋 8:39着
[東武アーバンパークライン]
船橋 7:17発(始発)
新鎌ヶ谷 7:27着
高柳 7:32着
柏 7:41着
[新鎌ヶ谷駅から京成スカイライナー]
新鎌ヶ谷 7:48発
空港第2ビル(成田第2・第3ターミナル) 8:07着
成田空港(成田第1ターミナル) 8:12着
[空港リムジンバス]
船橋駅 4:55発
JR西船橋駅 5:10発
羽田空港(第2) 5:52着
羽田空港(第1) 5:57着
羽田空港(第3) 6:04着
鉄道利便性はめちゃ高いですが駅周りの道路事情は今一つです…もちろん時間帯にもよりますが高速道路の出入口と駅前までの所要時間がとてもつらいエリアです…
カーライフを楽しみたい方は幕張ベイパークなど湾岸エリアでの購入をおすすめいたします。
津田沼駅から船橋駅までの道路事情が厳しいためいつも通り津田沼に車を止めて電車で移動(電車の5倍くらいかかる)
モリシアの駐車場も閉鎖してしまったため南口の時間貸し駐車場が枯渇中 pic.twitter.com/r3sGtd9l5V
— マンションマニア (@mansionmania) November 3, 2025
【総評】
地権者なしも影響してか『自分たちがやりたいことをしっかりと取り入れられた』という印象を受けました。
ロケーションの良さはもちろんのこと千葉県内のタワマンとしてはスペックが高いですから目が肥えた方にも評価されやすいことでしょう。
共用部もエレベーターホールひとつとってもコストをかけている(共用施設がある46階はとくにギラギラ!!)ことは確かであり期待して裏切られることはないでしょう。
当然ではありますが都心のタワマンと比べれば手が届きやすい価格帯ですから『新築のタワーマンションが欲しい』というような中広域検討者にとってもとっつきやすいですね。
『歪みある価格設定』を活かした住戸選びをしてみても面白いのではないでしょうか。(あくまで予定価格段階ではありますがお詳しい方であれば一目瞭然の歪みですよね…)
竣工すれば『あそこが船橋駅』と指さされるくらいめちゃくちゃ目立つことになることは間違いなく、そんなスペシャルなマンションのファーストオーナーになれるとなれば気に入ったなら買わない理由はないでしょう。替えが効かない№1マンションなのですから。
『エリア№1だから値上がる』という考えではなく『エリア№1だからこそ底堅さと満足度の高さに期待ができる』と考えられる方であれば『箱買い(プレミストタワー船橋だから船橋に住むことにした!という考え方)』もおすすめしやすいです!
私自身も『千葉セントラルタワーだから千葉に住むことにした!』というように箱先行型で選んだ内の一人ですが結果としてその街のこともとても好きになりました!
安心してください、内廊下です。 pic.twitter.com/IGlClpJHdS
— マンションマニア (@mansionmania) January 26, 2026
関連記事
津田沼ザ・タワー 価格と間取り 完売が近づいています お急ぎください!!
ブリリアタワー千葉 2025年8月時点の価格と間取り おすすめしやすい郊外新築タワマン
記事が参考になったら資料請求は下記からお願いします!
資料請求はこちらから-
気になったらすぐに資料請求するのがおすすめ!ライバルは多いものです!

Powerd by LIFULL HOME’S











































コメントを残す