今回ご紹介するのはプラウド府中晴見町です!
[物件概要]先着順と第2期2次
売主:野村不動産 東京建物 ワールドレジデンシャル
施工:東レ建設
価格:6748万円~ 11098万円
専有面積:61.12㎡~89.35㎡
総戸数:59戸
規模:7階建て
交通:京王線「府中」駅徒歩9分 JR武蔵野線「北府中」駅徒歩11分
所在地:東京都府中市晴見町一丁目
竣工:2025年5月
引き渡し予定:2025年12月中旬
管理費:月額21500円~30330円
修繕積立金:月額8270円~11940円
necoQシステム料金:月額1903円
スマートマンションサービス利用料:月額418円
駐車場:24台(機械式18台、平置5台、身障者優先平置1台) 月額19000円~25000円
駐輪場:118台(垂直二段式上段(普通)35台、スライド式下段(普通)25台、スライド式下段(大型)26台、傾斜ラック式上段(普通)16台、傾斜ラック式下段(普通)16台) 月額200円~500円
バイク置場:3台 月額3000円
地図はこちらです↓
新築マンション激戦区の府中エリア、あまりに物件数が多く府中駅直結のホテルケヤキゲート東京府中に宿泊して調査、それでは事足らず数日後に再度訪れたくらいです(笑)
訪れても訪れても新たな計画が出てくる同エリア(2025年2月に物件調査したのでそこまで時間は経過していないのですが…)、今後の注目物件としては駅近くで地所レジの19階建てマンションも出てきます。
府中エリアの新築マンション建設が盛んすぎる!(東京郊外の西側は全体的に多いです)
地所レジの(仮称)府中市宮西町1丁目計画も看板出ましたね! pic.twitter.com/ve2FqsxwBA
— マンションマニア (@mansionmania) September 2, 2025
ただ、改めて散策して感じたのは『駅近のマンションは眺望が大きく変わる不安があったり抜け感に期待ができる部屋が少ない』ということ。
もちろん一概には言えない(駅近でも眺望が抜ける部屋はあるがその割合が低くなるという意味)ですし、そこは求めるもの次第ではあるのですが駅近でないことを呑めるのであればヴェレーナグラン府中美好や今回ご紹介するプラウド府中晴見町は条件が良いですね。
ヴェレーナグラン府中美好は後日記事化できればと思いますが(※ヴェレーナグラン府中美好の記事を先に公開しました)まずは販売がスタートしているプラウド府中晴見町から情報共有いたします!
プラウド府中晴見町は新築マンション激戦区の府中エリアの中では供給が少ない晴見町アドレス、最寄り駅は京王線の府中駅で徒歩9分ですがJR武蔵野線の北府中駅も徒歩11分と2駅2路線を日常使いすることができます。
駅近での供給が多いため駅徒歩9分でさえも少々遠い部類にはなってしまうのですがけやき並木通りを北方向へ一直線、富士見通りにぶつかって左に折れたらすぐですから歩きやすく心地よい道のりです。
東芝駅もとい北府中駅へも富士見通りを進み一度右へ折れるだけですから分かりやすく歩きやすい道のりです。道中のUR府中グリーンハイツも敷地が緑もくもくですから雰囲気も良いですね。
総戸数59戸にしては珍しく野村不動産だけでなく東京建物とワールドレジデンシャルとのJVとなっています。
ただ、シェア率は野村不動産が約50%、東京建物が約30%、ワールドレジデンシャルが約20%ということで物件名は野村不動産のプラウドブランドのみですし管理等も野村不動産系列です。
日常の買い物は住宅街立地がゆえに府中駅付近へ出る必要はありますがけやき並木通り沿いのシェトスヤマザキが徒歩7分、府中駅付近のオオゼキ、京王ストア、成城石井、北野エース、ヤオコーなども徒歩10分前後ですから選択肢は充実しています。
住環境としては言わずもがな素晴らしすぎる府中ではありますが今作でウィークポイントになってくるのは小学校の学区ですね。
府中第九小学校で徒歩20分ほど、府中刑務所の北側ですからけっこう遠いですね…道は分かりやすいですし府中刑務所付近となればむしろ安全ではあるのですが学校までの距離を気にされる子育てファミリー層が多い中で大きなウィークポイントにはなってくるでしょう。
現地(2025年5月に竣工済み)は一部分が富士見通りに面しておりその奥に横に広がるいわゆる旗竿の土地形状です。従前は月極駐車場などがありました。
旗竿形状を活かした車路と一体のエントランスアプローチは袖壁と植栽で雰囲気が大変良いですし、そこから見えてくる重厚感ある建物に吸い込まれていくシーンは…オーナー満足度の高さが容易に想像できてしまいますね。
正面部分の横長ブラック系ルーバーに縦の木調ルーバーとグレー系の外壁で構成された基壇部に加えて頭頂部軒裏を木目調とするなどプラウドブランドらしくデザイン面に力を入れてくれています。『パッと見て高級マンションだと思わせる』外観デザインはさすが野村不動産ですね。
隣地では豪華な戸建(今作の旧地主さん邸)が建設されたことでそちらも相まって通りからかなり目立つ建物となっています。
エントランスホールはこじんまりとしているものの隣のラウンジと一体になっているため合わせれば戸数なりの広さにはなっています。
主開口部は東・南・西の設定、東側は旧野村不動産分譲のステイツ府中けやき通りが被ってしまうため今作内では単価抑え目の設定です。
西側は戸建と3階建ての都営住宅があるため低層階は被りが発生しますがそれを超える階だとUR府中グリーンハイツの木々を望むことができます。
南側はアプローチとその横の戸建、その先の富士見通りを超えたところは農業高校のグラウンドになるため日当たり抜群、視界抜けも良好です。
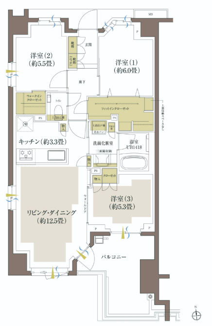
価格と間取りの一部を共有いたします!
Ar 3LDK 84.48㎡
Ag 4LDK 91.86㎡
1階 9898万円 坪単価356万円
B 3LDK 71.53㎡
D 2LDK 61.12㎡
4階 6998万円 坪単価378万円
5階 7098万円 坪単価383万円
Dr 4LDK 89.35㎡
E 3LDK 72.55㎡
3階 8128万円 坪単価370万円
4階 8298万円 坪単価378万円
F 3LDK 74.89㎡
4階 8568万円 坪単価378万円
F’ 3LDK 75.04㎡
5階 8668万円 坪単価381万円
H 3LDK 72.85㎡
5階 8598万円 坪単価390万円
I 3LDK 72.49㎡
3階 8278万円 坪単価377万円
J 3LDK 74.05㎡
3階 8418万円 坪単価375万円
4階 8598万円 坪単価383万円
K 3LDK 78.64㎡
Kr 3LDK 87.64㎡
L 3LDK 66.46㎡
3階 7068万円 坪単価351万円
平均坪単価は約380万円です。
間取りは連窓サッシの中住戸、ダイレクトウィンドウの中住戸、コーナー部ダイレクトウィンドウの角住戸、バルコニー奥行き2.5m×バルコニーカウンター付き住戸などなど選ぶ楽しみがありますね。
設備仕様としてはディスポーザー、食洗機、キッチン天板フィオレストーン(高価格帯住戸は洗面天板もフィオレストーン)、フラットラインLED照明(高価格帯住戸は調色に調光も追加))、ミストサウナ、手洗いカウンター&ローシルエットトイレ、玄関電気錠、ゼッチ基準(リビング横洋室も床暖房となるプランが多い)、低炭素建築物に認定、約2.1mのハイサッシ、バルコニースロップシンク、ミライフル(二重床・二重天井)などなどかなり充実したものとなっています。
場所は住戸により異なりますがトランクルームも完備されています。(1階か玄関横等)
周辺相場を確認しましょう!
■パークホームズ府中の森公園
2003年築 府中駅徒歩12分
新築時の坪単価約190万円
現在の坪単価約230万円
動き一例
約78㎡
新築時4200万円台
中古時5100万円台
■サンクタスミュゼ府中
2008年築 北府中駅徒歩3分
新築時の坪単価約220万円
現在の坪単価約205万円
動き一例
約89㎡
新築時6000万円台
中古時5600万円台
[府中エリアで供給中の新築マンション]
■アージョ府中
2023年築 府中駅徒歩11分
平均坪単価約345万円
■シティテラス府中
2024年築 府中駅徒歩4分
平均坪単価約400万円
■プラウド府中グレイス
2024年築 府中駅徒歩3分
平均坪単価約325万円 ※普通借地権
■プラウド府中八幡町
2025年築 府中駅徒歩4分
平均坪単価約415万円
■ソルティア府中宮町
2026年竣工予定 府中駅徒歩3分
平均坪単価約425万円 ※コンパクト住戸
上記相場からプラウド府中晴見町が今時点で築10年だった場合の価値を算出すると
J 3LDK 74.05㎡ 3階 8418万円 → 7300万円(築10年と想定)
となります。
あくまで今の相場での算出のため参考までにお願いいたします。
駐車場は出入口にリングシャッター完備、屋外平置きと機械式が混在で設置率約40%、駐輪場は1世帯2台は確保できます。
管理費は㎡単価月額345円前後、周辺物件と比べると重たいですがディスポーザーがありますし第三者管理も採用していますから今の時代の新築マンションとしてみれば違和感はないでしょう。
周辺分譲マンションの維持費を確認しましょう!
■パークホームズ府中の森公園 総戸数137戸 管理費㎡単価月額約201円
■サンクタスミュゼ府中 総戸数99戸 管理費㎡単価月額約170円
【住むレーション】
[京王線]
府中 7:50発
調布 7:57着
千歳烏山 8:07着
明大前 8:17着
笹塚 8:21着
新宿 8:27着
府中 8:03発
分倍河原 8:05着
聖蹟桜ヶ丘 8:08着
高幡不動 8:12着
北野 8:19着
京王八王子 8:22着
[京王ライナー]※座席指定券410円
府中 8:07発
明大前 8:30着
新宿 8:39着
[武蔵野線]
北府中 7:42発
西国分寺 7:46着
新小平 7:50着
新秋津 7:55着
東所沢 7:59着
新座 8:02着
北朝霞 8:06着
西浦和 8:11着
武蔵浦和 8:14着
南浦和 8:17着
東浦和 8:21着
東川口 8:25着
南越谷 8:29着
越谷レイクタウン 8:32着
北府中 7:58発
府中本町 8:00着
[むさしの号]
北府中 7:38発
西国分寺 7:40着
新小平 7:45着
新秋津 7:50着
東所沢 7:54着
新座 7:58着
北朝霞 8:02着
大宮 8:15着
[西国分寺から中央快速線]
西国分寺 7:48発
国分寺 7:50着
武蔵小金井 7:54着
東小金井 7:56着
武蔵境 7:59着
三鷹 8:02着
吉祥寺 8:04着
西荻窪 8:07着
荻窪 8:10着
阿佐ヶ谷 8:12着
高円寺 8:14着
中野 8:17着
新宿 8:22着
四ツ谷 8:27着
御茶ノ水 8:32着
神田 8:35着
東京 8:37着
[空港リムジンバス]
府中駅 5:00発(西国分寺駅発)
羽田空港第2ターミナル 6:00着
羽田空港第1ターミナル 6:05着
羽田空港第3ターミナル 6:15着
京王ライナーに課金しての快適移動も可能です。
【総評】
駅からは少々離れますが通り沿いながら奥まった静かめな住環境に加えて日当たりと眺望が良好な部屋も多いですし、カッコいい建物と土地形状を活かした素敵なアプローチ、ハイサッシなどお金で変えられない部分のスペックも高いなど『駅から離れただけの価値がある』と言えるでしょう。
駅に近すぎるマンションが多いため徒歩9分でも少々遠くは感じてしまうものの一般的には遠くはないですからね。しかもその道中がスペシャルなわけですから尚更。
ステイツブランド時代の野村不動産分譲マンションとの共演も見どころの一つでしょう。
今作は今時のデザイン、ステイツは当時らしい良い意味で重ためのデザイン、どちらもカッコいいですよね。
時代の流れとともにデザインの流行りも移り変わるわけですが築年数が経過してもパッと見でカッコいいと思える(思われる)マンションかどうか。
いろいろな価値観(好み)はあるわけですが私のようにマンションに対して外観のカッコよさも求める方にとってはプラウド府中晴見町はビシッとハマってくることでしょう。
価格に関しては駅距離だけで見てしまうと割高感ありますね。築浅×駅近のザ・パークハウス府中も見えてきてしまいます。
ただ、今作を気に入る方は駅距離の優先順位が低く、その他の部分を叶えてくれるのがプラウド府中晴見町となりやすいことでしょう。
とはいえ選択肢が多いエリアですから他物件との比較検討も大事でしょう。
関連記事
ヴェレーナグラン府中美好 価格と間取り 旧甲州街道沿い×南面良好
ザ・パークハウス府中 2025年9月時点の相場 ~大國魂神社至近 府中の中心立地~(外部サイトスムログへ飛びます)
ホテルケヤキゲート東京府中に泊まってみた!~住むレーションにもおすすめ!~(外部サイトスムログへ飛びます)
記事が参考になったら資料請求は下記からお願いします!
資料請求はこちらから-
気になったらすぐに資料請求するのがおすすめ!ライバルは多いものです!

Powerd by LIFULL HOME’S



















コメントを残す