多摩センターからペデストリアンデッキ経由で直結、サンリオピューロランドの手前に位置するフォレア、プレミアム住戸の設定もあります。
25年ほどマンションウォッチをしてきたマンションマニアですがここまで室内スペックが高い近郊・郊外マンションに出逢ったことはありません。
都心マンションの一般住戸はもちろんプレミアムクラスにさえ劣らないレベルです…
リビング天井高約4.8m、全部屋ビルトインエアコン、キッチン天板セラミックタイル、食洗機ミーレ、IHミーレ、床&収納突板仕上、食器棚、さらに希望すればガレージも確保することができます。
一般住戸に関しても単価帯からすれば十分なスペックの高さですから『2億クラスの部屋もあるマンションがゆえの格』がセットになっていると考えるとコストパフォーマンスが良いですね。
第一期は総戸数99戸の内35戸が供給対象となっています。
■第1期販売住戸概要
販売戸数:35戸
価格:4288万円~19880万円
最多価格帯:8300万円台(3戸)※100万円単位
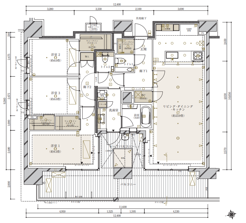
間取り:1LDK~3LDK
専有面積:35.79㎡~109.42㎡(各戸専有宅配ボックス含む)
管理費(月額)8340円~25490円
修繕積立金(月額)6440円~19700円
F 1LDK 35.79㎡
6階 4388万円 坪単価405万円
G 1LDK 40.88㎡
3階 4758万円 坪単価384万円
4階 4788万円 坪単価387万円
5階 4888万円 坪単価395万円
6階 4988万円 坪単価403万円
E2 2LDK 50.64㎡
3階 5688万円 坪単価371万円
5階 5848万円 坪単価381万円
6階 5888万円 坪単価384万円
A 2LDK 54.59㎡
4階 6048万円 坪単価366万円
5階 6088万円 坪単価368万円
6階 6128万円 坪単価371万円
B1 3LDK 65.61㎡
4階 7248万円 坪単価365万円
8階 7488万円 坪単価377万円
B2 3LDK 65.61㎡
D 3LDK 68.63㎡
3階 7488万円 坪単価360万円
4階 7588万円 坪単価365万円
5階 7648万円 坪単価368万円
6階 7688万円 坪単価370万円
C 3LDK 71.97㎡
4階 8158万円 坪単価374万円
6階 8328万円 坪単価382万円
7階 8358万円 坪単価383万円
8階 8388万円 坪単価385万円
10階 8488万円 坪単価389万円
H 3LDK 76.91㎡
12階 9288万円 坪単価399万円
J1 3LDK 105.08㎡
O 3LDK 108.61㎡
P 3LDK 109.42㎡
平均坪単価は約390万円です。
多摩ニュータウンとしては高価格帯ですが高いお金を払ってでもスペシャルなマンションに住みたいという地元層や複数の新築マンションを比較検討している中広域層からすればTMD(坪単価満足度)には期待ができるため売れ行きに関しても近郊・郊外にしては良いスピード感になるのではないでしょうか。
建築費高騰の時代に一番厳しいのは近郊・郊外の新築マンションです。
そんな時代の中で価格勝負ではなくロケーションと商品力勝負のフォレア、ぜひ見学してみることをおすすめいたします!!
かなりのかなり遅めのランチは多摩センターの喜多方ラーメン坂内!! pic.twitter.com/eSKLzlJAF2
— マンションマニア (@mansionmania) June 16, 2025
マンションウォッチから約25年、近郊・郊外で一番ビビビときた『フォレア』
こんなハイスペックなマンションに多摩センターで出逢えるとは…
多摩ニュータウンが検討エリアに入る方は見学おすすめいたします!!
竣工が楽しみすぎる!! pic.twitter.com/XXwWIZUNFT
— マンションマニア (@mansionmania) June 16, 2025
エブリデイ多摩ノ国でクレーンゲーム500円チャレンジの戦利品! pic.twitter.com/mYmXG0x5sJ
— マンションマニア (@mansionmania) June 16, 2025
関連記事
FOREA(フォレア) 予定価格と間取り 三信住建創立20周年企画のフラッグシップマンション





















コメントを残す